1
物件掲載企業数:
297
社
|賃貸物件:
3,619
件|売買物件:
3,316
件|今週の登録物件:
263
件
閲覧中のブラウザ(インターネットエクスプローラー)は非推奨ブラウザです。
物件が正しく表示されなかったり、正しく検索されない場合があります。最新のブラウザ(Google Chrome・Edgeなど)にてご利用お願いいたします。
Google Chrome
Microsoft Edge
アパート・マンション・一戸建て
駐車場
貸土地
店舗
事務所
倉庫・工場
新築分譲マンション
中古マンション
新築一戸建て
中古一戸建て
売土地・分譲地
その他(投資物件など)
マンション
一戸建て
土地
ホーム
>
検索方法選択
>
エリア選択
> 物件一覧
全エリア
の
投資物件・その他
一覧
263件
該当しました。
<前のページ
7
8
9
10
11
12
13
14
次のページ>
表示切替:
一覧表示
/
地図表示
並び替え:
指定なし
新着順
価格が安い順
価格が高い順
画像
物件名/所在地/取扱店
詳細
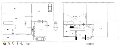
オーナーチェンジ物件(一棟一括賃貸中)
長岡市豊1丁目 売店舗
新潟県長岡市豊1丁目630番地2
SUMORE NAGAOKA KONOMA Real Estate co.,ltd.
価格
:
48,000,000
円
表面利回り
:
8.8
%
(満室想定時)
土地面積
:661.26㎡ /200.03坪
建ぺい率
:60%
容積率
:200%
国道117号線に面する好立地 賃貸として貸出し中の為、投資物件にもおすすめ♪ 敷地内17台駐車可能、融雪設備有り
小千谷 平沢テナント
新潟県小千谷市平沢2丁目789番地2
株式会社 エヌ・アール・ケー総合企画
価格
:
49,800,000
円
表面利回り
:-
土地面積
:409㎡ /123.72坪
建ぺい率
:60%
容積率
:200%
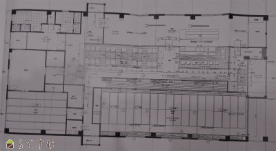
客室数25室・駐車台数30台
ホテル愛花夢・長岡(旧:ホテル72)
新潟県刈羽郡刈羽村黒川584-1
アイワ不動産
価格
:
50,000,000
円
表面利回り
:-
土地面積
:3,330.98㎡ /1,007.62坪
建ぺい率
:-
容積率
:-
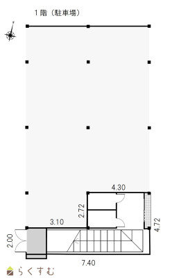
約350坪の巨大な倉庫
潟町 大型倉庫
新潟県上越市大潟区潟町530-1
ピタットハウス上越店 日建不動産
価格
:
50,000,000
円
表面利回り
:-
土地面積
:4,131.26㎡ /1,249.7坪
建ぺい率
:-
容積率
:-
表面利回り10%(現在満室)長岡駅まで徒歩20分、国道8号線まで車で3分、中央病院まで車で4分の好立地
長岡市川崎三丁目 売アパート
新潟県長岡市川崎三丁目2418番地4
株式会社 エヌ・アール・ケー総合企画
価格
:
51,756,000
円
表面利回り
:
10
%
(満室想定時)
土地面積
:213.05㎡ /64.44坪
建ぺい率
:60%
容積率
:200%
1DK*4戸、2DK*4戸のAP2棟と倉庫事務所1棟の合計3棟一括での販売です
【3棟一括】シャンテ吉田A・シャンテ吉田B・倉庫事務所
新潟県三条市塚野目6丁目16-3、16-4、16-1
らんべるアセット株式会社
価格
:
52,000,000
円
表面利回り
:
10.39
%
(満室想定時)
土地面積
:1,327.12㎡ /401.45坪
建ぺい率
:70%
容積率
:200%
笹崎1丁目 売ビル 土地291坪
新潟県長岡市笹崎1丁目4-8
株式会社 金井不動産
価格
:
52,800,000
円
表面利回り
:-
土地面積
:962.28㎡ /291.08坪
建ぺい率
:60%
容積率
:200%
笹崎2丁目 売店舗 272坪
新潟県長岡市笹崎2丁目4-16及び17及び18
株式会社 金井不動産
価格
:
58,000,000
円
表面利回り
:-
土地面積
:901.79㎡ /272.79坪
建ぺい率
:60%
容積率
:200%
フェニックス大橋東詰交差点に面する好立地
西宮内1丁目 売事務所倉庫134坪 土地274坪
新潟県長岡市西宮内1丁目49
株式会社 金井不動産
価格
:
58,000,000
円
表面利回り
:-
土地面積
:906.15㎡ /274.11坪
建ぺい率
:60%
容積率
:200%
今井2丁目 2棟売アパート 土地340坪
新潟県長岡市今井2丁目8 他3筆
株式会社 金井不動産
価格
:
58,000,000
円
表面利回り
:-
土地面積
:1,127.14㎡ /340.95坪
建ぺい率
:50%
容積率
:80%
飲食店仕様の売店舗。
板倉区長嶺 売店舗
新潟県上越市板倉区長嶺598番地1
髙頭不動産 株式会社
価格
:
58,000,000
円
表面利回り
:-
土地面積
:5,505.82㎡ /1,665.51坪
建ぺい率
:-
容積率
:-
長岡駅160m徒歩約2分
城内町1丁目 売中古ビル
新潟県長岡市城内町1丁目2-6
株式会社 金井不動産
価格
:
58,000,000
円
表面利回り
:-
土地面積
:167.5㎡ /50.66坪
建ぺい率
:80%
容積率
:600%
敷地面積325.58坪!!2DK×6部屋×2棟
ビッグY 1番館&2番館
新潟県長岡市東新町三丁目5番18号
ドアーズ 株式会社
価格
:
58,000,000
円
表面利回り
:
13.9
%
(満室想定時)
土地面積
:1,076.33㎡ /325.58坪
建ぺい率
:60%
容積率
:200%
県道(融雪有)に面する交通の要所
三和1丁目 売事業物件 土地239坪 建物延床134坪
新潟県長岡市三和1丁目731-1
株式会社 金井不動産
価格
:
58,000,000
円
表面利回り
:-
土地面積
:793㎡ /239.88坪
建ぺい率
:60%
容積率
:200%
商業圏に近くの工場倉庫 県道沿い・国道へのアクセスも良い立地
長岡市大島町 工場倉庫
新潟県長岡市三ツ郷屋315-1
リンクス.プランニング合同会社
価格
:
58,950,000
円
表面利回り
:-
土地面積
:721.79㎡ /218.34坪
建ぺい率
:60%
容積率
:200%
表面利回り12.67%(太陽光パネル実績含む)
新赤坂4丁目売アパート
新潟県柏崎市新赤坂4丁目
佐藤リアルティ 株式会社
価格
:
60,500,000
円
表面利回り
:-
土地面積
:907.17㎡ /274.41坪
建ぺい率
:60%
容積率
:200%
南高田駅まで徒歩6分、敷地内駐車場ありRC造3階建て
PLAZA TOM
新潟県上越市南高田町3-16
株式会社 あすなろ不動産
価格
:
61,000,000
円
表面利回り
:
13.65
%
(満室想定時)
土地面積
:704.38㎡ /213.07坪
建ぺい率
:60%
容積率
:200%
東神田3丁目 売アパート 「長岡第5レジデンス」
新潟県長岡市東神田3丁目1246-1
株式会社 金井不動産
価格
:
62,000,000
円
表面利回り
:
13.32
%
(満室想定時)
土地面積
:667.66㎡ /201.96坪
建ぺい率
:60%
容積率
:200%
現在入居者(18世帯)100%
アパート2棟(岡南ハイツ・コーポ南陽)
新潟県長岡市摂田屋字外川2660-12660-1コーポ南陽・岡南ハイツ・
有限会社 関不動産
価格
:
62,500,000
円
表面利回り
:
14
%
(満室想定時)
土地面積
:987㎡ /298.56坪
建ぺい率
:60%
容積率
:200%
総投資利回り11.4%(満室時)、小千谷駅まで徒歩約3分、小中学校も徒歩圏内、生活の利便性は良好。
メゾンドネッカA棟・B棟(共同住宅)
新潟県小千谷市東栄1丁目6-30
アパマンショップ西長岡店 小千谷産業株式会社
価格
:
63,800,000
円
表面利回り
:
11
%
(満室想定時)
土地面積
:1,044.61㎡ /315.99坪
建ぺい率
:80%
容積率
:300%
表示切替:
一覧表示
/
地図表示
並び替え:
指定なし
新着順
価格が安い順
価格が高い順
価格は物件の代金総額を表示しており、消費税が課税される場合は税込み価格です。
建築条件付き土地価格には、建物価格は含まれません。
物件情報の詳細については取り扱い店までお問い合わせください。
完成予想図はいずれも外構・植栽・外観等実際のものと異なることが多少あります。
CG合成の画像の場合実際と異なることが多少あります。
完成後1年以上経過したものが未入居として記載される場合があります。ご了承ください。
販売予定物件は販売開始するまで契約または予約の申し込みはできません。
ご購入の場合物件詳細や契約内容についてご自身で十分ご確認いただきますようよろしく御願いします。
建築条件付きとは…その土地に建築する建物の建築請負契約が、一定期間内に成立することを条件として売買される土地のことをいいます。請負契約成立に向けて設計プランを協議するため、土地購入者が希望する建物にするために一定の期間(概ね3ヶ月)交渉期間としその期間内に希望するプランが実現できたかどうかによって土地の購入の判断をします。納得のいくプランができず請負契約が未成立になった場合、土地契約にかかった代金(手付金など)は、すべて返却されます。
263件
該当しました。
<前のページ
7
8
9
10
11
12
13
14
次のページ>
0件
がマッチ
基本条件
物件種別
投資物件・その他
詳細種別
1棟売りマンション・アパート
マンション(区分所有)
その他
価格
下限なし
100万円
250万円
500万円
1000万円
1500万円
2000万円
2500万円
3000万円
3500万円
4000万円
4500万円
5000万円
5500万円
6000万円
6500万円
7000万円
7500万円
8000万円
8500万円
9000万円
9500万円
1億円
~
上限なし
100万円
250万円
500万円
1000万円
1500万円
2000万円
2500万円
3000万円
3500万円
4000万円
4500万円
5000万円
5500万円
6000万円
6500万円
7000万円
7500万円
8000万円
8500万円
9000万円
9500万円
1億円
間取り
ワンルーム
1K
1DK
1LDK
2K
2DK
2LDK
3K
3DK
3LDK
4K
4DK
4LDK以上
専有面積
下限なし
20㎡
30㎡
40㎡
50㎡
60㎡
70㎡
80㎡
90㎡
100㎡
~
上限なし
20㎡
30㎡
40㎡
50㎡
60㎡
70㎡
80㎡
90㎡
100㎡
土地面積
下限なし
60㎡ (約18坪)
70㎡ (約21坪)
80㎡ (約24坪)
90㎡ (約27坪)
100㎡ (約30坪)
110㎡ (約33坪)
120㎡ (約36坪)
130㎡ (約39坪)
140㎡ (約42坪)
150㎡ (約45坪)
160㎡ (約48坪)
170㎡ (約51坪)
180㎡ (約54坪)
190㎡ (約57坪)
200㎡ (約60坪)
250㎡ (約75坪)
300㎡ (約90坪)
~
上限なし
60㎡ (約18坪)
70㎡ (約21坪)
80㎡ (約24坪)
90㎡ (約27坪)
100㎡ (約30坪)
110㎡ (約33坪)
120㎡ (約36坪)
130㎡ (約39坪)
140㎡ (約42坪)
150㎡ (約45坪)
160㎡ (約48坪)
170㎡ (約51坪)
180㎡ (約54坪)
190㎡ (約57坪)
200㎡ (約60坪)
250㎡ (約75坪)
300㎡ (約90坪)
建物面積
下限なし
60㎡ (約18坪)
70㎡ (約21坪)
80㎡ (約24坪)
90㎡ (約27坪)
100㎡ (約30坪)
110㎡ (約33坪)
120㎡ (約36坪)
130㎡ (約39坪)
140㎡ (約42坪)
150㎡ (約45坪)
160㎡ (約48坪)
170㎡ (約51坪)
180㎡ (約54坪)
190㎡ (約57坪)
200㎡ (約60坪)
250㎡ (約75坪)
300㎡ (約90坪)
~
上限なし
60㎡ (約18坪)
70㎡ (約21坪)
80㎡ (約24坪)
90㎡ (約27坪)
100㎡ (約30坪)
110㎡ (約33坪)
120㎡ (約36坪)
130㎡ (約39坪)
140㎡ (約42坪)
150㎡ (約45坪)
160㎡ (約48坪)
170㎡ (約51坪)
180㎡ (約54坪)
190㎡ (約57坪)
200㎡ (約60坪)
250㎡ (約75坪)
300㎡ (約90坪)
坪単価
下限なし
5万円
10万円
15万円
20万円
25万円
30万円
35万円
40万円
45万円
50万円
~
上限なし
5万円
10万円
15万円
20万円
25万円
30万円
35万円
40万円
45万円
50万円
築年数
指定なし
新築
3年以内
5年以内
10年以内
15年以内
20年以内
方位
北
北東
東
南東
南
南西
西
北西
おすすめ条件
ペット可・相談
楽器可・相談
情報公開日
指定なし
本日
3日以内
1週間以内
1ヶ月以内
0件
がマッチ
人気のあるこだわり条件
角地(62)
南側道路面す(53)
エレベーター(18)
ロフト(1)
駐車場(近隣含む)(113)
公営水道(134)
都市ガス(106)
LPG(16)
下水道(108)
浄化槽(23)
その他水道(1)
事業向け(113)
別荘(3)
田舎暮らし(6)
高利回り物件(22)
条件に合った物件数は、
0 件
です。
立地・環境
角地(62)
南側道路面す(53)
構造
エレベーター(18)
ロフト(1)
駐車場(近隣含む)(113)
設備
公営水道(134)
都市ガス(106)
LPG(16)
下水道(108)
浄化槽(23)
その他水道(1)
その他
事業向け(113)
別荘(3)
田舎暮らし(6)
高利回り物件(22)
条件に合った物件数は、
0 件
です。
アパート・マンション・一戸建て
/
駐車場
/
貸土地
/
店舗
/
事務所
/
倉庫・工場
新築分譲マンション
/
中古マンション
/
新築一戸建て
/
中古一戸建て
/
売土地
/
投資物件・その他
マンション
/
一戸建て
/
土地
建てる・リフォーム
物件掲載企業一覧
掲載希望の企業様へ
新潟の不動産情報サイト
サービス利用規約
運営会社
サイトマップ
プライバシーポリシー
お問い合わせ
リンク
Copyright (C)
株式会社 コモンライフ・コーポレーション
. All Rights Reserved.
新潟・長岡・柏崎の賃貸・マンション・アパート・住宅の不動産物件情報サイト
不動産検索サイト「らくすむ」及び関連サイトに記載の不動産情報は、会員規約に則り、情報提供会社様の責任のもとに発信されております。
不動産の賃借、購入に関しては賃借者、購入者ご自身が情報を確認され、会社企業様から説明を受けられたうえで判断をお願いいたします。
不動産検索サイト「らくすむ」及び関連サイトに記載の不動産情報、写真、デザイン、コンテンツなどの
無断転載・転用・複製
など禁止します。