売買(新築住宅)長岡市陽光台 詳細

外観
片流れ屋根が南向きに面した太陽光パネル搭載の家。
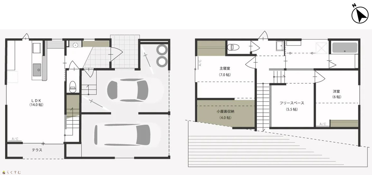
間取り
3層のスキップフロアになった間取りです。
その他の画像
インナーガレージは駐車2台可能、その他にタイヤなども収納可!
たっぷりの光が注ぐ、のびやかな居心地の良い空間です。
収納スペースも確保され、いつでもスッキリをキープ!
大きな窓からはいつでもお庭を眺められ、開放感もございます!
造作デスクも設置されており、勉強やPC作業をするのにも◎
食洗機やIH搭載のキッチン♪背面にはカップボード付き!
物干し竿付きで、洗濯後の動線が短く、使い勝手◎
身だしなみを整えるのに便利な3面鏡付きの洗面化粧台です。
広い浴槽にゆっくりと浸かりながらリラックスタイム。
各フロアには温水洗浄機能付きトイレを完備。
2階洋室7帖 収納豊富でお部屋がスッキリ片付きます!
小屋裏収納は広々4帖ございます♪
2階洋室6帖 子供部屋や趣味のスペースなどでもご利用可能!
使い方もいろいろできちゃう開放的な5.5帖のフリースペース♪
手洗い器も完備された玄関は、帰宅後すぐに手洗いができます!
悪天候でも車と玄関の間を濡れずに行き来ができます!
リビングとフラットにつながるテラスとお庭。
前面道路は東側6m市道、消雪パイプ完備で冬場も安心
物件詳細へ戻る
Copyright (C) 株式会社 コモンライフ・コーポレーション. All Rights Reserved.
不動産検索サイト「らくすむ」及び関連サイトに記載の不動産情報は、会員規約に則り、情報提供会社様の責任のもとに発信されております。
不動産の賃借、購入に関しては賃借者、購入者ご自身が情報を確認され、会社企業様から説明を受けられたうえで判断をお願いいたします。
不動産検索サイト「らくすむ」及び関連サイトに記載の不動産情報、写真、デザイン、コンテンツなどの無断転載・転用・複製など禁止します。