売買(新築住宅)長岡市陽光台 詳細
お気に入り


片流れ屋根が南向きに面した太陽光パネル搭載の家。

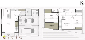
3層のスキップフロアになった間取りです。

インナーガレージは駐車2台可能、その他にタイヤなども収納可!

たっぷりの光が注ぐ、のびやかな居心地の良い空間です。

収納スペースも確保され、いつでもスッキリをキープ!

大きな窓からはいつでもお庭を眺められ、開放感もございます!

造作デスクも設置されており、勉強やPC作業をするのにも◎

食洗機やIH搭載のキッチン♪背面にはカップボード付き!

物干し竿付きで、洗濯後の動線が短く、使い勝手◎

身だしなみを整えるのに便利な3面鏡付きの洗面化粧台です。

広い浴槽にゆっくりと浸かりながらリラックスタイム。

各フロアには温水洗浄機能付きトイレを完備。

2階洋室7帖 収納豊富でお部屋がスッキリ片付きます!

小屋裏収納は広々4帖ございます♪

2階洋室6帖 子供部屋や趣味のスペースなどでもご利用可能!

使い方もいろいろできちゃう開放的な5.5帖のフリースペース♪

手洗い器も完備された玄関は、帰宅後すぐに手洗いができます!

悪天候でも車と玄関の間を濡れずに行き来ができます!

リビングとフラットにつながるテラスとお庭。

前面道路は東側6m市道、消雪パイプ完備で冬場も安心

物件画像を詳しく見る
【長岡市陽光台】新価格2580万円! ◆空間を有効活用できる3層のスキップフロアのある家♪ ◆南向きの片流れ屋根には太陽光パネルを搭載! ◆嬉しいエアコン3台&カップボード&カーテン付き♪ ◆2台分のインナーガレージを完備!
物件概要
~物件PR~ ・使い方いろいろなフリースペースをご用意♪ ・たっぷり収納可能な小屋裏収納あり ・前面道路は消雪パイプ有り!冬場も安心♪
  • 物件コード 00239-200330
  • 物件名 (新築住宅)長岡市陽光台
  • 交通 駅:信越線 来迎寺駅から徒歩98分、バス:陽光台4丁目から徒歩4分
  • 所在地 新潟県長岡市陽光台4丁目1379-130付近 物件へのルート表示
  • 物件種別 新築一戸建て
  • 構造 木造
  • 階建 地上2階建
  • 建ぺい率/容積率 60%/200%
  • 建物面積 115.09㎡ /34.81坪
  • 土地面積 205.22㎡ /62.07坪
  • 築年月 2024年4月(築1年)
  • 入居時期 相談
  • 用途地域 第1種中高層住居専用地域
  • 地目 宅地
  • 都市計画 市街化区域
  • 形状 -
  • 道路 東側6m市道
  • 私道 -
  • その他の制限 -
物件詳細情報
  • 所在階/階数 -
  • 号室 -
  • 販売価格 25,800,000円
  • 方位 南西
  • 間取り 3LDK (洋室:7、6、5.5)、LDK14、小屋裏収納4帖
  • 専有面積 -
  • バルコニー面積 -
  • その他面積 -
  • 駐車場 -
  • 管理費 -
  • 修繕積立金 -
  • 現況
  • 仲介手数料 917,400円
  • 利用制限 -
  • 学校区 青葉台小学校(1,600m)・青葉台中学校(2,600m)
  • 設備 高台に立地、整形地、前面道路6m以上、日当り良好、閑静な住宅街、全室フローリング、駐車場2台以上、庭あり、カウンターキッチン、IHクッキングヒーター、追いだき機能付き、バス1坪以上、温水洗浄便座、シャワー付き洗面台、エアコン、太陽光発電システム、ウッドデッキ・テラス、上水道、下水道、電気、シューズBOX、バリアフリー
  • 取引態様 一般
  • 情報登録日 2025/09/03
  • 次回更新予定日 2025/12/30
  • 取引条件有効期限 2026/12/31
備考
【教育機関】
青葉台小学校 約1600m 徒歩約20分
青葉台中学校 約2600m 徒歩約33分

【交通機関】
JR信越本線 来迎寺駅 車約15分
越後交通バス 陽光台4丁目 徒歩約4分
取扱い会社
新潟土地建物販売センター 株式会社
  • TEL 0258-89-8245
  • 所在地 新潟県長岡市台町1-7-331階
  • 交通 長岡駅
  • 営業時間 9:00~18:00/定休日:なし
  • 免許番号 新潟県知事(3)第5151号
  • 所属団体名 公社 新潟県宅地建物取引協会 新潟支部
  • 取引態様 一般
Copyright (C) 株式会社 コモンライフ・コーポレーション. All Rights Reserved.
不動産検索サイト「らくすむ」及び関連サイトに記載の不動産情報は、会員規約に則り、情報提供会社様の責任のもとに発信されております。
不動産の賃借、購入に関しては賃借者、購入者ご自身が情報を確認され、会社企業様から説明を受けられたうえで判断をお願いいたします。
不動産検索サイト「らくすむ」及び関連サイトに記載の不動産情報、写真、デザイン、コンテンツなどの無断転載・転用・複製など禁止します。