賃貸高野不動産駅前ビル 詳細

外観
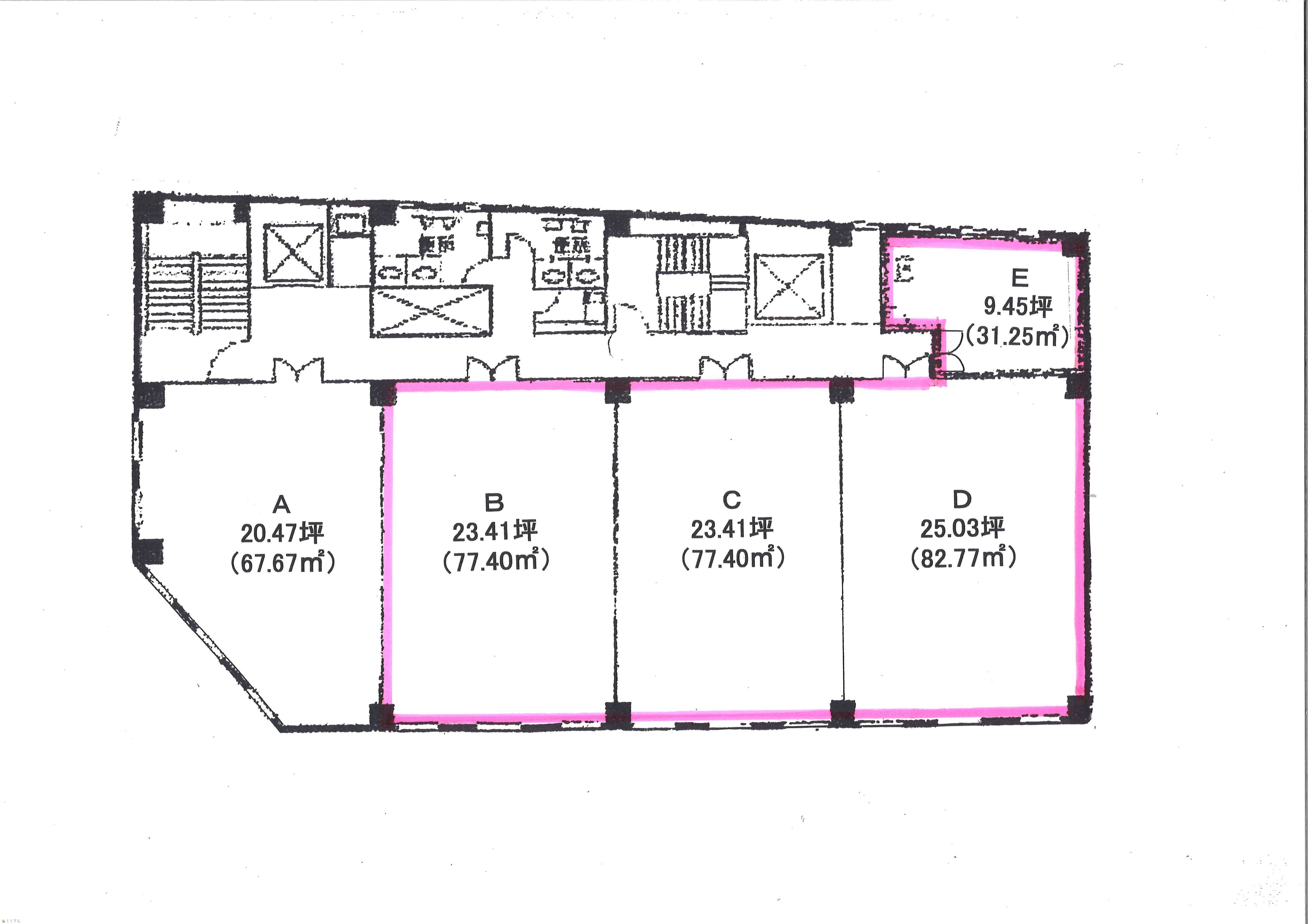
間取り
B・C・D・E号室
その他の画像
B号室 23.41坪
B号室
E号室 9.45坪
E号室
E号室
5階
5階貨物用エレベター
廊下
給湯室
トイレ
正面入り口
1階
物件詳細へ戻る
Copyright (C) 株式会社 コモンライフ・コーポレーション. All Rights Reserved.
不動産検索サイト「らくすむ」及び関連サイトに記載の不動産情報は、会員規約に則り、情報提供会社様の責任のもとに発信されております。
不動産の賃借、購入に関しては賃借者、購入者ご自身が情報を確認され、会社企業様から説明を受けられたうえで判断をお願いいたします。
不動産検索サイト「らくすむ」及び関連サイトに記載の不動産情報、写真、デザイン、コンテンツなどの無断転載・転用・複製など禁止します。