
高野不動産駅前ビル 詳細
BCDE号室
お気に入り
追加済み
物件画像を詳しく見る

長岡駅の目の前にあり、1階にコンビニが有ります。
物件概要
-
賃料
44.715万円/月
-
管理費
なし
-
敷/礼
6ヶ月/
1ヶ月
-
間取り
-
-
広さ
268.82㎡
/81.31坪
-
階建
地上6階地下1階建
-
築年数
1972年3月(築53年)
-
種別
事務所
-
住所
新潟県長岡市城内町2丁目6-1
物件へのルート表示
-
交通
駅:上越新幹線 長岡駅から徒歩2分
-
物件コード
00041-100339
-
物件名
高野不動産駅前ビル
-
交通
駅:上越新幹線 長岡駅から徒歩2分
-
所在地
新潟県長岡市城内町2丁目6-1
物件へのルート表示
-
物件種別
事務所
-
総戸数
25戸
-
構造
鉄骨鉄筋コン
-
階建
地上6階地下1階建
-
所在階/階数
5階/6階
-
号室
BCDE号室
-
専有面積
268.82㎡
/81.31坪
-
方位
-
-
間取り
-
-
賃料
44.715万円/月
-
管理費
-
-
礼金
1ヶ月
-
敷金
6ヶ月
-
共益費
月額:322,122円
-
ほか初期費用
保証会社加入金:日本セフティー
-
その他諸費用
-
-
更新料
-
-
火災(家財)保険
-
-
駐車場
1台月額25,300円
-
町内費
-
-
バイク料金
-
-
鍵交換費
-
-
清掃料
-
-
更新事務手数料
-
-
保証区分
-
-
保証会社
区分:利用可
日本セフティー
-
連帯保証人
[区分]
指定なし
-
-
仲介手数料
447,150円
-
手数料負担割合
貸主:-%
借主:-%
-
手数料配分割合
元付:-%
客付:-%
-
築年月
1972年3月(築53年)
-
利用制限
ペット:不可、楽器:不可、事務所利用:可
-
学校区
阪之上小学校・東中学校
-
設備
2階以上、エアコン、男女トイレ別、エレベーター、給湯、駐車場あり
-
入居時期
相談
-
取引態様
仲介
-
情報登録日
2022/02/09
-
次回更新予定日
2026/01/04
備考
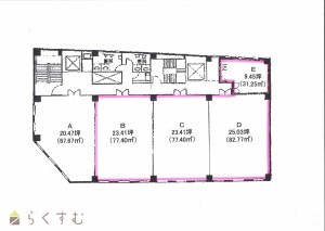
B.C、D,E号室 各室の賃貸も可能です。
B号室:23.41坪・C号室:23.41坪・D号室:25.03坪・E号室:9.45坪
取扱い会社
株式会社 高野不動産販売
-
TEL
0258-33-7711
-
所在地
新潟県長岡市柏町1丁目4-33
-
交通
長岡駅
-
営業時間
9:00~17:30/定休日:土曜日・日曜日・祝日・お盆・年末年始
-
免許番号
新潟県知事(1)第5568号
-
所属団体名
(公社)新潟県宅地建物取引業協会,(公社)首都圏不動産公正取引協議会,(公財)日本賃貸住宅管理協会
-
取引態様
仲介
Copyright (C) 株式会社 コモンライフ・コーポレーション. All Rights Reserved.
不動産検索サイト「らくすむ」及び関連サイトに記載の不動産情報は、会員規約に則り、情報提供会社様の責任のもとに発信されております。
不動産の賃借、購入に関しては賃借者、購入者ご自身が情報を確認され、会社企業様から説明を受けられたうえで判断をお願いいたします。
不動産検索サイト「らくすむ」及び関連サイトに記載の不動産情報、写真、デザイン、コンテンツなどの無断転載・転用・複製など禁止します。