1
物件掲載企業数:
301
社
|賃貸物件:
3,175
件|売買物件:
3,245
件|今週の登録物件:
72
件
閲覧中のブラウザ(インターネットエクスプローラー)は非推奨ブラウザです。
物件が正しく表示されなかったり、正しく検索されない場合があります。最新のブラウザ(Google Chrome・Edgeなど)にてご利用お願いいたします。
Google Chrome
Microsoft Edge
アパート・マンション・一戸建て
駐車場
貸土地
店舗
事務所
倉庫・工場
新築分譲マンション
中古マンション
新築一戸建て
中古一戸建て
売土地・分譲地
その他(投資物件など)
マンション
一戸建て
土地
ホーム
>
会社情報
>
物件種別選択
> 物件一覧
髙頭不動産 株式会社
の
中古一戸建て
物件情報
32件
該当しました。
1
2
次のページ>
表示切替:
一覧表示
/
地図表示
並び替え:
指定なし
新着順
価格が安い順
価格が高い順
画像
物件名/所在地/取扱店
詳細
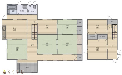
自然豊かな住環境
宮本3丁目売物件
新潟県長岡市宮本町3丁目甲2787-1
髙頭不動産 株式会社
価格
:
1,000,000
円
土地面積
:827.33㎡ /250.26坪
建物面積
:213.31㎡ /64.52坪
間取り
:5DK
築年月
:1974年7月
東南角地住宅♪クスリのアオキ栃尾店まで徒歩約2分♪原信栃尾店まで車で約4分♪
長岡市金町2丁目 売住宅
新潟県長岡市金町2丁目7-1
髙頭不動産 株式会社
価格
:
1,200,000
円
土地面積
:91.07㎡ /27.54坪
建物面積
:111.95㎡ /33.86坪
間取り
:4K
築年月
:1972年5月
原信栃尾店まで徒歩約5分!銀行や郵便局も近く生活しやすい立地です!車1台分インナーガレージあり!
長岡市谷内1丁目 売住宅
新潟県長岡市谷内1丁目4-6
髙頭不動産 株式会社
価格
:
1,500,000
円
土地面積
:152.06㎡ /45.99坪
建物面積
:129.16㎡ /39.07坪
間取り
:4K
築年月
:1978年6月
◆前面道路消雪パイプあり◆深沢小学校まで徒歩約6分◆7DKで大家族にも対応可能な住宅
長岡市深沢町 売住宅
新潟県長岡市深沢町2019番地1
髙頭不動産 株式会社
価格
:
2,600,000
円
土地面積
:264.46㎡ /79.99坪
建物面積
:202.29㎡ /61.19坪
間取り
:7DK
築年月
:1981年2月
外装・内装リフォーム済み、田園風景の広がる静かな立地です。
柏崎畔屋 戸建て
新潟県柏崎市畔屋2230番1
髙頭不動産 株式会社
価格
:
3,300,000
円
土地面積
:532.17㎡ /160.98坪
建物面積
:140.97㎡ /42.64坪
間取り
:6DK
築年月
:1975年1月
広い敷地でガーデニングや家庭菜園も楽しめます♪
関原三丁目住宅
新潟県長岡市関原町3-甲192
髙頭不動産 株式会社
価格
:
3,800,000
円
土地面積
:639.35㎡ /193.4坪
建物面積
:191.78㎡ /58.01坪
間取り
:6DK
築年月
:1967年8月
◆前面道路消雪パイプあり◆セブンイレブン中越川口店、ショッピングストア安田屋まで徒歩圏内◆車1台分の車庫あり◆適宜メンテナンスされた住宅◆エアコン付き◆
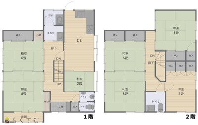
長岡市東川口 売住宅
新潟県長岡市東川口1867-34
髙頭不動産 株式会社
価格
:
4,000,000
円
土地面積
:178.36㎡ /53.95坪
建物面積
:123.65㎡ /37.4坪
間取り
:5LDK
築年月
:1968年8月
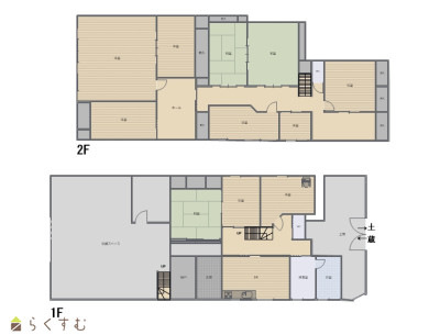
与板のメインストリート沿いに佇む店舗併設の住宅です!レトロな土蔵付き♪
長岡市与板町与板 売住宅
新潟県長岡市与板町与板459
髙頭不動産 株式会社
価格
:
4,800,000
円
土地面積
:448.08㎡ /135.54坪
建物面積
:326.4㎡ /98.73坪
間取り
:11DK
築年月
:1935年1月
利便性の良い石上1丁目の中古住宅!庭付きの日本家屋
三条市石上中古住宅
新潟県三条市石上1丁目2-20
髙頭不動産 株式会社
価格
:
4,980,000
円
土地面積
:198.51㎡ /60.04坪
建物面積
:131.9㎡ /39.89坪
間取り
:5K
築年月
:1981年7月
寺泊魚の市場通りまで徒歩約16分!海も近く、別荘にいかがでしょうか♪
長岡市寺泊白岩 売住宅
新潟県長岡市寺泊白岩7235-3
髙頭不動産 株式会社
価格
:
5,000,000
円
土地面積
:124.15㎡ /37.55坪
建物面積
:143.99㎡ /43.55坪
間取り
:6DK
築年月
:1972年4月
◆北長岡駅、スーパー、コンビニ、ドラッグストア、小学校まで徒歩圏内◆前面道路消雪パイプあり
蔵王一丁目 売住宅
新潟県長岡市蔵王1丁目5-7
髙頭不動産 株式会社
価格
:
5,800,000
円
土地面積
:169.68㎡ /51.32坪
建物面積
:130.14㎡ /39.36坪
間取り
:5DK
築年月
:1979年8月
大きな敷地に大きな建物が魅力!大家族様や庭・土いじりをされたい方大歓迎です☆彡
浦 売住宅☆彡
新潟県長岡市浦6430番地1
髙頭不動産 株式会社
価格
:
6,600,000
円
土地面積
:682.87㎡ /206.56坪
建物面積
:202.99㎡ /61.4坪
間取り
:9DK
築年月
:1954年4月
国道に面し、アクセスの良い物件です。
栃尾大野町中古住宅
新潟県長岡市栃尾大野町4丁目4-5
髙頭不動産 株式会社
価格
:
7,000,000
円
土地面積
:501.34㎡ /151.65坪
建物面積
:120.47㎡ /36.44坪
間取り
:7K
築年月
:1979年2月
自然に囲まれた店舗スペース付き住宅です!車3台分の車庫あり!地下は倉庫として利用できます♪
川口田麦山 売住宅(店舗付き)
新潟県長岡市川口田麦山555-1
髙頭不動産 株式会社
価格
:
7,600,000
円
土地面積
:813.66㎡ /246.13坪
建物面積
:224.13㎡ /67.79坪
間取り
:7K
築年月
:1994年7月
高床式住宅(天井高約1450mm)!敷地内消雪設備あり!
長町中古住宅
新潟県長岡市長町2丁目2-2
髙頭不動産 株式会社
価格
:
7,800,000
円
土地面積
:120.93㎡ /36.58坪
建物面積
:134.87㎡ /40.79坪
間取り
:6DK
築年月
:1983年10月
土地110坪超 来迎寺中古住宅!
長岡市来迎寺字白山 売住宅
長岡市来迎寺2225
髙頭不動産 株式会社
価格
:
7,800,000
円
土地面積
:584.47㎡ /176.8坪
建物面積
:167.32㎡ /50.61坪
間取り
:6DK
築年月
:1986年7月
来迎寺駅まで徒歩約8分、最寄りのバス停まで徒歩約4分の立地です。
来迎寺中古住宅
長岡市来迎寺甲1663番地子
髙頭不動産 株式会社
価格
:
8,500,000
円
土地面積
:394.85㎡ /119.44坪
建物面積
:186.62㎡ /56.45坪
間取り
:8DK
築年月
:1967年4月
【価格改定して更にお求めやすくなりました♪】1,080万円(R7.9.1)→880万円(R8.4.14)車2台分駐車スペース(車庫1台分含む)あり!海が近く、別荘としてもお住まいになれます♪
長岡市寺泊野積 売住宅
新潟県長岡市寺泊野積559-1
髙頭不動産 株式会社
価格
:
8,800,000
円
土地面積
:522.8㎡ /158.14坪
建物面積
:167.5㎡ /50.66坪
間取り
:7DK
築年月
:2000年7月
寺泊魚市場まで徒歩3分!海の匂いを感じながらお散歩もできます♪
長岡市寺泊坂井町 売住宅
新潟県長岡市寺泊坂井町9769-43
髙頭不動産 株式会社
価格
:
8,900,000
円
土地面積
:453.87㎡ /137.29坪
建物面積
:207.51㎡ /62.77坪
間取り
:7DK
築年月
:1978年3月
【価格改定:1200万円(R5年10月26日→1080万円(R7年7月9日)】 広い敷地の大きな建物♪大家族様、家庭菜園をされたい方にピッタリです♪内部一部、水廻りは過去にRF済み♪
長岡市中之島 売住宅
新潟県長岡市中之島3801
髙頭不動産 株式会社
価格
:
10,800,000
円
土地面積
:1,006.93㎡ /304.59坪
建物面積
:171.43㎡ /51.85坪
間取り
:8DK
築年月
:1971年1月
表示切替:
一覧表示
/
地図表示
並び替え:
指定なし
新着順
価格が安い順
価格が高い順
価格は物件の代金総額を表示しており、消費税が課税される場合は税込み価格です。
建築条件付き土地価格には、建物価格は含まれません。
物件情報の詳細については取り扱い店までお問い合わせください。
完成予想図はいずれも外構・植栽・外観等実際のものと異なることが多少あります。
CG合成の画像の場合実際と異なることが多少あります。
完成後1年以上経過したものが未入居として記載される場合があります。ご了承ください。
販売予定物件は販売開始するまで契約または予約の申し込みはできません。
ご購入の場合物件詳細や契約内容についてご自身で十分ご確認いただきますようよろしく御願いします。
建築条件付きとは…その土地に建築する建物の建築請負契約が、一定期間内に成立することを条件として売買される土地のことをいいます。請負契約成立に向けて設計プランを協議するため、土地購入者が希望する建物にするために一定の期間(概ね3ヶ月)交渉期間としその期間内に希望するプランが実現できたかどうかによって土地の購入の判断をします。納得のいくプランができず請負契約が未成立になった場合、土地契約にかかった代金(手付金など)は、すべて返却されます。
32件
該当しました。
1
2
次のページ>
0件
がマッチ
基本条件
物件種別
中古一戸建て
価格
下限なし
100万円
250万円
500万円
1000万円
1500万円
2000万円
2500万円
3000万円
3500万円
4000万円
4500万円
5000万円
5500万円
6000万円
6500万円
7000万円
7500万円
8000万円
8500万円
9000万円
9500万円
1億円
~
上限なし
100万円
250万円
500万円
1000万円
1500万円
2000万円
2500万円
3000万円
3500万円
4000万円
4500万円
5000万円
5500万円
6000万円
6500万円
7000万円
7500万円
8000万円
8500万円
9000万円
9500万円
1億円
間取り
ワンルーム
1K
1DK
1LDK
2K
2DK
2LDK
3K
3DK
3LDK
4K
4DK
4LDK以上
専有面積
下限なし
20㎡
30㎡
40㎡
50㎡
60㎡
70㎡
80㎡
90㎡
100㎡
~
上限なし
20㎡
30㎡
40㎡
50㎡
60㎡
70㎡
80㎡
90㎡
100㎡
土地面積
下限なし
60㎡ (約18坪)
70㎡ (約21坪)
80㎡ (約24坪)
90㎡ (約27坪)
100㎡ (約30坪)
110㎡ (約33坪)
120㎡ (約36坪)
130㎡ (約39坪)
140㎡ (約42坪)
150㎡ (約45坪)
160㎡ (約48坪)
170㎡ (約51坪)
180㎡ (約54坪)
190㎡ (約57坪)
200㎡ (約60坪)
250㎡ (約75坪)
300㎡ (約90坪)
~
上限なし
60㎡ (約18坪)
70㎡ (約21坪)
80㎡ (約24坪)
90㎡ (約27坪)
100㎡ (約30坪)
110㎡ (約33坪)
120㎡ (約36坪)
130㎡ (約39坪)
140㎡ (約42坪)
150㎡ (約45坪)
160㎡ (約48坪)
170㎡ (約51坪)
180㎡ (約54坪)
190㎡ (約57坪)
200㎡ (約60坪)
250㎡ (約75坪)
300㎡ (約90坪)
建物面積
下限なし
60㎡ (約18坪)
70㎡ (約21坪)
80㎡ (約24坪)
90㎡ (約27坪)
100㎡ (約30坪)
110㎡ (約33坪)
120㎡ (約36坪)
130㎡ (約39坪)
140㎡ (約42坪)
150㎡ (約45坪)
160㎡ (約48坪)
170㎡ (約51坪)
180㎡ (約54坪)
190㎡ (約57坪)
200㎡ (約60坪)
250㎡ (約75坪)
300㎡ (約90坪)
~
上限なし
60㎡ (約18坪)
70㎡ (約21坪)
80㎡ (約24坪)
90㎡ (約27坪)
100㎡ (約30坪)
110㎡ (約33坪)
120㎡ (約36坪)
130㎡ (約39坪)
140㎡ (約42坪)
150㎡ (約45坪)
160㎡ (約48坪)
170㎡ (約51坪)
180㎡ (約54坪)
190㎡ (約57坪)
200㎡ (約60坪)
250㎡ (約75坪)
300㎡ (約90坪)
坪単価
下限なし
5万円
10万円
15万円
20万円
25万円
30万円
35万円
40万円
45万円
50万円
~
上限なし
5万円
10万円
15万円
20万円
25万円
30万円
35万円
40万円
45万円
50万円
築年数
指定なし
新築
3年以内
5年以内
10年以内
15年以内
20年以内
方位
北
北東
東
南東
南
南西
西
北西
おすすめ条件
ペット可・相談
楽器可・相談
情報公開日
指定なし
本日
3日以内
1週間以内
1ヶ月以内
0件
がマッチ
人気のあるこだわり条件
角地(6)
高台に立地(2)
日当り良好(14)
閑静な住宅街(20)
スーパー近く(7)
新築時図面あり(1)
インスペクション報告書あり(1)
瑕疵担保保険付き(1)
LDK15帖以上(5)
全室フローリング(2)
築10年以内(2)
駐車2台可能(8)
駐車3台以上可能(10)
駐車場融雪設備あり(4)
南向き(6)
TVインターホン(4)
複層ガラス(4)
デインプルキー(2)
システムキッチン(10)
カウンターキッチン(3)
IHクッキングヒーター(5)
食器洗浄乾燥機(1)
3口コンロ(4)
2口コンロ(3)
ガスコンロ設置可能(4)
ガスコンロ設置済み(1)
追いだき機能付き(7)
浴室乾燥機(2)
バス1坪以上(12)
温水洗浄便座(11)
トイレ2か所以上(17)
シャワー付き洗面台(6)
エアコンあり(11)
床暖房(3)
24時間換気システム(3)
全室エアコン(2)
オール電化(3)
ウッドデッキ・テラス(1)
都市ガス(20)
LPG(2)
上水道(25)
下水道(24)
浄化槽(1)
バリアフリー(2)
ウォークインクローゼット(3)
全居室収納あり(7)
床下収納(1)
シューズBOX(9)
内装リフォーム済み(3)
外装リフォーム済み(2)
2世帯向き(1)
即引き渡し可能(3)
別荘(2)
田舎暮らし(8)
事業向け(1)
条件に合った物件数は、
0 件
です。
立地・環境
角地(6)
高台に立地(2)
日当り良好(14)
閑静な住宅街(20)
スーパー近く(7)
構造・工法・仕様
新築時図面あり(1)
インスペクション報告書あり(1)
瑕疵担保保険付き(1)
面積・間取り
LDK15帖以上(5)
全室フローリング(2)
築年
築10年以内(2)
駐車・駐輪
駐車2台可能(8)
駐車3台以上可能(10)
駐車場融雪設備あり(4)
採光・向き
南向き(6)
管理・防犯
TVインターホン(4)
複層ガラス(4)
デインプルキー(2)
キッチン
システムキッチン(10)
カウンターキッチン(3)
IHクッキングヒーター(5)
食器洗浄乾燥機(1)
3口コンロ(4)
2口コンロ(3)
ガスコンロ設置可能(4)
ガスコンロ設置済み(1)
浴室
追いだき機能付き(7)
浴室乾燥機(2)
バス1坪以上(12)
トイレ
温水洗浄便座(11)
トイレ2か所以上(17)
洗面所
シャワー付き洗面台(6)
冷暖房・空調
エアコンあり(11)
床暖房(3)
24時間換気システム(3)
全室エアコン(2)
光熱設備
オール電化(3)
バルコニー・テラス
ウッドデッキ・テラス(1)
室内仕様・設備
都市ガス(20)
LPG(2)
上水道(25)
下水道(24)
浄化槽(1)
バリアフリー(2)
収納
ウォークインクローゼット(3)
全居室収納あり(7)
床下収納(1)
シューズBOX(9)
リフォーム
内装リフォーム済み(3)
外装リフォーム済み(2)
費用・入居・引渡・条件
2世帯向き(1)
即引き渡し可能(3)
その他
別荘(2)
田舎暮らし(8)
事業向け(1)
条件に合った物件数は、
0 件
です。
アパート・マンション・一戸建て
/
駐車場
/
貸土地
/
店舗
/
事務所
/
倉庫・工場
新築分譲マンション
/
中古マンション
/
新築一戸建て
/
中古一戸建て
/
売土地
/
投資物件・その他
マンション
/
一戸建て
/
土地
建てる・リフォーム
物件掲載企業一覧
掲載希望の企業様へ
新潟の不動産情報サイト
サービス利用規約
運営会社
サイトマップ
プライバシーポリシー
お問い合わせ
リンク
Copyright (C)
株式会社 コモンライフ・コーポレーション
. All Rights Reserved.
新潟・長岡・柏崎の賃貸・マンション・アパート・住宅の不動産物件情報サイト
不動産検索サイト「らくすむ」及び関連サイトに記載の不動産情報は、会員規約に則り、情報提供会社様の責任のもとに発信されております。
不動産の賃借、購入に関しては賃借者、購入者ご自身が情報を確認され、会社企業様から説明を受けられたうえで判断をお願いいたします。
不動産検索サイト「らくすむ」及び関連サイトに記載の不動産情報、写真、デザイン、コンテンツなどの
無断転載・転用・複製
など禁止します。