物件掲載企業数:299|賃貸物件:2,911件|売買物件:3,228件|今週の登録物件:348
閲覧中のブラウザ(インターネットエクスプローラー)は非推奨ブラウザです。
物件が正しく表示されなかったり、正しく検索されない場合があります。最新のブラウザ(Google Chrome・Edgeなど)にてご利用お願いいたします。
  

新潟県柏崎市畔屋2230番1 中古一戸建て 6DK 3,300,000円の物件情報

外装・内装リフォーム済み、田園風景の広がる静かな立地です。

物件名/所在地 詳細 価格
柏崎畔屋 戸建て
新潟県柏崎市畔屋2230番1
  • 土地面積
    :532.17㎡ /160.98坪
  • 建物面積
    :140.97㎡ /42.64坪
  • 間取り
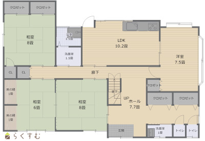
    :6DK
  • 築年月
    :1975年1月
3,300,000
  • 柏崎畔屋 戸建て
    髙頭不動産 株式会社
  • この物件を問い合わせる/無料
  • TEL: 0120-1818-27

物件画像

外観 間取り
物件画像
※画像クリックで拡大表示
外観写真
物件画像
※画像クリックで拡大表示
1階間取り
詳細画像


物件概要

給湯器やガス・上下水の配管も新品交換済みです!
物件コード 00040-201050
物件名 柏崎畔屋 戸建て
交通 駅:越後線 西中通駅から徒歩57分、バス:畔屋から徒歩4分
物件所在地 新潟県柏崎市畔屋2230番1
物件種別 中古一戸建て
構造 木造 階建 地上2階建
建ぺい率/容積率 70%/200%
建物面積 1階 109.51㎡/ 2階 31.46㎡/ 計 140.97㎡ /42.64坪
土地面積 532.17㎡ /160.98坪
築年月 1975年1月(築51年)
入居(引き渡し)時期 随時入居(引き渡し)可
用途地域 無指定 地目 宅地  (現状:上物有り)
都市計画 非線引き都市計画区域 学校区 北鯖石小学校(1,362m)・東中学校(2,211m)
形状 - 道路 北側公道幅員5.1 m、南側公道幅員3.4m~4.2m
私道 - その他の制限 -
  • 柏崎畔屋 戸建て
    髙頭不動産 株式会社
  • この物件を問い合わせる/無料
  • TEL: 0120-1818-27

物件詳細情報

所在階/階数 - 号室 -
販売価格 3,300,000円 方位 指定なし
間取り 6DK
DK約10畳
・隣接地との境界の明示は行いません。・現況有形有姿での引渡しとなります。
専有面積 - バルコニー面積 -
その他面積 - 駐車場 -
管理費 - 修繕積立金 -
現況 空家
仲介手数料 330,000円
利用制限 -
設備 日当り良好、閑静な住宅街、駐車2台可能、駐車3台以上可能、トイレ2か所以上、エアコンあり、都市ガス、上水道、下水道、内装リフォーム済み、外装リフォーム済み
取引態様 一般
備考 ・隣接地との境界の明示は行いません。(公簿面積売買)
・隣接者所有の物置小屋一部が本物件内に越境しています。
・上記状況及び物件内の動産物(残置物)含めて現況有形有姿での引渡しです。
・南側公道幅員:3.4m~4.2m
取り扱い会社

髙頭不動産 株式会社

新潟県長岡市千歳1-3-25

情報登録日 2024/11/05 次回更新予定日 2026/04/05
取引条件有効期限 2024/01/02
  • 柏崎畔屋 戸建て
    髙頭不動産 株式会社
  • この物件を問い合わせる/無料
  • TEL: 0120-1818-27

この物件の地図・周辺情報・行政情報

この物件の周辺情報・行政情報を詳しく見る
【周辺情報】
物件の近くにあるコンビニや銀行・学校など、アイコン付のマップで詳しく表示できます!
【行政情報】
水道料や下水道料・ガス料金など、暮らしに関係のある情報を表示しています。

担当取扱い店舗情報

取扱い店舗画像
髙頭不動産 株式会社
TEL: 0120-1818-27
所在地: 新潟県長岡市千歳1-3-25
交通: 長岡駅
営業時間: 8時30分~17時30分(大手支店は9時~18時)/定休日:本社:土日祝日(事前予約での対応可能)、支店:日曜祝日第5土曜(毎年2月下旬から3月は休みなし)
免許番号: 新潟県知事(17)第191号 この会社の情報を詳しく見る
所属団体名: 新潟県宅地建物取引協会 長岡支部
取引態様: 一般
ホームページ: http://www.takato-f.com