1
物件掲載企業数:
301
社
|賃貸物件:
3,176
件|売買物件:
3,245
件|今週の登録物件:
73
件
閲覧中のブラウザ(インターネットエクスプローラー)は非推奨ブラウザです。
物件が正しく表示されなかったり、正しく検索されない場合があります。最新のブラウザ(Google Chrome・Edgeなど)にてご利用お願いいたします。
Google Chrome
Microsoft Edge
アパート・マンション・一戸建て
駐車場
貸土地
店舗
事務所
倉庫・工場
新築分譲マンション
中古マンション
新築一戸建て
中古一戸建て
売土地・分譲地
その他(投資物件など)
マンション
一戸建て
土地
ホーム
>
会社情報
>
物件種別選択
> 物件一覧
全エリア
の
中古一戸建て
物件情報
693件
該当しました。
<前のページ
17
18
19
20
21
22
23
24
25
26
27
次のページ>
表示切替:
一覧表示
/
地図表示
並び替え:
指定なし
新着順
価格が安い順
価格が高い順
画像
物件名/所在地/取扱店
詳細
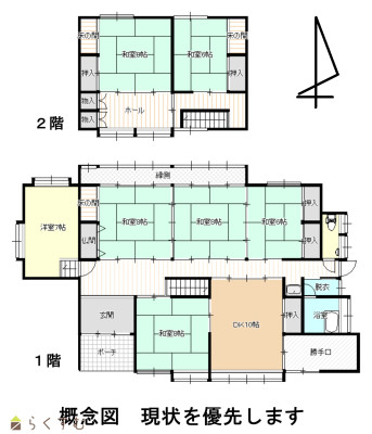
敷地面積256.37坪のゆとりある敷地に大家族向け9DK住宅。平成16年にリホームをし大変きれいな状態を維持しており、おどろきの築60年住宅です。
来迎寺
新潟県長岡市来迎寺甲1357番地
株式会社 高野不動産販売
価格
:
12,000,000
円
土地面積
:847.53㎡ /256.37坪
建物面積
:223.38㎡ /67.57坪
間取り
:9DK
築年月
:1965年4月
見附駅近く!!閑静な住宅地にある中古戸建です。
見附市本所1丁目 土地建物
新潟県見附市本所1丁目11番37号
新潟化成株式会社
価格
:
12,000,000
円
土地面積
:252.24㎡ /76.3坪
建物面積
:150.7㎡ /45.58坪
間取り
:4LDK
築年月
:1970年11月
■テラス~リビングから一望できる美しい日本海をご堪能下さい。 ■海砂を流して家の中へ!裏口~シャワールームへつながる動線 ■天領の里まで車で2分、ゴルフ場は車で9分!レジャーに最適な別荘です!
三島郡出雲崎町
新潟県三島郡出雲崎町勝見580-7
ハーバーエステート株式会社
価格
:
12,000,000
円
土地面積
:456㎡ /137.94坪
建物面積
:456㎡ /137.94坪
間取り
:2LDK
築年月
:1999年1月
1階店舗仕様、3階に居住スぺースあり、駐車5台
西神田中古住宅
新潟県長岡市西神田町二丁目2-9
有限会社 しのだ不動産
価格
:
12,000,000
円
土地面積
:198.21㎡ /59.95坪
建物面積
:162.77㎡ /49.23坪
間取り
:1LDK
築年月
:不詳
■【海まで散歩で行ける】松波エリアの築11年の2DK平屋住宅! ■柏崎市松波の静かで落ち着いた住環境♪ ■2DKのコンパクトハウスです。 ■コンビニまで徒歩2分!
柏崎市松波3丁目
新潟県柏崎市松波3丁目6-32-16
ハーバーエステート株式会社
価格
:
12,000,000
円
土地面積
:238.16㎡ /72.04坪
建物面積
:61.13㎡ /18.49坪
間取り
:2DK
築年月
:2013年5月
ラ・ムー愛宕店まで徒歩7分!インナーガレージ1台、他4台!駐車可能 和室が多い間取りですが、リノベーションのしやすさが魅力の大型住宅 インナーサッシ付・ユニットバス交換済
【長岡市東栄3】中古住宅
新潟県長岡市東栄3丁目1-24
ミサワホーム北越 株式会社
価格
:
12,000,000
円
土地面積
:256.02㎡ /77.44坪
建物面積
:183.32㎡ /55.45坪
間取り
:7DK
築年月
:1981年10月
【見学会開催】【リフォーム済み】 【即入居可能】 水回り設備を新品交換いたしましたので、ご入居後は気持ちよくお使いいただけます。対面キッチンで、リビングの様子を見ながら、お料理などをしていただけます。
柏崎市与三
新潟県柏崎市与三2051
株式会社 カチタス長岡店
価格
:
12,790,000
円
土地面積
:238㎡ /71.99坪
建物面積
:109.3㎡ /33.06坪
間取り
:5LDK
築年月
:1984年3月
■平成26年築■3LDK■コンビニ徒歩5分■駅・スーパー徒歩圏内
新潟市西区五十嵐中島2 中古物件
新潟県新潟市西区五十嵐中島2丁目12番18号8
株式会社 ナンバ管理
価格
:
12,800,000
円
土地面積
:109.49㎡ /33.12坪
建物面積
:100.98㎡ /30.54坪
間取り
:3LDK
築年月
:2014年3月
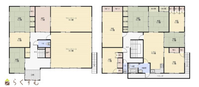
昭和62年9月築。令和3年12月一部外壁リフォーム。8DK+納戸、2・3階居住で収納ゆとりの住まい。インナーガレージ駐車2台可。シビックコアまで約1kmと買い物にも便利な立地。 DKはゆとりの10帖。
住吉2丁目 Bright中古戸建
新潟県長岡市住吉2丁目4-20
有限会社 ブライトサクセス
価格
:
12,800,000
円
土地面積
:178㎡ /53.84坪
建物面積
:233.58㎡ /70.65坪
間取り
:8DK
築年月
:1987年9月
前面道路は融雪道路です!大手ハウスメーカー施工
大手ハウスメーカー施工 出雲崎町山谷 中古住宅
新潟県三島郡出雲崎町山谷316-1
ブレイン・リアルエステート合同会社
価格
:
12,800,000
円
土地面積
:364.31㎡ /110.2坪
建物面積
:96.05㎡ /29.05坪
間取り
:3LDK
築年月
:2013年11月
北城町売家
新潟県上越市北城町4丁目8-20
株式会社山崎建設
価格
:
12,800,000
円
土地面積
:199㎡ /60.19坪
建物面積
:255.15㎡ /77.18坪
間取り
:6DK
築年月
:1993年12月
2台分車庫スペース有(車種によります)!!店舗兼住居なので店舗を趣味のスペースとして活用も♪
◆中古戸建◆加茂市新町二丁目
新潟県加茂市新町2丁目2-23
株式会社 ユタカ不動産
価格
:
12,800,000
円
土地面積
:385.39㎡ /116.58坪
建物面積
:93.62㎡ /28.32坪
間取り
:2LDK
築年月
:2018年9月
長岡駅周辺通勤・通学自転車・徒歩圏内♪利便性良好♪高床住宅です♪価格改定1480万円→1280万円(2026/3/12)
住吉二丁目中古住宅
新潟県長岡市住吉2丁目4番20号
株式会社 長岡総合開発
価格
:
12,800,000
円
土地面積
:178㎡ /53.84坪
建物面積
:233.58㎡ /70.65坪
間取り
:8DK
築年月
:1987年9月
■ミサワホーム施工 ■出雲崎地区の中心部で利便性◎ ■外物置・広い庭付き ■駐車並列2台可能 ■WIC・小屋裏収納等多彩な収納完備
三島郡出雲崎町大字山谷 築12年ミサワホーム施工住戸
新潟県三島郡出雲崎町山谷316-1
新潟土地建物販売センター 株式会社
価格
:
12,800,000
円
土地面積
:364.31㎡ /110.2坪
建物面積
:96.05㎡ /29.05坪
間取り
:3LDK
築年月
:2013年11月
≪四郎丸小学区≫中央図書館近く、長岡駅まで徒歩12分
店舗ビル 『四郎丸3丁目ビル』
長岡市四郎丸3丁目1-1
㈱スタッフサイトウ不動産部
価格
:
12,800,000
円
土地面積
:59.8㎡ /18.08坪
建物面積
:118.5㎡ /35.84坪
間取り
:3R
築年月
:1985年3月
3LDK リフォーム済、築12年、オール電化 、居間に土間、小屋裏収納、バルコニーあり
出雲崎町大字山谷売住宅
新潟県三島郡出雲崎町山谷316-1
株式会社 ホーメックス
価格
:
12,800,000
円
土地面積
:364.31㎡ /110.2坪
建物面積
:96.05㎡ /29.05坪
間取り
:3LDK
築年月
:2013年11月
車庫付き!上品で木材が贅沢に使われている家! 現在片付け&リフォーム中!一度見に来てください!
藤元町売住宅
新潟県柏崎市藤元町27
有限会社 不動産情報
価格
:
12,980,000
円
土地面積
:153.6㎡ /46.46坪
建物面積
:179.01㎡ /54.15坪
間取り
:6LDK
築年月
:1993年3月
価格改定【リセットハウス 予約制オープンハウス開催中!】長岡バイパス近く!オール電化5LDK+フリースペース付き♪駐車2台可。是非ご覧になってください。ご連絡お待ちしております。
長岡市雨池町 リセットハウス
新潟県長岡市雨池町135番地5
株式会社リアルト・ハーツ 長岡支店
価格
:
12,980,000
円
土地面積
:162.66㎡ /49.2坪
建物面積
:122.54㎡ /37.06坪
間取り
:5LDK
築年月
:1980年8月
【見学会開催】【リフォーム済】 【即入居可】 普通車並列3台駐車可能。前面道路の幅員約6m。運転が苦手な方でも楽々駐車。車通りが少ない閑静な住宅街。
刈羽村大字上高町甲58-33
新潟県刈羽郡刈羽村上高町甲58-33
株式会社 カチタス長岡店
価格
:
12,990,000
円
土地面積
:147.47㎡ /44.6坪
建物面積
:91.91㎡ /27.8坪
間取り
:4LDK
築年月
:1994年6月
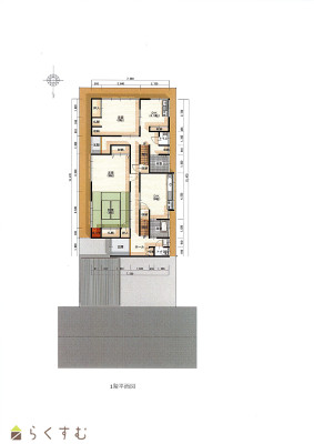
東が丘地内、3LDK+10帖小屋裏収納室リノベーション住宅
東が丘リノベーション住宅
新潟県長岡市東が丘丙397‐18
村山ハウス(株)
価格
:
13,000,000
円
土地面積
:303㎡ /91.65坪
建物面積
:94.11㎡ /28.46坪
間取り
:3LDK
築年月
:2002年5月
表示切替:
一覧表示
/
地図表示
並び替え:
指定なし
新着順
価格が安い順
価格が高い順
価格は物件の代金総額を表示しており、消費税が課税される場合は税込み価格です。
建築条件付き土地価格には、建物価格は含まれません。
物件情報の詳細については取り扱い店までお問い合わせください。
完成予想図はいずれも外構・植栽・外観等実際のものと異なることが多少あります。
CG合成の画像の場合実際と異なることが多少あります。
完成後1年以上経過したものが未入居として記載される場合があります。ご了承ください。
販売予定物件は販売開始するまで契約または予約の申し込みはできません。
ご購入の場合物件詳細や契約内容についてご自身で十分ご確認いただきますようよろしく御願いします。
建築条件付きとは…その土地に建築する建物の建築請負契約が、一定期間内に成立することを条件として売買される土地のことをいいます。請負契約成立に向けて設計プランを協議するため、土地購入者が希望する建物にするために一定の期間(概ね3ヶ月)交渉期間としその期間内に希望するプランが実現できたかどうかによって土地の購入の判断をします。納得のいくプランができず請負契約が未成立になった場合、土地契約にかかった代金(手付金など)は、すべて返却されます。
693件
該当しました。
<前のページ
17
18
19
20
21
22
23
24
25
26
27
次のページ>
0件
がマッチ
基本条件
物件種別
中古一戸建て
価格
下限なし
100万円
250万円
500万円
1000万円
1500万円
2000万円
2500万円
3000万円
3500万円
4000万円
4500万円
5000万円
5500万円
6000万円
6500万円
7000万円
7500万円
8000万円
8500万円
9000万円
9500万円
1億円
~
上限なし
100万円
250万円
500万円
1000万円
1500万円
2000万円
2500万円
3000万円
3500万円
4000万円
4500万円
5000万円
5500万円
6000万円
6500万円
7000万円
7500万円
8000万円
8500万円
9000万円
9500万円
1億円
間取り
ワンルーム
1K
1DK
1LDK
2K
2DK
2LDK
3K
3DK
3LDK
4K
4DK
4LDK以上
専有面積
下限なし
20㎡
30㎡
40㎡
50㎡
60㎡
70㎡
80㎡
90㎡
100㎡
~
上限なし
20㎡
30㎡
40㎡
50㎡
60㎡
70㎡
80㎡
90㎡
100㎡
土地面積
下限なし
60㎡ (約18坪)
70㎡ (約21坪)
80㎡ (約24坪)
90㎡ (約27坪)
100㎡ (約30坪)
110㎡ (約33坪)
120㎡ (約36坪)
130㎡ (約39坪)
140㎡ (約42坪)
150㎡ (約45坪)
160㎡ (約48坪)
170㎡ (約51坪)
180㎡ (約54坪)
190㎡ (約57坪)
200㎡ (約60坪)
250㎡ (約75坪)
300㎡ (約90坪)
~
上限なし
60㎡ (約18坪)
70㎡ (約21坪)
80㎡ (約24坪)
90㎡ (約27坪)
100㎡ (約30坪)
110㎡ (約33坪)
120㎡ (約36坪)
130㎡ (約39坪)
140㎡ (約42坪)
150㎡ (約45坪)
160㎡ (約48坪)
170㎡ (約51坪)
180㎡ (約54坪)
190㎡ (約57坪)
200㎡ (約60坪)
250㎡ (約75坪)
300㎡ (約90坪)
建物面積
下限なし
60㎡ (約18坪)
70㎡ (約21坪)
80㎡ (約24坪)
90㎡ (約27坪)
100㎡ (約30坪)
110㎡ (約33坪)
120㎡ (約36坪)
130㎡ (約39坪)
140㎡ (約42坪)
150㎡ (約45坪)
160㎡ (約48坪)
170㎡ (約51坪)
180㎡ (約54坪)
190㎡ (約57坪)
200㎡ (約60坪)
250㎡ (約75坪)
300㎡ (約90坪)
~
上限なし
60㎡ (約18坪)
70㎡ (約21坪)
80㎡ (約24坪)
90㎡ (約27坪)
100㎡ (約30坪)
110㎡ (約33坪)
120㎡ (約36坪)
130㎡ (約39坪)
140㎡ (約42坪)
150㎡ (約45坪)
160㎡ (約48坪)
170㎡ (約51坪)
180㎡ (約54坪)
190㎡ (約57坪)
200㎡ (約60坪)
250㎡ (約75坪)
300㎡ (約90坪)
坪単価
下限なし
5万円
10万円
15万円
20万円
25万円
30万円
35万円
40万円
45万円
50万円
~
上限なし
5万円
10万円
15万円
20万円
25万円
30万円
35万円
40万円
45万円
50万円
築年数
指定なし
新築
3年以内
5年以内
10年以内
15年以内
20年以内
方位
北
北東
東
南東
南
南西
西
北西
おすすめ条件
ペット可・相談
楽器可・相談
情報公開日
指定なし
本日
3日以内
1週間以内
1ヶ月以内
0件
がマッチ
人気のあるこだわり条件
角地(134)
高台に立地(40)
日当り良好(341)
閑静な住宅街(370)
スーパー近く(145)
長期優良住宅(3)
設計住宅性能評価付(2)
耐震構造(9)
フラット35S適合(1)
瑕疵担保保険対象(7)
耐震基準適合証明書あり(3)
新築時図面あり(58)
修繕記録あり(9)
BELS/省エネ基準適合認定建物(2)
インスペクション報告書あり(8)
建物確認・完了検査済証あり(26)
適合状況調査報告書あり(1)
瑕疵担保保険付き(16)
LDK15帖以上(145)
全室フローリング(54)
築10年以内(40)
築15年以内(26)
駐車2台可能(232)
駐車3台以上可能(265)
駐車場融雪設備あり(33)
南向き(150)
TVインターホン(127)
複層ガラス(84)
デインプルキー(36)
システムキッチン(240)
カウンターキッチン(74)
IHクッキングヒーター(108)
浄水器(29)
食器洗浄乾燥機(52)
3口コンロ(152)
2口コンロ(27)
ガスコンロ設置可能(37)
ガスコンロ設置済み(44)
追いだき機能付き(297)
浴室乾燥機(52)
バス1坪以上(250)
温水洗浄便座(323)
トイレ2か所以上(231)
シャワー付き洗面台(197)
エアコンあり(252)
床暖房(15)
24時間換気システム(41)
堀ごたつ(3)
全室エアコン(12)
オール電化(51)
太陽光発電システム(5)
省エネ給湯機(48)
ウッドデッキ・テラス(21)
ルーフバルコニー(15)
都市ガス(443)
LPG(98)
上水道(585)
下水道(502)
浄化槽(66)
バリアフリー(25)
その他水道(3)
ウォークインクローゼット(89)
全居室収納あり(127)
床下収納(45)
シューズBOX(149)
シューズインクローゼット(18)
BS端子(18)
CS(5)
CATV(7)
LAN端子(3)
内装リフォーム済み(81)
外装リフォーム済み(59)
リノベーション物件(31)
2世帯向き(36)
即引き渡し可能(150)
別荘(74)
田舎暮らし(168)
事業向け(46)
条件に合った物件数は、
0 件
です。
立地・環境
角地(134)
高台に立地(40)
日当り良好(341)
閑静な住宅街(370)
スーパー近く(145)
構造・工法・仕様
長期優良住宅(3)
設計住宅性能評価付(2)
耐震構造(9)
フラット35S適合(1)
瑕疵担保保険対象(7)
耐震基準適合証明書あり(3)
新築時図面あり(58)
修繕記録あり(9)
BELS/省エネ基準適合認定建物(2)
インスペクション報告書あり(8)
建物確認・完了検査済証あり(26)
適合状況調査報告書あり(1)
瑕疵担保保険付き(16)
面積・間取り
LDK15帖以上(145)
全室フローリング(54)
築年
築10年以内(40)
築15年以内(26)
駐車・駐輪
駐車2台可能(232)
駐車3台以上可能(265)
駐車場融雪設備あり(33)
採光・向き
南向き(150)
管理・防犯
TVインターホン(127)
複層ガラス(84)
デインプルキー(36)
キッチン
システムキッチン(240)
カウンターキッチン(74)
IHクッキングヒーター(108)
浄水器(29)
食器洗浄乾燥機(52)
3口コンロ(152)
2口コンロ(27)
ガスコンロ設置可能(37)
ガスコンロ設置済み(44)
浴室
追いだき機能付き(297)
浴室乾燥機(52)
バス1坪以上(250)
トイレ
温水洗浄便座(323)
トイレ2か所以上(231)
洗面所
シャワー付き洗面台(197)
冷暖房・空調
エアコンあり(252)
床暖房(15)
24時間換気システム(41)
堀ごたつ(3)
全室エアコン(12)
光熱設備
オール電化(51)
太陽光発電システム(5)
省エネ給湯機(48)
バルコニー・テラス
ウッドデッキ・テラス(21)
ルーフバルコニー(15)
室内仕様・設備
都市ガス(443)
LPG(98)
上水道(585)
下水道(502)
浄化槽(66)
バリアフリー(25)
その他水道(3)
収納
ウォークインクローゼット(89)
全居室収納あり(127)
床下収納(45)
シューズBOX(149)
シューズインクローゼット(18)
電気設備
BS端子(18)
CS(5)
CATV(7)
LAN端子(3)
リフォーム
内装リフォーム済み(81)
外装リフォーム済み(59)
リノベーション物件(31)
費用・入居・引渡・条件
2世帯向き(36)
即引き渡し可能(150)
その他
別荘(74)
田舎暮らし(168)
事業向け(46)
条件に合った物件数は、
0 件
です。
アパート・マンション・一戸建て
/
駐車場
/
貸土地
/
店舗
/
事務所
/
倉庫・工場
新築分譲マンション
/
中古マンション
/
新築一戸建て
/
中古一戸建て
/
売土地
/
投資物件・その他
マンション
/
一戸建て
/
土地
建てる・リフォーム
物件掲載企業一覧
掲載希望の企業様へ
新潟の不動産情報サイト
サービス利用規約
運営会社
サイトマップ
プライバシーポリシー
お問い合わせ
リンク
Copyright (C)
株式会社 コモンライフ・コーポレーション
. All Rights Reserved.
新潟・長岡・柏崎の賃貸・マンション・アパート・住宅の不動産物件情報サイト
不動産検索サイト「らくすむ」及び関連サイトに記載の不動産情報は、会員規約に則り、情報提供会社様の責任のもとに発信されております。
不動産の賃借、購入に関しては賃借者、購入者ご自身が情報を確認され、会社企業様から説明を受けられたうえで判断をお願いいたします。
不動産検索サイト「らくすむ」及び関連サイトに記載の不動産情報、写真、デザイン、コンテンツなどの
無断転載・転用・複製
など禁止します。