物件掲載企業数:299|賃貸物件:2,911件|売買物件:3,228件|今週の登録物件:348
閲覧中のブラウザ(インターネットエクスプローラー)は非推奨ブラウザです。
物件が正しく表示されなかったり、正しく検索されない場合があります。最新のブラウザ(Google Chrome・Edgeなど)にてご利用お願いいたします。
  

新潟県長岡市土合1丁目5-19 中古一戸建て 7DK 9,800,000円の物件情報

【7DK×ガレージ完備】冬の除雪を軽減するガレージ付。部屋数7部屋で大人数世帯でもゆったり過ごせる大空間。

物件名/所在地 詳細 価格
長岡市土合 中古物件
新潟県長岡市土合1丁目5-19
  • 土地面積
    :99.17㎡ /29.99坪
  • 建物面積
    :164.99㎡ /49.9坪
  • 間取り
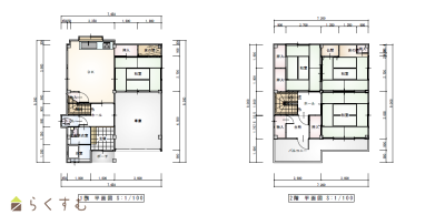
    :7DK
  • 築年月
    :1982年7月
9,800,000
  • 長岡市土合 中古物件
    戸建エース / (株)アップデート不動産
  • この物件を問い合わせる/無料
  • TEL: 080-7289-9376

物件画像

外観 間取り
物件画像
※画像クリックで拡大表示
外観
物件画像
※画像クリックで拡大表示
間取り
詳細画像


物件概要

物件コード 00221-200246
物件名 長岡市土合 中古物件
交通 駅:信越線 長岡駅から徒歩23分、バス:帝京長岡中学高校前から徒歩5分
物件所在地 新潟県長岡市土合1丁目5-19
物件種別 中古一戸建て
構造 鉄骨 階建 地上3階建
建ぺい率/容積率 60%/200%
建物面積 1階 61.31㎡/ 2階 51.84㎡/ 3階 51.84㎡/ 計 164.99㎡ /49.9坪
土地面積 99.17㎡ /29.99坪
築年月 1982年7月(築43年)
入居(引き渡し)時期 相談
用途地域 第1種低層住居専用地域 地目 宅地
都市計画 市街化区域 学校区 豊田小学校(698m)・旭岡中学校(792m)
形状 - 道路 -
私道 - その他の制限 -
  • 長岡市土合 中古物件
    戸建エース / (株)アップデート不動産
  • この物件を問い合わせる/無料
  • TEL: 080-7289-9376

物件詳細情報

所在階/階数 - 号室 -
販売価格 9,800,000円 方位 -
間取り 7DK
専有面積 - バルコニー面積 -
その他面積 - 駐車場 -
管理費 - 修繕積立金 -
現況 居住中
仲介手数料 389,400円
利用制限 -
設備 閑静な住宅街、駐車2台可能、都市ガス、上水道、下水道、シューズBOX、2世帯向き
取引態様 専任
備考 -
取り扱い会社

戸建エース / (株)アップデート不動産

新潟県長岡市古正寺3丁目116

情報登録日 2026/01/27 次回更新予定日 2026/04/05
取引条件有効期限 2025/10/31
  • 長岡市土合 中古物件
    戸建エース / (株)アップデート不動産
  • この物件を問い合わせる/無料
  • TEL: 080-7289-9376

この物件の地図・周辺情報・行政情報

この物件の周辺情報・行政情報を詳しく見る
【周辺情報】
物件の近くにあるコンビニや銀行・学校など、アイコン付のマップで詳しく表示できます!
【行政情報】
水道料や下水道料・ガス料金など、暮らしに関係のある情報を表示しています。
セブン-イレブン 長岡土合店(コンビニ)まで160m
セブン-イレブン 長岡豊田町店(コンビニ)まで620m
ファミリーマート 長岡曙店(コンビニ)まで760m
原信 シビックコア店(スーパー)まで1110m
マルイ 長岡学校町店(スーパー)まで920m
長岡花園郵便局(郵便局)までm

※カメラのアイコンがある場合は、マウスをポイントするとその施設の画像がご覧いただけます。


担当取扱い店舗情報

取扱い店舗画像
戸建エース / (株)アップデート不動産
TEL: 080-7289-9376
所在地: 新潟県長岡市古正寺3丁目116
交通:
営業時間: 10:00~17:00/定休日:水曜日 木曜日
免許番号: 新潟県知事(2)第5484号 この会社の情報を詳しく見る
所属団体名: 新潟県宅地建物取引業協会 長岡支部
取引態様: 専任
ホームページ: https://update-estate.com/