1
物件掲載企業数:
299
社
|賃貸物件:
2,912
件|売買物件:
3,228
件|今週の登録物件:
350
件
閲覧中のブラウザ(インターネットエクスプローラー)は非推奨ブラウザです。
物件が正しく表示されなかったり、正しく検索されない場合があります。最新のブラウザ(Google Chrome・Edgeなど)にてご利用お願いいたします。
Google Chrome
Microsoft Edge
アパート・マンション・一戸建て
駐車場
貸土地
店舗
事務所
倉庫・工場
新築分譲マンション
中古マンション
新築一戸建て
中古一戸建て
売土地・分譲地
その他(投資物件など)
マンション
一戸建て
土地
ホーム
>
検索方法選択
>
エリア選択
> 物件一覧
全エリア
の
新築一戸建て
一覧
149件
該当しました。
<前のページ
1
2
3
4
5
6
7
次のページ>
表示切替:
一覧表示
/
地図表示
並び替え:
指定なし
新着順
価格が安い順
価格が高い順
画像
物件名/所在地/取扱店
詳細
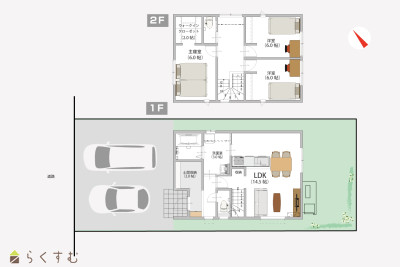
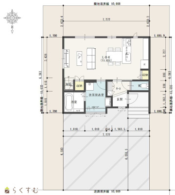
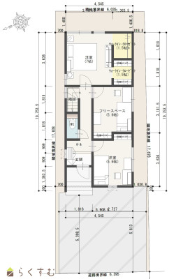
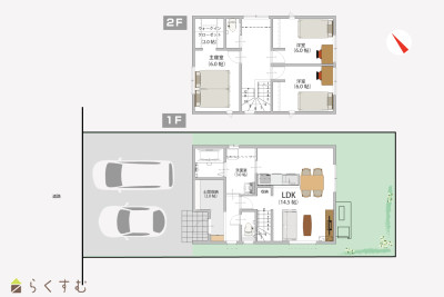
2階LDKは日当たり良好♪◆2SLDK◆物干しスペース◆使いやすい家事動線
長岡市草生津2丁目 建売住宅
新潟県長岡市草生津2丁目88番1
有限会社 一代工務店
価格
:
23,800,000
円
土地面積
:114.71㎡ /34.69坪
建物面積
:92.54㎡ /27.99坪
間取り
:2LDK
築年月
:2026年4月
【寒冷地対応の「北海道仕様」で冬も安心の一棟】 ■前面道路に消雪パイプ完備 ■駐車3台可能 ■エアコン2台付き ■24時間熱交換換気搭載で空気を快適に保ちます
( 新築住宅)長岡市寿 全2棟 西棟
新潟県長岡市寿3丁目4-7付近
新潟土地建物販売センター 株式会社
価格
:
23,800,000
円
土地面積
:132.24㎡ /40坪
建物面積
:84.46㎡ /25.54坪
間取り
:3LDK
築年月
:2026年3月
2025年12月完成。国道8号線へのアクセス良好!スーパーも徒歩4分で買い物にも便利な立地! 吹抜けで2階とつながるリビング、どこにいても家族の気配を感じられます
見附市今町5丁目 新築戸建
新潟県見附市今町5丁目23−23
有限会社 ブライトサクセス
価格
:
23,800,000
円
土地面積
:121.43㎡ /36.73坪
建物面積
:82.8㎡ /25.04坪
間取り
:3LDK
築年月
:2025年12月
【成約特典あり♪】 ■アフターメンテナンス、選べるプレゼント付き ■駐車並列4台可 ■柏崎市IC至近!通勤やお出かけに便利 ■全居室収納有 ■インナーバルコニー付で洗濯干しに困りません
(新築住宅)柏崎市茨目 第1 2号棟
新潟県柏崎市茨目18-7付近
新潟土地建物販売センター 株式会社
価格
:
23,800,000
円
土地面積
:165.4㎡ /50.03坪
建物面積
:98.41㎡ /29.76坪
間取り
:4LDK
築年月
:2026年9月
近隣商業施設充実◆対面キッチン♪◆LDK南向き◆前面道路に消雪パイプあり!
三条市曲渕3丁目 建売住宅③
新潟県三条市曲渕3丁目137番14
有限会社 一代工務店
価格
:
23,900,000
円
土地面積
:165.65㎡ /50.1坪
建物面積
:84㎡ /25.41坪
間取り
:3LDK
築年月
:2026年3月
スーパー・コンビニなど商業施設至近◆保育園・小中学校も徒歩圏内◆WIC付♪
燕市大曲 建売住宅 2号棟
新潟県燕市大曲字居付2628番3
有限会社 一代工務店
価格
:
23,900,000
円
土地面積
:190.5㎡ /57.62坪
建物面積
:87.58㎡ /26.49坪
間取り
:3LDK
築年月
:2026年4月
クスリのアオキ小高店まで徒歩4分!小高保育園まで徒歩4分!イオン県央店まで車で5分!
小高 新築建売住宅 燕東小学校区
新潟県燕市小高字新田752番3、753番2
ダイエープロビス株式会社
価格
:
24,300,000
円
土地面積
:113.13㎡ /34.22坪
建物面積
:85.29㎡ /25.8坪
間取り
:3LDK
築年月
:2025年5月
【10/2価格改定】ウオロク北山店徒歩7分、希望が丘小学校徒歩8分!近くの土手から長岡花火が見える立地です♪普段は土手沿いのお散歩、ウォーキングなどもいいですね♪
北山 新築建売 希望が丘小学校区
新潟県長岡市北山4丁目39-8、39-17
ダイエープロビス株式会社
価格
:
24,500,000
円
土地面積
:132.79㎡ /40.16坪
建物面積
:87.77㎡ /26.55坪
間取り
:3LDK
築年月
:2025年7月
\家事動線が短縮される回遊動線のお家/ ■前面道路6m、消雪パイプあり ■駐車2台可能 ■カーテン&LDKエアコン付き ■スーパーなどの商業施設や小中学校が徒歩圏内
(新築住宅)長岡市北山
新潟県長岡市北山4丁目39ー17付近
新潟土地建物販売センター 株式会社
価格
:
24,500,000
円
土地面積
:132.79㎡ /40.16坪
建物面積
:87.77㎡ /26.55坪
間取り
:3LDK
築年月
:2025年7月
角地◆リビング16.1帖♪◆乾太くん設置!◆WIC2.8帖◆パントリーあり♪
長岡市中沢4丁目 建売住宅
新潟県長岡市中沢4丁目395番18
有限会社 一代工務店
価格
:
24,600,000
円
土地面積
:138㎡ /41.74坪
建物面積
:89.78㎡ /27.15坪
間取り
:3LDK
築年月
:2026年8月
【11/29価格改定】2560万円⇒2480万円◆川崎東小学校・東北中学校エリアの建売住宅。 原信・コメリ様の他、飲食店など至近♪ 川崎ICにも近く、アクセス性良好!
長岡市豊2丁目 建売住宅 1号棟
新潟県長岡市豊2丁目1940番11
有限会社 一代工務店
価格
:
24,800,000
円
土地面積
:125.99㎡ /38.11坪
建物面積
:90.88㎡ /27.49坪
間取り
:3LDK
築年月
:2025年5月
敷地は77坪!◆スーパー・コンビニ、小中学校も徒歩圏内◆乾太くん設置◆WIC
柏崎市半田1丁目 建売住宅
新潟県柏崎市半田1丁目字前谷内975番1
有限会社 一代工務店
価格
:
24,800,000
円
土地面積
:257㎡ /77.74坪
建物面積
:89.23㎡ /26.99坪
間取り
:3LDK
築年月
:2026年1月
【収納スペースが充実した北海道仕様の高気密・高断熱住宅】■前面道路に消雪パイプ完備■駐車3台可能■エアコン2台付き■24時間熱交換換気搭載で空気を快適に保ちます
( 新築住宅)長岡市寿 全2棟 東棟
新潟県長岡市寿3丁目4-7付近
新潟土地建物販売センター 株式会社
価格
:
24,800,000
円
土地面積
:132.24㎡ /40坪
建物面積
:91.08㎡ /27.55坪
間取り
:3LDK
築年月
:2026年3月
価格改定 ☆オープンハウス開催中(予約制) ☆3LDK・オール電化住宅 ☆17.7帖LDKは3面採光 ☆全室2面採光 ☆浴室暖房乾燥機・食洗機完備 ☆駐車並列2台可
【テイラーハウス】新潟市東区船江町1丁目(A棟)
新潟県新潟市東区船江町1-51-8A棟
株式会社ハーツリアルエステート 新潟支店
価格
:
24,980,000
円
土地面積
:132.5㎡ /40.08坪
建物面積
:91.3㎡ /27.61坪
間取り
:3LDK
築年月
:2024年8月
展示終了に伴い大幅プライスダウン! このチャンスをお見逃しなく(^^)/
春日新田モデル
新潟県上越市春日新田2-7-40-1
日成商事株式会社
価格
:
25,400,000
円
土地面積
:164.1㎡ /49.64坪
建物面積
:120.31㎡ /36.39坪
間取り
:4LDK
築年月
:2025年7月
太陽光パネル搭載で電気代を節約できるオール電化住宅。インナーガレージ2台分を備え、1階+1.5階+2階の立体的な3層設計で、限られた空間を無駄なく活かした快適な住まいです。
陽光台4丁目 未入居戸建
新潟県長岡市陽光台4丁目1379-167
有限会社 ブライトサクセス
価格
:
25,800,000
円
土地面積
:205.22㎡ /62.07坪
建物面積
:115.09㎡ /34.81坪
間取り
:2LDK
築年月
:2024年4月
\駐車場完備!長岡のお店で相談できます/【当日見学予約大歓迎】 ■国道17号線近くアクセス良好 ■集中できる2帖のテレワークルーム付き ■玄関収納・全居室収納・廊下収納・WICなど収納充実
(新築住宅)長岡市中沢 第2 1号棟
新潟県長岡市中沢2丁目1146-5付近
新潟土地建物販売センター 株式会社
価格
:
25,800,000
円
土地面積
:150.63㎡ /45.56坪
建物面積
:95.58㎡ /28.91坪
間取り
:3LDK
築年月
:2026年7月
月々の支払が6万円台~とアパートの家賃並みでマイホームでの暮らしが叶う☆健康と快適性が優れた高気密・高断熱住宅!
上越高土町B 新築建売物件
新潟県上越市高土町2-183
株式会社アップデート不動産
価格
:
25,800,000
円
土地面積
:140.34㎡ /42.45坪
建物面積
:87.77㎡ /26.55坪
間取り
:3LDK
築年月
:2025年8月
【リップス愛宕まで徒歩8分】北海道仕様の高性能住宅 ■前面道路に消雪パイプ完備 ■二重断熱×トリプルサッシで家中快適 ■24時間換気で空気も温度も心地よくキープ ■エアコン2台付
( 新築住宅)長岡市東栄
新潟県長岡市東栄3丁目1-21付近
新潟土地建物販売センター 株式会社
価格
:
25,800,000
円
土地面積
:132.23㎡ /39.99坪
建物面積
:86.11㎡ /26.04坪
間取り
:3LDK
築年月
:2026年2月
【長岡市陽光台】新価格2580万円! ◆空間を有効活用できる3層のスキップフロアのある家♪ ◆南向きの片流れ屋根には太陽光パネルを搭載! ◆嬉しいエアコン3台&カップボード&カーテン付き♪ ◆2台分のインナーガレージを完備!
(新築住宅)長岡市陽光台
新潟県長岡市陽光台4丁目1379-130付近
新潟土地建物販売センター 株式会社
価格
:
25,800,000
円
土地面積
:205.22㎡ /62.07坪
建物面積
:115.09㎡ /34.81坪
間取り
:3LDK
築年月
:2024年4月
表示切替:
一覧表示
/
地図表示
並び替え:
指定なし
新着順
価格が安い順
価格が高い順
価格は物件の代金総額を表示しており、消費税が課税される場合は税込み価格です。
建築条件付き土地価格には、建物価格は含まれません。
物件情報の詳細については取り扱い店までお問い合わせください。
完成予想図はいずれも外構・植栽・外観等実際のものと異なることが多少あります。
CG合成の画像の場合実際と異なることが多少あります。
完成後1年以上経過したものが未入居として記載される場合があります。ご了承ください。
販売予定物件は販売開始するまで契約または予約の申し込みはできません。
ご購入の場合物件詳細や契約内容についてご自身で十分ご確認いただきますようよろしく御願いします。
建築条件付きとは…その土地に建築する建物の建築請負契約が、一定期間内に成立することを条件として売買される土地のことをいいます。請負契約成立に向けて設計プランを協議するため、土地購入者が希望する建物にするために一定の期間(概ね3ヶ月)交渉期間としその期間内に希望するプランが実現できたかどうかによって土地の購入の判断をします。納得のいくプランができず請負契約が未成立になった場合、土地契約にかかった代金(手付金など)は、すべて返却されます。
149件
該当しました。
<前のページ
1
2
3
4
5
6
7
次のページ>
0件
がマッチ
基本条件
物件種別
新築一戸建て
価格
下限なし
100万円
250万円
500万円
1000万円
1500万円
2000万円
2500万円
3000万円
3500万円
4000万円
4500万円
5000万円
5500万円
6000万円
6500万円
7000万円
7500万円
8000万円
8500万円
9000万円
9500万円
1億円
~
上限なし
100万円
250万円
500万円
1000万円
1500万円
2000万円
2500万円
3000万円
3500万円
4000万円
4500万円
5000万円
5500万円
6000万円
6500万円
7000万円
7500万円
8000万円
8500万円
9000万円
9500万円
1億円
間取り
ワンルーム
1K
1DK
1LDK
2K
2DK
2LDK
3K
3DK
3LDK
4K
4DK
4LDK以上
専有面積
下限なし
20㎡
30㎡
40㎡
50㎡
60㎡
70㎡
80㎡
90㎡
100㎡
~
上限なし
20㎡
30㎡
40㎡
50㎡
60㎡
70㎡
80㎡
90㎡
100㎡
土地面積
下限なし
60㎡ (約18坪)
70㎡ (約21坪)
80㎡ (約24坪)
90㎡ (約27坪)
100㎡ (約30坪)
110㎡ (約33坪)
120㎡ (約36坪)
130㎡ (約39坪)
140㎡ (約42坪)
150㎡ (約45坪)
160㎡ (約48坪)
170㎡ (約51坪)
180㎡ (約54坪)
190㎡ (約57坪)
200㎡ (約60坪)
250㎡ (約75坪)
300㎡ (約90坪)
~
上限なし
60㎡ (約18坪)
70㎡ (約21坪)
80㎡ (約24坪)
90㎡ (約27坪)
100㎡ (約30坪)
110㎡ (約33坪)
120㎡ (約36坪)
130㎡ (約39坪)
140㎡ (約42坪)
150㎡ (約45坪)
160㎡ (約48坪)
170㎡ (約51坪)
180㎡ (約54坪)
190㎡ (約57坪)
200㎡ (約60坪)
250㎡ (約75坪)
300㎡ (約90坪)
建物面積
下限なし
60㎡ (約18坪)
70㎡ (約21坪)
80㎡ (約24坪)
90㎡ (約27坪)
100㎡ (約30坪)
110㎡ (約33坪)
120㎡ (約36坪)
130㎡ (約39坪)
140㎡ (約42坪)
150㎡ (約45坪)
160㎡ (約48坪)
170㎡ (約51坪)
180㎡ (約54坪)
190㎡ (約57坪)
200㎡ (約60坪)
250㎡ (約75坪)
300㎡ (約90坪)
~
上限なし
60㎡ (約18坪)
70㎡ (約21坪)
80㎡ (約24坪)
90㎡ (約27坪)
100㎡ (約30坪)
110㎡ (約33坪)
120㎡ (約36坪)
130㎡ (約39坪)
140㎡ (約42坪)
150㎡ (約45坪)
160㎡ (約48坪)
170㎡ (約51坪)
180㎡ (約54坪)
190㎡ (約57坪)
200㎡ (約60坪)
250㎡ (約75坪)
300㎡ (約90坪)
坪単価
下限なし
5万円
10万円
15万円
20万円
25万円
30万円
35万円
40万円
45万円
50万円
~
上限なし
5万円
10万円
15万円
20万円
25万円
30万円
35万円
40万円
45万円
50万円
築年数
指定なし
新築
3年以内
5年以内
10年以内
15年以内
20年以内
方位
北
北東
東
南東
南
南西
西
北西
おすすめ条件
ペット可・相談
楽器可・相談
情報公開日
指定なし
本日
3日以内
1週間以内
1ヶ月以内
0件
がマッチ
人気のあるこだわり条件
角地(25)
高台に立地(10)
整形地(117)
前面道路6m以上(111)
日当り良好(121)
閑静な住宅街(113)
スーパー近く(84)
長期優良住宅(21)
設計住宅性能評価付き(33)
耐震構造(39)
BELS/省エネ基準適合認定建物(56)
瑕疵担保保険付き(29)
建物確認・完了検査済証あり(41)
フラット35S適合(32)
LDK15畳以上(117)
全室フローリング(110)
天井高2.5m以上(21)
駐車場2台以上(100)
駐車場3台以上(81)
南向き(72)
庭あり(59)
TVインターホン(135)
複層ガラス(124)
ディンプルキー(69)
システムキッチン(139)
カウンターキッチン(96)
IHクッキングヒーター(121)
浄水器(40)
食器洗浄乾燥機(57)
3口コンロ(90)
ガスコンロ設置済み(16)
追いだき機能付き(125)
浴室暖房乾燥機(36)
バス1坪以上(141)
浴室TV(2)
温水洗浄便座(140)
シャワー付き洗面台(129)
エアコン(112)
床暖房(6)
24時間換気システム(114)
全室エアコン(3)
オール電化(85)
太陽光発電システム(5)
省エネ給湯(115)
高気密高断熱住宅(104)
ウッドデッキ・テラス(21)
ルーフバルコニー(6)
都市ガス(63)
LPG(1)
上水道(145)
下水道(142)
浄化槽(5)
電気(138)
ウォークインクローゼット(95)
全居室収納あり(118)
床下収納(55)
シューズインクローゼット(53)
シューズBOX(88)
BS端子(15)
CS(1)
CATV(1)
LAN端子(17)
照明器具付き(89)
即引き渡し可能(53)
バリアフリー(50)
条件に合った物件数は、
0 件
です。
立地・環境
角地(25)
高台に立地(10)
整形地(117)
前面道路6m以上(111)
日当り良好(121)
閑静な住宅街(113)
スーパー近く(84)
構造・工法・仕様
長期優良住宅(21)
設計住宅性能評価付き(33)
耐震構造(39)
BELS/省エネ基準適合認定建物(56)
瑕疵担保保険付き(29)
建物確認・完了検査済証あり(41)
フラット35S適合(32)
面積・間取り
LDK15畳以上(117)
全室フローリング(110)
天井高2.5m以上(21)
駐車・駐輪
駐車場2台以上(100)
駐車場3台以上(81)
採光・向き
南向き(72)
ガーデン
庭あり(59)
管理・防犯
TVインターホン(135)
複層ガラス(124)
ディンプルキー(69)
キッチン
システムキッチン(139)
カウンターキッチン(96)
IHクッキングヒーター(121)
浄水器(40)
食器洗浄乾燥機(57)
3口コンロ(90)
ガスコンロ設置済み(16)
浴室
追いだき機能付き(125)
浴室暖房乾燥機(36)
バス1坪以上(141)
浴室TV(2)
トイレ
温水洗浄便座(140)
洗面所
シャワー付き洗面台(129)
冷暖房・空調
エアコン(112)
床暖房(6)
24時間換気システム(114)
全室エアコン(3)
光熱設備
オール電化(85)
太陽光発電システム(5)
省エネ給湯(115)
高気密高断熱住宅(104)
バルコニー・テラス
ウッドデッキ・テラス(21)
ルーフバルコニー(6)
室内仕様・設備
都市ガス(63)
LPG(1)
上水道(145)
下水道(142)
浄化槽(5)
電気(138)
収納
ウォークインクローゼット(95)
全居室収納あり(118)
床下収納(55)
シューズインクローゼット(53)
シューズBOX(88)
電気設備
BS端子(15)
CS(1)
CATV(1)
LAN端子(17)
照明器具付き(89)
費用・入居・引渡・条件
即引き渡し可能(53)
その他
バリアフリー(50)
条件に合った物件数は、
0 件
です。
アパート・マンション・一戸建て
/
駐車場
/
貸土地
/
店舗
/
事務所
/
倉庫・工場
新築分譲マンション
/
中古マンション
/
新築一戸建て
/
中古一戸建て
/
売土地
/
投資物件・その他
マンション
/
一戸建て
/
土地
建てる・リフォーム
物件掲載企業一覧
掲載希望の企業様へ
新潟の不動産情報サイト
サービス利用規約
運営会社
サイトマップ
プライバシーポリシー
お問い合わせ
リンク
Copyright (C)
株式会社 コモンライフ・コーポレーション
. All Rights Reserved.
新潟・長岡・柏崎の賃貸・マンション・アパート・住宅の不動産物件情報サイト
不動産検索サイト「らくすむ」及び関連サイトに記載の不動産情報は、会員規約に則り、情報提供会社様の責任のもとに発信されております。
不動産の賃借、購入に関しては賃借者、購入者ご自身が情報を確認され、会社企業様から説明を受けられたうえで判断をお願いいたします。
不動産検索サイト「らくすむ」及び関連サイトに記載の不動産情報、写真、デザイン、コンテンツなどの
無断転載・転用・複製
など禁止します。