物件掲載企業数:301|賃貸物件:3,289件|売買物件:3,252件|今週の登録物件:351
閲覧中のブラウザ(インターネットエクスプローラー)は非推奨ブラウザです。
物件が正しく表示されなかったり、正しく検索されない場合があります。最新のブラウザ(Google Chrome・Edgeなど)にてご利用お願いいたします。
  

新潟県長岡市花園3丁目 新築一戸建て 4LDK 28,800,000円の物件情報

2025年11月完成。リビング隣の6帖の空間。子どもの遊びや昼寝に最適、将来は仕切って客間や寝室にも。洗面室は3帖あり、洗う・干す・しまうが1室で完結。キッチンと洗面室が隣接しており、家事動線がスムーズ。

物件名/所在地 詳細 価格
花園3丁目 新築戸建
新潟県長岡市花園3丁目
  • 土地面積
    :145.96㎡ /44.15坪
  • 建物面積
    :92.74㎡ /28.05坪
  • 間取り
    :4LDK
  • 築年月
    :2025年11月
28,800,000
  • 花園3丁目 新築戸建
    有限会社 ブライトサクセス
  • この物件を問い合わせる/無料
  • TEL: 0258-35-2220

物件画像

外観 間取り
物件画像
※画像クリックで拡大表示
外観パース
物件画像
※画像クリックで拡大表示
間取り
詳細画像
動画


物件概要

パントリーは毎日使う食品やストック品をまとめて収納でき、家事効率をアップ。2階のサンルームでは大物洗濯も天候を気にせず干せます。雨や雪の日も安心の土間収納は、自転車やベビーカーもそのまま置け、コート掛けで濡れた衣類の一時置き場にも便利。大容量シューズボックスには靴や帽子、手袋、季節用品まで収納可能で、外と内をつなぐ自由な空間です。
物件コード 00320-200216
物件名 花園3丁目 新築戸建
交通 駅:信越線 長岡駅から徒歩24分、バス:花園団地入口から徒歩1分
物件所在地 新潟県長岡市花園3丁目
物件種別 新築一戸建て
構造 木造合金メッキ鋼板葺 階建 地上2階建
建ぺい率/容積率 50%/100%
建物面積 計 92.74㎡ /28.05坪
土地面積 145.96㎡ /44.15坪
築年月 2025年11月(築6ヶ月)
入居(引き渡し)時期 相談
用途地域 第1種低層住居専用地域 地目 宅地
都市計画 市街化区域 学校区 豊田小学校(961m)・旭岡中学校(1,009m)
形状 - 道路 西側 市道 幅員16.0m
私道 - その他の制限 第1種高度地区 建築基準法第22条第1項の規定により指定する区域 まちなか居住区域
  • 花園3丁目 新築戸建
    有限会社 ブライトサクセス
  • この物件を問い合わせる/無料
  • TEL: 0258-35-2220

物件詳細情報

所在階/階数 - 号室 -
販売価格 28,800,000円 方位 北西
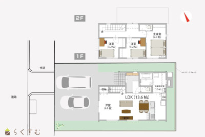
間取り 4LDK (洋室:7、6、5.2、5.2)
LDK13.6
専有面積 - バルコニー面積 -
その他面積 - 駐車場 -
管理費 - 修繕積立金 -
現況 指定なし
仲介手数料 1,016,400円
利用制限 -
設備 整形地、前面道路6m以上、日当り良好、閑静な住宅街、スーパー近く、長期優良住宅、瑕疵担保保険付き、全室フローリング、駐車場2台以上、複層ガラス、カウンターキッチン、上水道、下水道、電気、全居室収納あり、シューズBOX
取引態様 仲介
備考 引渡は2026年2月(モデルハウスとして使用します。ご契約は随時可能です)
※写真の家具はディスプレイ用です
取り扱い会社

有限会社 ブライトサクセス

新潟県長岡市新町1-1-2

情報登録日 2026/05/12 次回更新予定日 2026/05/30
取引条件有効期限 2026/10/14
  • 花園3丁目 新築戸建
    有限会社 ブライトサクセス
  • この物件を問い合わせる/無料
  • TEL: 0258-35-2220

この物件の地図・周辺情報・行政情報

この物件の周辺情報・行政情報を詳しく見る
【周辺情報】
物件の近くにあるコンビニや銀行・学校など、アイコン付のマップで詳しく表示できます!
【行政情報】
水道料や下水道料・ガス料金など、暮らしに関係のある情報を表示しています。
マルイ 長岡学校町店(スーパー)まで590m
原信 長岡花園店(スーパー)まで680m
長岡花園郵便局(郵便局)まで620m

※カメラのアイコンがある場合は、マウスをポイントするとその施設の画像がご覧いただけます。


担当取扱い店舗情報

取扱い店舗画像
有限会社 ブライトサクセス
TEL: 0258-35-2220
所在地: 新潟県長岡市新町1-1-2
交通: 長岡駅
営業時間: 午前10時00分~午後7時 /定休日:オンラインサービス:午前9時30分~午後9時
免許番号: 新潟県知事(1)第5629号 この会社の情報を詳しく見る
所属団体名: 公社 新潟県宅地建物取引協会 新潟支部
取引態様: 仲介
ホームページ: https://bright-success.net/