| 洗面室は3帖あり、洗う・干す・しまうが1室で完結。キッチンと洗面室が隣接しており、家事動線がスムーズ。パントリーは毎日使う食品やストック品をまとめて収納でき、家事効率をアップ。2階のサンルームでは大物洗濯も天候を気にせず干せます。雨や雪の日も安心の土間収納は、自転車やベビーカーもそのまま置け、コート掛けで濡れた衣類の一時置き場にも便利。大容量シューズボックスには靴や帽子、手袋、季節用品まで収納可能で、外と内をつなぐ自由な空間です。 | |||
| 物件コード | 00320-200216 | ||
|---|---|---|---|
| 物件名 | 花園3丁目 新築戸建 | ||
| 交通 | 駅:信越線 長岡駅から徒歩24分、バス:花園団地入口から徒歩1分 | ||
| 物件所在地 | 新潟県長岡市花園3丁目 | ||
| 物件種別 | 新築一戸建て | ||
| 構造 | 木造合金メッキ鋼板葺 | 階建 | 地上2階建 |
| 建ぺい率/容積率 | 50%/100% | ||
| 建物面積 | 計 92.74㎡ /28.05坪 | ||
| 土地面積 | 145.96㎡ /44.15坪 | ||
| 築年月 | 2025年11月(築3ヶ月) | ||
| 入居時期 | 相談 | ||
| 用途地域 | 第1種低層住居専用地域 | 地目 | 宅地 |
| 都市計画 | 市街化区域 | 学校区 | 豊田小学校(961m)・旭岡中学校(1,009m) |
| 形状 | - | 道路 | 西側 市道 幅員16.0m |
| 私道 | - | ||
| 所在階/階数 | - | 号室 | - |
|---|---|---|---|
| 販売価格 | 28,800,000円 | 方位 | 北西 |
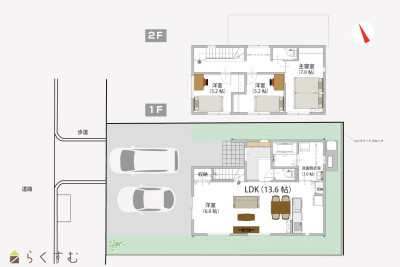
| 間取り |
4LDK (洋室:7、6、5.2、5.2) LDK13.6 |
||
| 専有面積 | - | バルコニー面積 | - |
| その他面積 | - | 駐車場 | - |
| 管理費 | - | 修繕積立金 | - |
| 現況 | 指定なし | ||
| 仲介手数料 | 1,016,400円 | ||
| 利用制限 | - | ||
| 設備 | 整形地、前面道路6m以上、日当り良好、閑静な住宅街、スーパー近く、長期優良住宅、瑕疵担保保険付き、全室フローリング、駐車場2台以上、複層ガラス、カウンターキッチン、上水道、下水道、電気、全居室収納あり、シューズBOX | ||
| 取引態様 | 仲介 | ||
| 備考 | 引渡は2026年2月(モデルハウスとして使用します。ご契約は随時可能です) | ||
| 情報登録日 | 2025/10/16 | 次回更新予定日 | 2026/02/18 |
| 取引条件有効期限 | 2026/10/14 | ||
|
|
|
|
| TEL: | 0258-35-2220 |
|---|---|
| 所在地: | 新潟県長岡市新町1-1-2 |
| 交通: | 長岡駅 |
| 営業時間: | 午前10時00分~午後7時 /定休日:オンラインサービス:午前9時30分~午後9時 |
| 免許番号: | 新潟県知事(1)第5629号 |
| 所属団体名: | 公社 新潟県宅地建物取引協会 新潟支部 |
| 取引態様: | 仲介 |