新潟県糸魚川市岩木220 中古一戸建て 5K 1,800,000円の物件情報

翡翠拾いやアクティビティな暮らしが楽しめる環境

物件名/所在地 詳細 価格
糸井川市岩木
新潟県糸魚川市岩木220
  • 土地面積
    :689.64㎡ /208.61坪
  • 建物面積
    :215.69㎡ /65.24坪
  • 間取り
    :5K
  • 築年月
    :1874年5月
1,800,000
  • 糸井川市岩木
    リアルエステイトZest 
  • この物件を問い合わせる/無料
  • TEL: 025-543-8358 025-543-8358

物件画像

外観
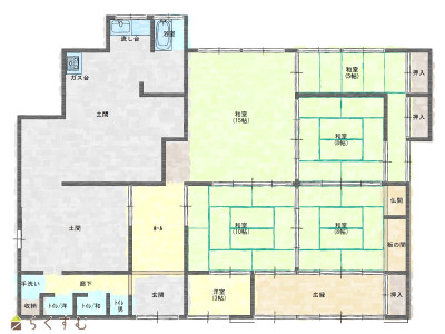
間取り
物件画像
※画像クリックで拡大表示
広々とした自然環境
物件画像
※画像クリックで拡大表示
古民家カフェなどにも面白い
詳細画像
物件画像
玄関
物件画像
廊下
物件画像
和室1
物件画像
古民家のケヤキなどの設えが圧巻です
物件画像
昔ながらの引き戸
物件画像
和室2
物件画像
和室2
物件画像
部屋から土間へ
物件画像
土間のある空間で色々楽しめます
物件画像
土間部
物件画像
土間部
物件画像
台所
物件画像
台所・カマド
物件画像
お風呂
物件画像
トイレ2
物件画像
洗面台
物件画像
物置・納屋もあります。
物件画像
前面道路は広く冬も安心でアクセスしやすい立地
物件画像
裏側


物件概要

古民家造りをリノベしながら事業用にもりようできそう。
物件コード 00267-200020
物件名 糸井川市岩木
交通 駅:日本海ひすいライン 糸魚川駅から徒歩60分、バス:頭山から徒歩12分
物件所在地 新潟県糸魚川市岩木220
物件種別 中古一戸建て
構造 木造 階建 地上1階建
建ぺい率/容積率 70%/200%
建物面積 1階 180.02㎡/ 2階 35.67㎡/ 計 215.69㎡ /65.24坪
土地面積 689.64㎡ /208.61坪
築年月 1874年5月(築152年)
入居(引き渡し)時期 相談
用途地域 無指定 地目 宅地
都市計画 市街化区域 学校区 糸魚川小学校(2,671m)・糸魚川中学校(2,092m)
形状 - 道路 糸魚川市道 岩木下線
私道 - その他の制限 -
  • 糸井川市岩木
    リアルエステイトZest 
  • この物件を問い合わせる/無料
  • TEL: 025-543-8358 025-543-8358

物件詳細情報

所在階/階数 - 号室 -
販売価格 1,800,000円 方位
間取り 5K (和室:15畳、10畳、8畳、8畳、5畳)
専有面積 - バルコニー面積 -
その他面積 - 駐車場 -
管理費 - 修繕積立金 -
現況 空家
仲介手数料 330,000円
利用制限 -
設備 日当り良好、修繕記録あり、トイレ2か所以上、LPG、上水道、別荘、田舎暮らし、事業向け
取引態様 専属専任
備考 明治初期の建築と思われます。
畑、家庭菜園(農地有り)
価格応相談!
取り扱い会社

リアルエステイトZest 

新潟県上越市中央3-8-6

情報登録日 2026/04/16 次回更新予定日 2026/05/21
取引条件有効期限 2026/07/06
  • 糸井川市岩木
    リアルエステイトZest 
  • この物件を問い合わせる/無料
  • TEL: 025-543-8358 025-543-8358

この物件の地図・周辺情報・行政情報

この物件の周辺情報・行政情報を詳しく見る
【周辺情報】
物件の近くにあるコンビニや銀行・学校など、アイコン付のマップで詳しく表示できます!
【行政情報】
水道料や下水道料・ガス料金など、暮らしに関係のある情報を表示しています。

担当取扱い店舗情報

取扱い店舗画像
リアルエステイトZest 
TEL: 025-543-8358
所在地: 新潟県上越市中央3-8-6
交通: えちごトキめき鉄道 直江津駅から徒歩15分
営業時間: AM:9:00-PM:17:00/定休日:不定休
免許番号: 新潟県知事(4)第4782
所属団体名: 公社 新潟県宅地建物取引協会 上越支部
取引態様: 専属専任
ホームページ: https://j-zest.com/