| 古民家造りをリノベしながら事業用にもりようできそう。 | |||
| 物件コード | 00267-200020 | ||
|---|---|---|---|
| 物件名 | 糸井川市岩木 | ||
| 交通 | 駅:日本海ひすいライン 糸魚川駅から徒歩60分、バス:頭山から徒歩12分 | ||
| 物件所在地 | 新潟県糸魚川市岩木220 | ||
| 物件種別 | 中古一戸建て | ||
| 構造 | 木造 | 階建 | 地上1階建 |
| 建ぺい率/容積率 | 70%/200% | ||
| 建物面積 | 1階 180.02㎡/ 2階 35.67㎡/ 計 215.69㎡ /65.24坪 | ||
| 土地面積 | 689.64㎡ /208.61坪 | ||
| 築年月 | 1874年5月(築152年) | ||
| 入居時期 | 相談 | ||
| 用途地域 | 無指定 | 地目 | 宅地 |
| 都市計画 | 市街化区域 | 学校区 | 糸魚川小学校(2,671m)・糸魚川中学校(2,092m) |
| 形状 | - | 道路 | 糸魚川市道 岩木下線 |
| 私道 | - | ||
| 所在階/階数 | - | 号室 | - |
|---|---|---|---|
| 販売価格 | 1,800,000円 | 方位 | 東 |
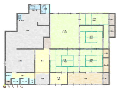
| 間取り | 5K (和室:15畳、10畳、8畳、8畳、5畳) | ||
| 専有面積 | - | バルコニー面積 | - |
| その他面積 | - | 駐車場 | - |
| 管理費 | - | 修繕積立金 | - |
| 現況 | 空家 | ||
| 仲介手数料 | 330,000円 | ||
| 利用制限 | - | ||
| 設備 | 日当り良好、修繕記録あり、トイレ2か所以上、LPG、上水道、別荘、田舎暮らし、事業向け | ||
| 取引態様 | 専属専任 | ||
| 備考 | 明治初期の建築と思われます。 畑、家庭菜園(農地有り) 価格応相談! |
||
| 情報登録日 | 2026/04/16 | 次回更新予定日 | 2026/05/21 |
| 取引条件有効期限 | 2026/07/06 | ||
|
|
|
|
| TEL: | 025-543-8358 |
|---|---|
| 所在地: | 新潟県上越市中央3-8-6 |
| 交通: | えちごトキめき鉄道 直江津駅から徒歩15分 |
| 営業時間: | AM:9:00-PM:17:00/定休日:不定休 |
| 免許番号: | 新潟県知事(4)第4782 |
| 所属団体名: | 公社 新潟県宅地建物取引協会 上越支部 |
| 取引態様: | 専属専任 |