新潟県上越市西城町3丁目11-17 中古一戸建て 3DK 12,800,000円の物件情報

由緒ある旧邸も建ち並ぶ、青田川沿いのリフォーム戸建です! 鉄骨造! 日当たりも良好!

物件名/所在地 詳細 価格
上越市西城町3丁目 戸建
新潟県上越市西城町3丁目11-17
  • 土地面積
    :165㎡ /49.91坪
  • 建物面積
    :154.81㎡ /46.83坪
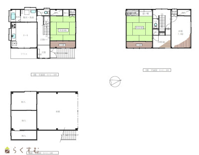
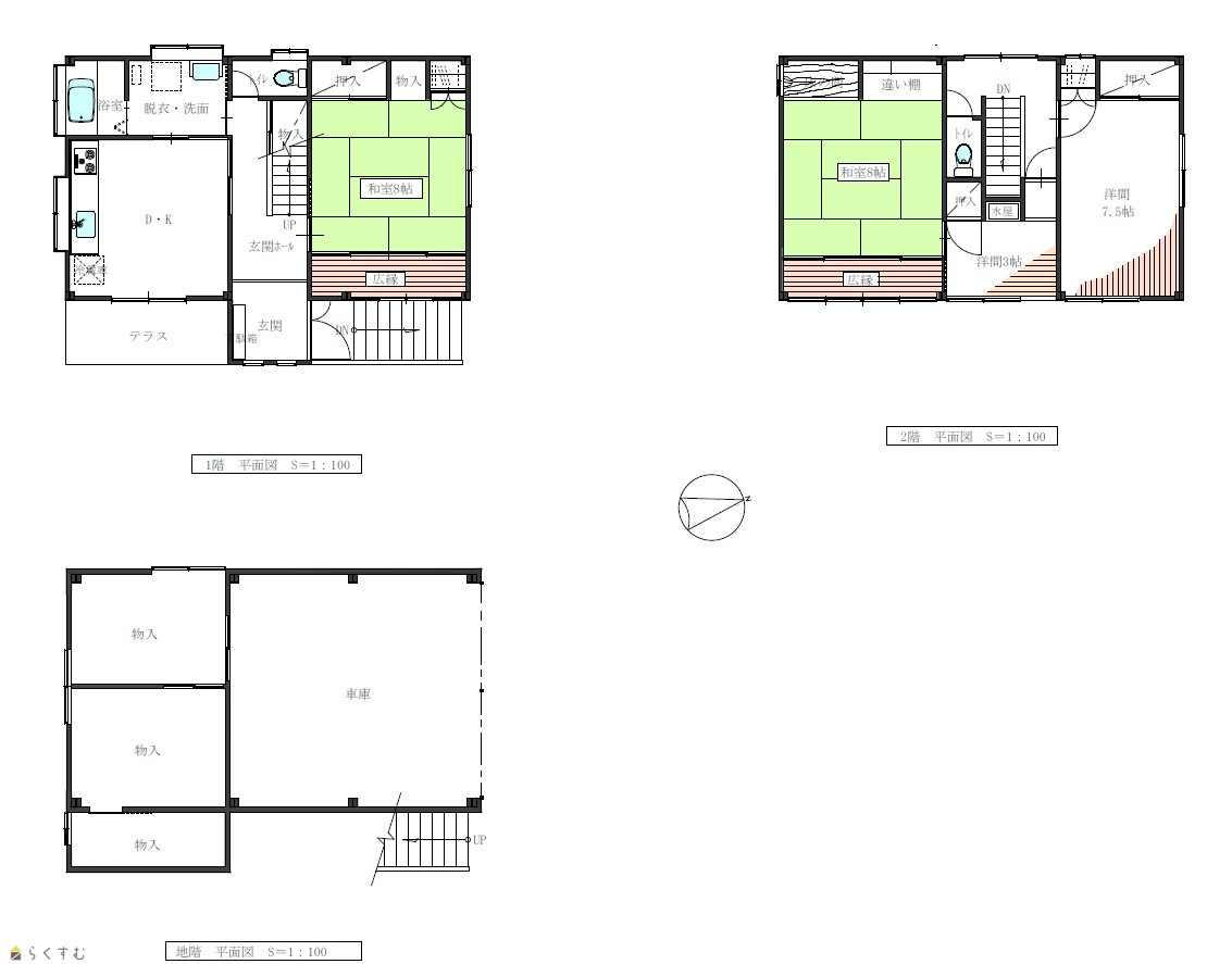
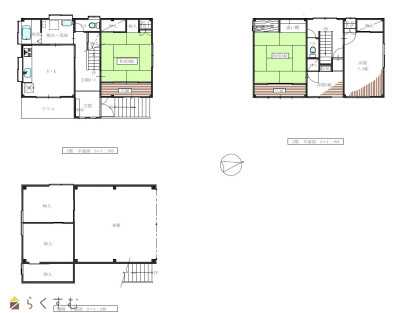
  • 間取り
    :3DK
  • 築年月
    :1980年10月
12,800,000
  • 上越市西城町3丁目 戸建
    越乃エステート株式会社
  • この物件を問い合わせる/無料
  • TEL: 025-520-6623 025-520-6623

物件画像

外観
間取り
物件画像
※画像クリックで拡大表示
外観
物件画像
※画像クリックで拡大表示
間取り
詳細画像
物件画像
外観
物件画像
ダイニングキッチン
物件画像
バスルーム
物件画像
洗面所
物件画像
1Fトイレ
物件画像
2Fトイレ
物件画像
和室
物件画像
洋室
物件画像
和室
物件画像
2F DEN(小部屋3帖)
物件画像
玄関
物件画像
車庫正面
物件画像
車庫内
物件画像
TVモニター付インターホン
物件画像
屋根
物件画像
2階から南側への眺望
物件画像
印刷用地図


物件概要

近隣には保育園・幼稚園・小学校が徒歩圏! ・高田駅へも徒歩11分
物件コード 00250-200073
物件名 上越市西城町3丁目 戸建
交通 駅:妙高はねうまライン 高田駅から徒歩11分、バス:西城町十字路から徒歩4分
物件所在地 新潟県上越市西城町3丁目11-17
物件種別 中古一戸建て
構造 鉄骨 階建 地上3階建
建ぺい率/容積率 50%/80%
建物面積 1階 52.37㎡/ 2階 52.39㎡/ 3階 50.05㎡/ 計 154.81㎡ /46.83坪
土地面積 165㎡ /49.91坪
築年月 1980年10月(築45年)
入居(引き渡し)時期 随時入居(引き渡し)可
用途地域 第1種低層住居専用地域 地目 宅地  (現状:宅地)
都市計画 市街化区域 学校区 大町小学校(260m)
形状 間口 9.2m × 奥行 18m 道路 上越市道 幅員6.4m 除雪道路
私道 - その他の制限 準防火地域
  • 上越市西城町3丁目 戸建
    越乃エステート株式会社
  • この物件を問い合わせる/無料
  • TEL: 025-520-6623 025-520-6623

物件詳細情報

所在階/階数 - 号室 -
販売価格 12,800,000円 方位
間取り 3DK (和室:8畳、8畳) (洋室:7.5)
DK8
2FにDEN(小部屋3帖)有り。
専有面積 - バルコニー面積 -
その他面積 - 駐車場 -
管理費 - 修繕積立金 -
現況 空家
仲介手数料 なし
固定資産税 64,118円
利用制限 -
設備 日当り良好、閑静な住宅街、スーパー近く、新築時図面あり、建物確認・完了検査済証あり、駐車3台以上可能、南向き、TVインターホン、システムキッチン、3口コンロ、追いだき機能付き、バス1坪以上、温水洗浄便座、トイレ2か所以上、シャワー付き洗面台、エアコンあり、都市ガス、上水道、下水道、内装リフォーム済み
取引態様 売主
備考 ・住宅の2階からは妙高山や南葉山も眺望できます。・駐車は車庫2台分(高さ1.6m)及び車庫前に1台分。 ・リフォーム内容「・キッチン新設・トイレ2カ所交換・洗面台新設・内装(床壁天井の一部張替)・照明器具一部新設・TVモニター付きインターホン新設・エアコン1台新設・畳表替え・車庫内結露防止塗装・屋根笠木板金工事」。 消雪用井戸ポンプ有(車庫前&通路用)。
取り扱い会社

越乃エステート株式会社

新潟県上越市春日野1丁目7番4号オフィスYAMADA-B号

情報登録日 2025/12/12 次回更新予定日 2026/01/03
取引条件有効期限 2026/03/12
  • 上越市西城町3丁目 戸建
    越乃エステート株式会社
  • この物件を問い合わせる/無料
  • TEL: 025-520-6623 025-520-6623

この物件の地図・周辺情報・行政情報

この物件の周辺情報・行政情報を詳しく見る
【周辺情報】
物件の近くにあるコンビニや銀行・学校など、アイコン付のマップで詳しく表示できます!
【行政情報】
水道料や下水道料・ガス料金など、暮らしに関係のある情報を表示しています。
ナルス 北城店まで550m
(医)知命堂病院まで550m
藤林内科医院まで430m
第四北越銀行 高田営業部まで420m
(株)八十二銀行 ローンプラザ上越まで430m
高田郵便局まで480m
もみじ幼稚園まで220m
カトリック天使幼稚園まで140m
附属小学校まで350m
上越市立高田幼稚園まで650m
セブンイレブン上越北城店まで700m

※カメラのアイコンがある場合は、マウスをポイントするとその施設の画像がご覧いただけます。


担当取扱い店舗情報

取扱い店舗画像
越乃エステート株式会社
TEL: 025-520-6623
所在地: 新潟県上越市春日野1丁目7番4号オフィスYAMADA-B号
交通: 春日山駅より徒歩8分
営業時間: 9:00~17:00/定休日:水・日
免許番号: 新潟県知事(1)第5592号
所属団体名: 公益社団法人 全日本不動産協会 新潟県本部
取引態様: 売主
ホームページ: https://koshino-e.com