| 近隣には保育園・幼稚園・小学校が徒歩圏! ・高田駅へも徒歩11分 | |||
| 物件コード | 00250-200073 | ||
|---|---|---|---|
| 物件名 | 上越市西城町3丁目 戸建 | ||
| 交通 | 駅:妙高はねうまライン 高田駅から徒歩11分、バス:西城町十字路から徒歩4分 | ||
| 物件所在地 | 新潟県上越市西城町3丁目11-17 | ||
| 物件種別 | 中古一戸建て | ||
| 構造 | 鉄骨 | 階建 | 地上3階建 |
| 建ぺい率/容積率 | 50%/80% | ||
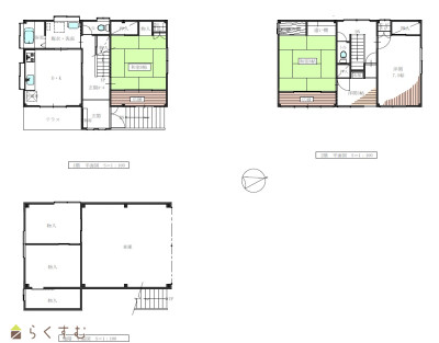
| 建物面積 | 1階 52.37㎡/ 2階 52.39㎡/ 3階 50.05㎡/ 計 154.81㎡ /46.83坪 | ||
| 土地面積 | 165㎡ /49.91坪 | ||
| 築年月 | 1980年10月(築45年) | ||
| 入居時期 | 随時入居(引き渡し)可 | ||
| 用途地域 | 第1種低層住居専用地域 | 地目 | 宅地 (現状:宅地) |
| 都市計画 | 市街化区域 | 学校区 | 大町小学校(260m) |
| 形状 | 間口 9.2m × 奥行 18m | 道路 | 上越市道 幅員6.4m 除雪道路 |
| 私道 | - | ||
| 所在階/階数 | - | 号室 | - |
|---|---|---|---|
| 販売価格 | 12,800,000円 | 方位 | 南 |
| 間取り |
3DK (和室:8畳、8畳) (洋室:7.5) DK8 2FにDEN(小部屋3帖)有り。 |
||
| 専有面積 | - | バルコニー面積 | - |
| その他面積 | - | 駐車場 | - |
| 管理費 | - | 修繕積立金 | - |
| 現況 | 空家 | ||
| 仲介手数料 | なし | ||
| 利用制限 | - | ||
| 設備 | 日当り良好、閑静な住宅街、スーパー近く、新築時図面あり、建物確認・完了検査済証あり、駐車3台以上可能、南向き、TVインターホン、システムキッチン、3口コンロ、追いだき機能付き、バス1坪以上、温水洗浄便座、トイレ2か所以上、シャワー付き洗面台、エアコンあり、都市ガス、上水道、下水道、内装リフォーム済み | ||
| 取引態様 | 売主 | ||
| 備考 | ・住宅の2階からは妙高山や南葉山も眺望できます。・駐車は車庫2台分(高さ1.6m)及び車庫前に1台分。 ・リフォーム内容「・キッチン新設・トイレ2カ所交換・洗面台新設・内装(床壁天井の一部張替)・照明器具一部新設・TVモニター付きインターホン新設・エアコン1台新設・畳表替え・車庫内結露防止塗装・屋根笠木板金工事」。 消雪用井戸ポンプ有(車庫前&通路用)。 | ||
| 情報登録日 | 2025/12/12 | 次回更新予定日 | 2026/01/05 |
| 取引条件有効期限 | 2026/03/12 | ||
|
|
|
|
| TEL: | 025-520-6623 |
|---|---|
| 所在地: | 新潟県上越市春日野1丁目7番4号オフィスYAMADA-B号 |
| 交通: | 春日山駅より徒歩8分 |
| 営業時間: | 9:00~17:00/定休日:水・日 |
| 免許番号: | 新潟県知事(1)第5592号 |
| 所属団体名: | 公益社団法人 全日本不動産協会 新潟県本部 |
| 取引態様: | 売主 |