新潟県上越市幸町6-28 中古一戸建て 5DK 6,800,000円の物件情報

インナーガレージ、屋根ステンレス、建物程度良好(^^♪

物件名/所在地 詳細 価格
幸町中古住宅
新潟県上越市幸町6-28
  • 土地面積
    :229.73㎡ /69.49坪
  • 建物面積
    :150.7㎡ /45.58坪
  • 間取り
    :5DK
  • 築年月
    :1986年8月
6,800,000
  • 幸町中古住宅
    日成商事株式会社
  • この物件を問い合わせる/無料
  • TEL: 025-524-6441 025-524-6441

物件画像

外観
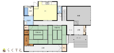
間取り
物件画像
※画像クリックで拡大表示
外観
物件画像
※画像クリックで拡大表示
間取り
詳細画像
物件画像
ダイニング
物件画像
和室
物件画像
玄関
物件画像
洋室
物件画像
バスルーム
物件画像
洗面所
物件画像
トイレ
物件画像
廊下
物件画像
和室
物件画像
2F間取り


物件概要

物件コード 00238-200042
物件名 幸町中古住宅
交通 駅:妙高はねうまライン 高田駅から徒歩19分、バス:城北中学校前から徒歩6分
物件所在地 新潟県上越市幸町6-28
物件種別 中古一戸建て
構造 木造 階建 地上2階建
建ぺい率/容積率 60%/160%
建物面積 1階 94.39㎡/ 2階 56.31㎡/ 計 150.7㎡ /45.58坪
土地面積 229.73㎡ /69.49坪
築年月 1986年8月(築39年)
入居(引き渡し)時期 随時入居(引き渡し)可
用途地域 第1種低層住居専用地域 地目 宅地
都市計画 市街化区域 学校区 東本町小学校(467m)・城北中学校(172m)
形状 - 道路 東側約4.0道路
私道 - その他の制限 -
  • 幸町中古住宅
    日成商事株式会社
  • この物件を問い合わせる/無料
  • TEL: 025-524-6441 025-524-6441

物件詳細情報

所在階/階数 - 号室 -
販売価格 6,800,000円 方位
間取り 5DK
専有面積 - バルコニー面積 -
その他面積 - 駐車場 -
管理費 - 修繕積立金 -
現況 空家
仲介手数料 330,000円
利用制限 -
設備 日当り良好、駐車3台以上可能、温水洗浄便座、エアコンあり、都市ガス、上水道、下水道、田舎暮らし
取引態様 専属専任
備考 -
取り扱い会社

日成商事株式会社

新潟県上越市木田1-8-11

情報登録日 2025/10/14 次回更新予定日 2026/05/21
取引条件有効期限 2026/01/22
  • 幸町中古住宅
    日成商事株式会社
  • この物件を問い合わせる/無料
  • TEL: 025-524-6441 025-524-6441

この物件の地図・周辺情報・行政情報

この物件の周辺情報・行政情報を詳しく見る
【周辺情報】
物件の近くにあるコンビニや銀行・学校など、アイコン付のマップで詳しく表示できます!
【行政情報】
水道料や下水道料・ガス料金など、暮らしに関係のある情報を表示しています。

担当取扱い店舗情報

取扱い店舗画像
日成商事株式会社
TEL: 025-524-6441
所在地: 新潟県上越市木田1-8-11
交通: 妙高はねうまライン春日山駅徒歩10分
営業時間: 平日9:00~18:30 土9:00~18:00/定休日:日曜、祝日
免許番号: 新潟県知事(15)第861号
所属団体名: 公社 新潟県宅地建物取引協会 上越支部
取引態様: 専属専任
ホームページ: http://www.nissey.jp/