| 物件コード | 00238-200042 | ||
|---|---|---|---|
| 物件名 | 幸町中古住宅 | ||
| 交通 | 駅:妙高はねうまライン 高田駅から徒歩19分、バス:城北中学校前から徒歩6分 | ||
| 物件所在地 | 新潟県上越市幸町6-28 | ||
| 物件種別 | 中古一戸建て | ||
| 構造 | 木造 | 階建 | 地上2階建 |
| 建ぺい率/容積率 | 60%/160% | ||
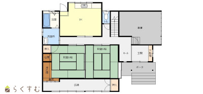
| 建物面積 | 1階 94.39㎡/ 2階 56.31㎡/ 計 150.7㎡ /45.58坪 | ||
| 土地面積 | 229.73㎡ /69.49坪 | ||
| 築年月 | 1986年8月(築39年) | ||
| 入居時期 | 随時入居(引き渡し)可 | ||
| 用途地域 | 第1種低層住居専用地域 | 地目 | 宅地 |
| 都市計画 | 市街化区域 | 学校区 | 東本町小学校(467m)・城北中学校(172m) |
| 形状 | - | 道路 | 東側約4.0道路 |
| 私道 | - | ||
| 所在階/階数 | - | 号室 | - |
|---|---|---|---|
| 販売価格 | 6,800,000円 | 方位 | 東 |
| 間取り | 5DK | ||
| 専有面積 | - | バルコニー面積 | - |
| その他面積 | - | 駐車場 | - |
| 管理費 | - | 修繕積立金 | - |
| 現況 | 空家 | ||
| 仲介手数料 | 330,000円 | ||
| 利用制限 | - | ||
| 設備 | 日当り良好、駐車3台以上可能、温水洗浄便座、エアコンあり、都市ガス、上水道、下水道、田舎暮らし | ||
| 取引態様 | 専属専任 | ||
| 備考 | - | ||
| 情報登録日 | 2025/10/14 | 次回更新予定日 | 2026/05/21 |
| 取引条件有効期限 | 2026/01/22 | ||
|
|
|
|
| TEL: | 025-524-6441 |
|---|---|
| 所在地: | 新潟県上越市木田1-8-11 |
| 交通: | 妙高はねうまライン春日山駅徒歩10分 |
| 営業時間: | 平日9:00~18:30 土9:00~18:00/定休日:日曜、祝日 |
| 免許番号: | 新潟県知事(15)第861号 |
| 所属団体名: | 公社 新潟県宅地建物取引協会 上越支部 |
| 取引態様: | 専属専任 |