新潟県上越市新光町2丁目189番5 新築一戸建て 3LDK 33,400,000円の物件情報

■水廻りを直線化したスマート動線で、毎日の家事が驚くほどスムーズ。 ■LDKも居室も、欲しかった広さをしっかり確保。 ■6帖の子供部屋、8帖+3帖WICの主寝室で、将来まで安心の間取り。

物件名/所在地 詳細 価格
上越市新光町2丁目 建売住宅【区画2】
新潟県上越市新光町2丁目189番5
  • 土地面積
    :203.94㎡ /61.69坪
  • 建物面積
    :101.01㎡ /30.55坪
  • 間取り
    :3LDK
  • 築年月
    :2026年4月
33,400,000
  • 上越市新光町2丁目 建売住宅【区画2】
    ハーバーエステート株式会社 
  • この物件を問い合わせる/無料
  • TEL: 0120-228-815 0120-228-815

物件画像

外観
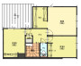
間取り
物件画像
※画像クリックで拡大表示
外観パース
物件画像
※画像クリックで拡大表示
間取り
詳細画像
物件画像
間取り
物件画像
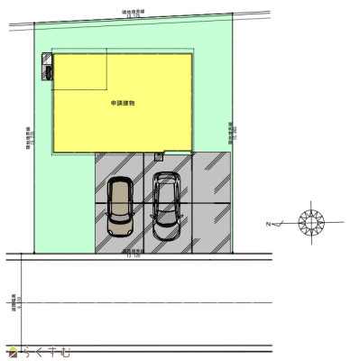
配置図
物件画像
現地土地写真
物件画像
現地土地写真
物件画像
現地土地写真
物件画像
現地土地写真
物件画像
現地土地写真
物件画像
現地土地写真
物件画像
現地土地写真
物件画像
現地土地写真
物件画像
現地土地写真
物件画像
現地土地写真
物件画像
区画図


物件概要

物件コード 00154-200758
物件名 上越市新光町2丁目 建売住宅【区画2】
交通 駅:妙高はねうまライン 春日山駅から徒歩13分、バス:新光町から徒歩4分
物件所在地 新潟県上越市新光町2丁目189番5
物件種別 新築一戸建て
構造 木造 階建 地上2階建
建ぺい率/容積率 60%/200%
建物面積 1階 52.99㎡/ 2階 48.02㎡/ 計 101.01㎡ /30.55坪
土地面積 203.94㎡ /61.69坪
築年月 2026年4月(築1ヶ月)
入居(引き渡し)時期 相談
用途地域 第1種中高層住居専用地域 地目 宅地
都市計画 市街化区域 学校区 高志小学校(1,900m)・春日中学校(750m)
形状 間口 13.11m × 奥行 15.23m 道路 公道 西 幅員6.5m
私道 - その他の制限 上越市景観条例
  • 上越市新光町2丁目 建売住宅【区画2】
    ハーバーエステート株式会社 
  • この物件を問い合わせる/無料
  • TEL: 0120-228-815 0120-228-815

物件詳細情報

所在階/階数 - 号室 -
販売価格 33,400,000円 方位 -
間取り 3LDK
専有面積 - バルコニー面積 -
その他面積 - 駐車場 -
管理費 - 修繕積立金 -
現況 空家
仲介手数料 1,168,200円
利用制限 -
設備 前面道路6m以上、閑静な住宅街、スーパー近く、BELS/省エネ基準適合認定建物、LDK15畳以上、駐車場3台以上、複層ガラス、IHクッキングヒーター、バス1坪以上、温水洗浄便座、シャワー付き洗面台、オール電化、上水道、下水道、電気、ウォークインクローゼット
取引態様 一般
備考 ・建築確認番号:NK第25本01837号
・仲介手数料が発生します
・間取図と現況に相違がある場合は、現況を優先とします。
取り扱い会社

ハーバーエステート株式会社 

新潟県長岡市神田町2-1-2

情報登録日 2026/05/01 次回更新予定日 2026/05/21
取引条件有効期限 2026/06/30
  • 上越市新光町2丁目 建売住宅【区画2】
    ハーバーエステート株式会社 
  • この物件を問い合わせる/無料
  • TEL: 0120-228-815 0120-228-815

この物件の地図・周辺情報・行政情報

この物件の周辺情報・行政情報を詳しく見る
【周辺情報】
物件の近くにあるコンビニや銀行・学校など、アイコン付のマップで詳しく表示できます!
【行政情報】
水道料や下水道料・ガス料金など、暮らしに関係のある情報を表示しています。

担当取扱い店舗情報

取扱い店舗画像
ハーバーエステート株式会社 
TEL: 0120-228-815
所在地: 新潟県長岡市神田町2-1-2
交通: 長岡駅
営業時間: 10:00~18:00/定休日:無休
免許番号: 国土交通大臣(2)第9588号
所属団体名: 全日本不動産協会 新潟県本部
取引態様: 一般
ホームページ: http://www.niigata-tochi.com/