| 物件コード | 00154-200758 | ||
|---|---|---|---|
| 物件名 | 上越市新光町2丁目 建売住宅【区画2】 | ||
| 交通 | 駅:妙高はねうまライン 春日山駅から徒歩13分、バス:新光町から徒歩4分 | ||
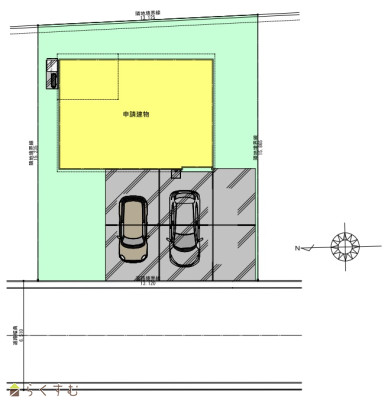
| 物件所在地 | 新潟県上越市新光町2丁目189番5 | ||
| 物件種別 | 新築一戸建て | ||
| 構造 | 木造 | 階建 | 地上2階建 |
| 建ぺい率/容積率 | 60%/200% | ||
| 建物面積 | 1階 52.99㎡/ 2階 48.02㎡/ 計 101.01㎡ /30.55坪 | ||
| 土地面積 | 203.94㎡ /61.69坪 | ||
| 築年月 | 2026年4月(築1ヶ月) | ||
| 入居時期 | 相談 | ||
| 用途地域 | 第1種中高層住居専用地域 | 地目 | 宅地 |
| 都市計画 | 市街化区域 | 学校区 | 高志小学校(1,900m)・春日中学校(750m) |
| 形状 | 間口 13.11m × 奥行 15.23m | 道路 | 公道 西 幅員6.5m |
| 私道 | - | ||
| 所在階/階数 | - | 号室 | - |
|---|---|---|---|
| 販売価格 | 33,400,000円 | 方位 | - |
| 間取り | 3LDK | ||
| 専有面積 | - | バルコニー面積 | - |
| その他面積 | - | 駐車場 | - |
| 管理費 | - | 修繕積立金 | - |
| 現況 | 空家 | ||
| 仲介手数料 | 1,168,200円 | ||
| 利用制限 | - | ||
| 設備 | 前面道路6m以上、閑静な住宅街、スーパー近く、BELS/省エネ基準適合認定建物、LDK15畳以上、駐車場3台以上、複層ガラス、IHクッキングヒーター、バス1坪以上、温水洗浄便座、シャワー付き洗面台、オール電化、上水道、下水道、電気、ウォークインクローゼット | ||
| 取引態様 | 一般 | ||
| 備考 | ・建築確認番号:NK第25本01837号 ・仲介手数料が発生します ・間取図と現況に相違がある場合は、現況を優先とします。 |
||
| 情報登録日 | 2026/05/01 | 次回更新予定日 | 2026/05/21 |
| 取引条件有効期限 | 2026/06/30 | ||
|
|
|
|
| TEL: | 0120-228-815 |
|---|---|
| 所在地: | 新潟県長岡市神田町2-1-2 |
| 交通: | 長岡駅 |
| 営業時間: | 10:00~18:00/定休日:無休 |
| 免許番号: | 国土交通大臣(2)第9588号 |
| 所属団体名: | 全日本不動産協会 新潟県本部 |
| 取引態様: | 一般 |