新潟県三条市荒町1丁目9-12 中古一戸建て 7DK 2,500,000円の物件情報

車庫付き(軽自動車専用)!上下水道!都市ガス引込有!

物件名/所在地 詳細 価格
◆中古戸建◆三条市荒町一丁目
新潟県三条市荒町1丁目9-12
  • 土地面積
    :199.89㎡ /60.46坪
  • 建物面積
    :152.5㎡ /46.13坪
  • 間取り
    :7DK
  • 築年月
    :1967年8月
2,500,000
  • ◆中古戸建◆三条市荒町一丁目
    株式会社 ユタカ不動産
  • この物件を問い合わせる/無料
  • TEL: 0256-35-5825 0256-35-5825

物件画像

外観
間取り
物件画像
※画像クリックで拡大表示
外観
物件画像
※画像クリックで拡大表示
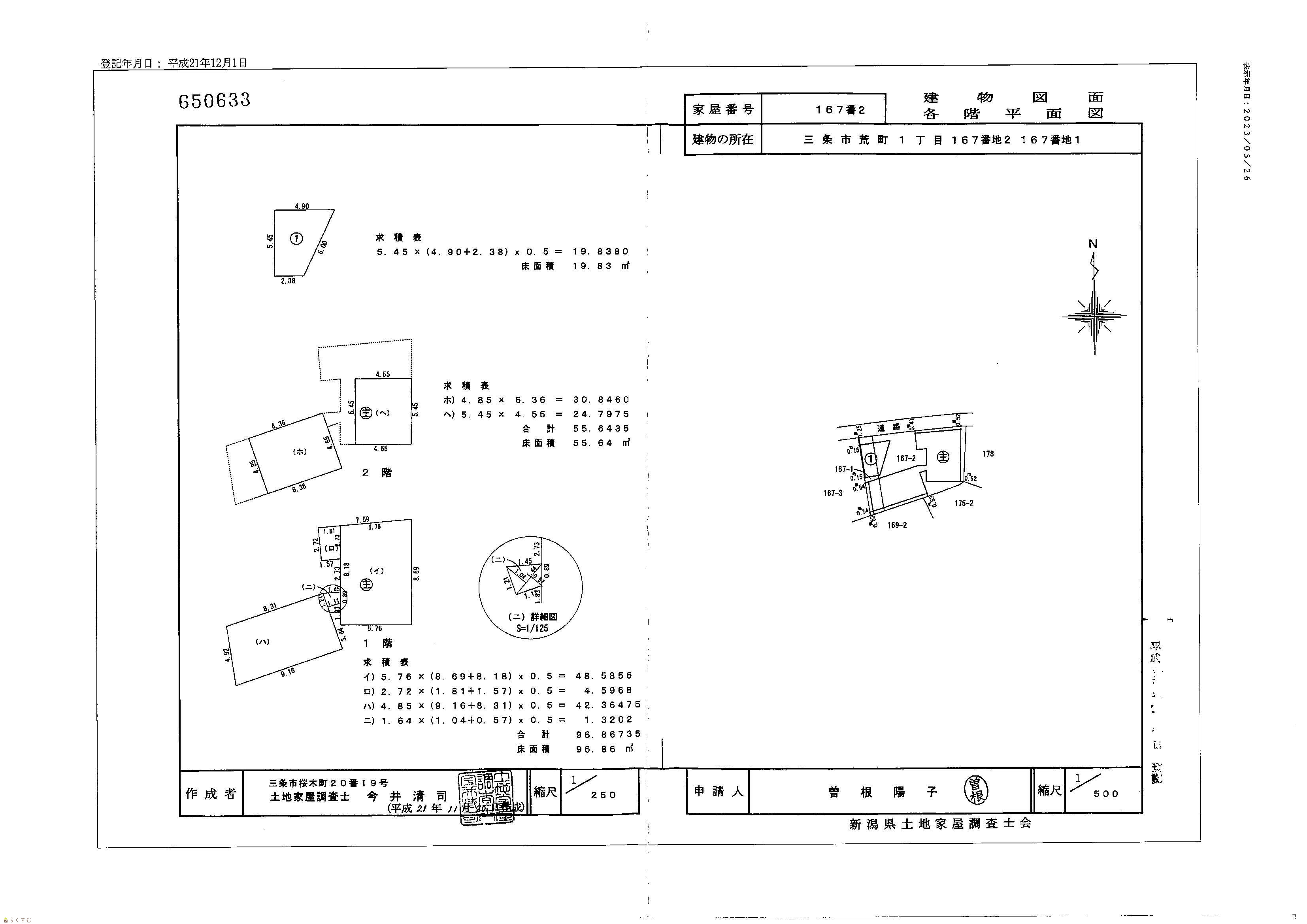
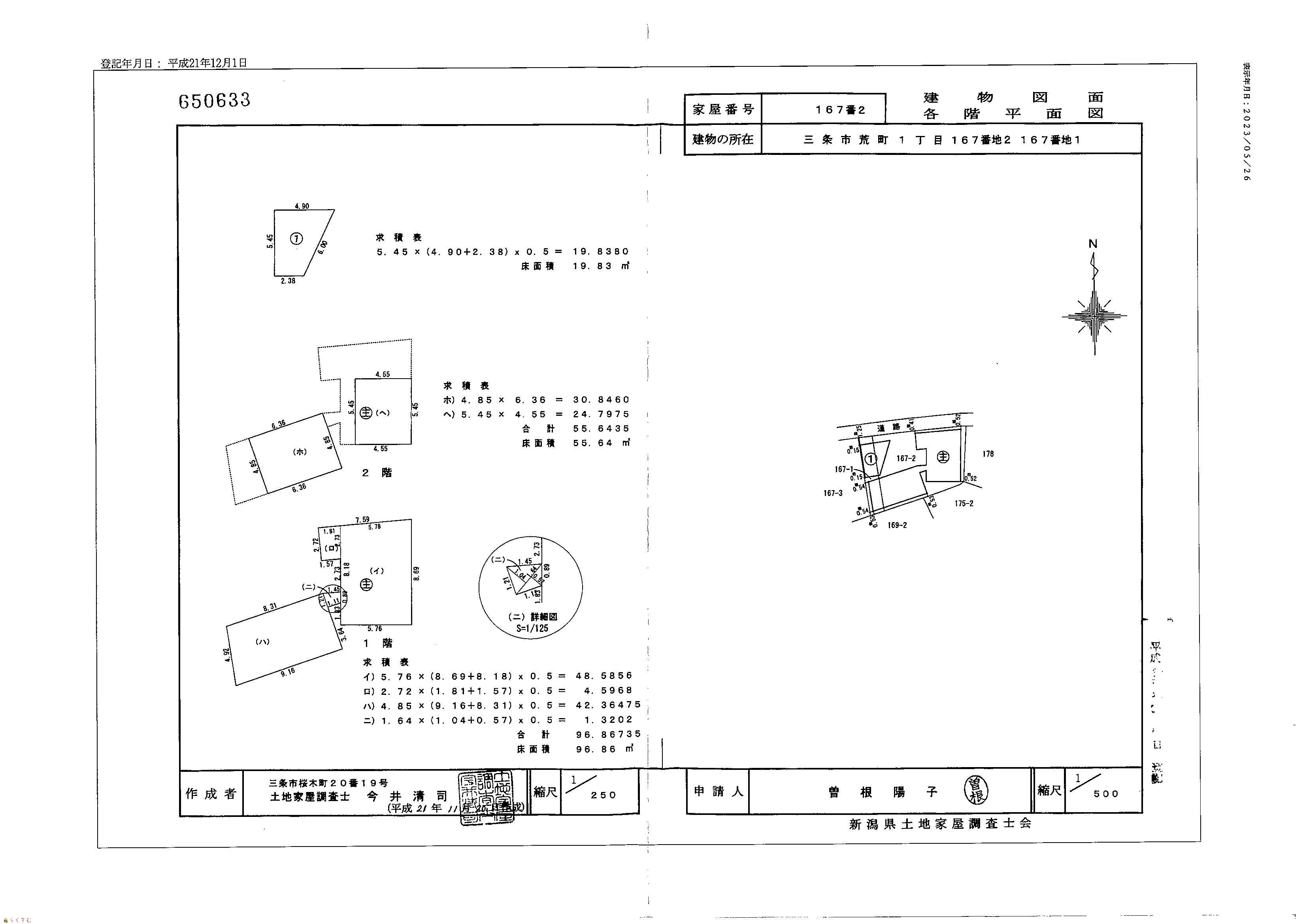
建物図面
詳細画像
物件画像
車庫
物件画像
物件画像
前面道路
物件画像
前面道路
物件画像
車庫内
物件画像
玄関
物件画像
台所
物件画像
浴室
物件画像
トイレ
物件画像
2階和室
物件画像
2階洋室
物件画像
1階リビング


物件概要

2026年3月18日300万円→250万円に
物件コード 00052-200199
物件名 ◆中古戸建◆三条市荒町一丁目
交通 駅:弥彦線 北三条駅から徒歩11分、バス:荒町1丁目から徒歩1分
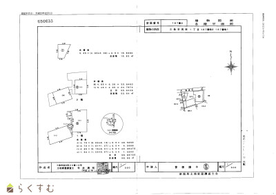
物件所在地 新潟県三条市荒町1丁目9-12
物件種別 中古一戸建て
構造 木造 階建 地上2階建
建ぺい率/容積率 60%/200%
建物面積 1階 96.86㎡/ 2階 55.64㎡/ 計 152.5㎡ /46.13坪
土地面積 199.89㎡ /60.46坪
築年月 1967年8月(築58年)
入居(引き渡し)時期 相談
用途地域 第1種住居地域 地目 宅地  (現状:宅地)
都市計画 非線引き都市計画区域 学校区 裏館小学校(1,087m)・第三中学校(720m)
形状 - 道路 北側:三条市道荒町中通り1号線 幅員2.2m
私道 - その他の制限 再建築の場合、道路中心線より2m以上のセットバックが必要です。
  • ◆中古戸建◆三条市荒町一丁目
    株式会社 ユタカ不動産
  • この物件を問い合わせる/無料
  • TEL: 0256-35-5825 0256-35-5825

物件詳細情報

所在階/階数 - 号室 -
販売価格 2,500,000円 方位 -
間取り 7DK
専有面積 - バルコニー面積 -
その他面積 19.83㎡ /5.99坪  車庫 駐車場 -
管理費 - 修繕積立金 -
現況 空家
仲介手数料 330,000円
利用制限 -
設備 閑静な住宅街、都市ガス、上水道、下水道
取引態様 専任
備考 準防火地域・特別工業地域・居住誘導区域・都市機能誘導区域
取り扱い会社

株式会社 ユタカ不動産

新潟県三条市旭町1丁目1-19-3ユタカビル

情報登録日 2026/03/18 次回更新予定日 2026/05/21
取引条件有効期限 2024/12/01
  • ◆中古戸建◆三条市荒町一丁目
    株式会社 ユタカ不動産
  • この物件を問い合わせる/無料
  • TEL: 0256-35-5825 0256-35-5825

この物件の地図・周辺情報・行政情報

この物件の周辺情報・行政情報を詳しく見る
【周辺情報】
物件の近くにあるコンビニや銀行・学校など、アイコン付のマップで詳しく表示できます!
【行政情報】
水道料や下水道料・ガス料金など、暮らしに関係のある情報を表示しています。

担当取扱い店舗情報

取扱い店舗画像
株式会社 ユタカ不動産
TEL: 0256-35-5825
所在地: 新潟県三条市旭町1丁目1-19-3ユタカビル
交通: 東三条駅
営業時間: 9:00~18:00/定休日:火曜・祭日
免許番号: 新潟見知事(9)第3203号
所属団体名: 新潟県宅地建物取引協会 三条支部
取引態様: 専任
ホームページ: http://www.yutakafudousan.com