| 2026年3月18日300万円→250万円に | |||
| 物件コード | 00052-200199 | ||
|---|---|---|---|
| 物件名 | ◆中古戸建◆三条市荒町一丁目 | ||
| 交通 | 駅:弥彦線 北三条駅から徒歩11分、バス:荒町1丁目から徒歩1分 | ||
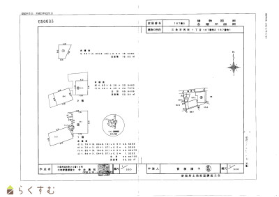
| 物件所在地 | 新潟県三条市荒町1丁目9-12 | ||
| 物件種別 | 中古一戸建て | ||
| 構造 | 木造 | 階建 | 地上2階建 |
| 建ぺい率/容積率 | 60%/200% | ||
| 建物面積 | 1階 96.86㎡/ 2階 55.64㎡/ 計 152.5㎡ /46.13坪 | ||
| 土地面積 | 199.89㎡ /60.46坪 | ||
| 築年月 | 1967年8月(築58年) | ||
| 入居時期 | 相談 | ||
| 用途地域 | 第1種住居地域 | 地目 | 宅地 (現状:宅地) |
| 都市計画 | 非線引き都市計画区域 | 学校区 | 裏館小学校(1,087m)・第三中学校(720m) |
| 形状 | - | 道路 | 北側:三条市道荒町中通り1号線 幅員2.2m |
| 私道 | - | ||
| 所在階/階数 | - | 号室 | - |
|---|---|---|---|
| 販売価格 | 2,500,000円 | 方位 | - |
| 間取り | 7DK | ||
| 専有面積 | - | バルコニー面積 | - |
| その他面積 | 19.83㎡ /5.99坪 車庫 | 駐車場 | - |
| 管理費 | - | 修繕積立金 | - |
| 現況 | 空家 | ||
| 仲介手数料 | 330,000円 | ||
| 利用制限 | - | ||
| 設備 | 閑静な住宅街、都市ガス、上水道、下水道 | ||
| 取引態様 | 専任 | ||
| 備考 | 準防火地域・特別工業地域・居住誘導区域・都市機能誘導区域 | ||
| 情報登録日 | 2026/03/18 | 次回更新予定日 | 2026/05/21 |
| 取引条件有効期限 | 2024/12/01 | ||
|
|
|
|
| TEL: | 0256-35-5825 |
|---|---|
| 所在地: | 新潟県三条市旭町1丁目1-19-3ユタカビル |
| 交通: | 東三条駅 |
| 営業時間: | 9:00~18:00/定休日:火曜・祭日 |
| 免許番号: | 新潟見知事(9)第3203号 |
| 所属団体名: | 新潟県宅地建物取引協会 三条支部 |
| 取引態様: | 専任 |