新潟県小千谷市東栄1丁目1098番2 中古一戸建て 5LDK 39,800,000円の物件情報

住宅+レストラン 【価格改定しました】

物件名/所在地 詳細 価格
小千谷市 1F住宅+2Fレストラン
新潟県小千谷市東栄1丁目1098番2
  • 土地面積
    :481.99㎡ /145.8坪
  • 建物面積
    :137.33㎡ /41.54坪
  • 間取り
    :5LDK
  • 築年月
    :1986年7月
39,800,000
  • 小千谷市 1F住宅+2Fレストラン
    ふどうさんの相談所 (ライフデザイン合同会社 イオン長岡店)
  • この物件を問い合わせる/無料
  • TEL: 0258-94-4370 0258-94-4370

物件画像

外観
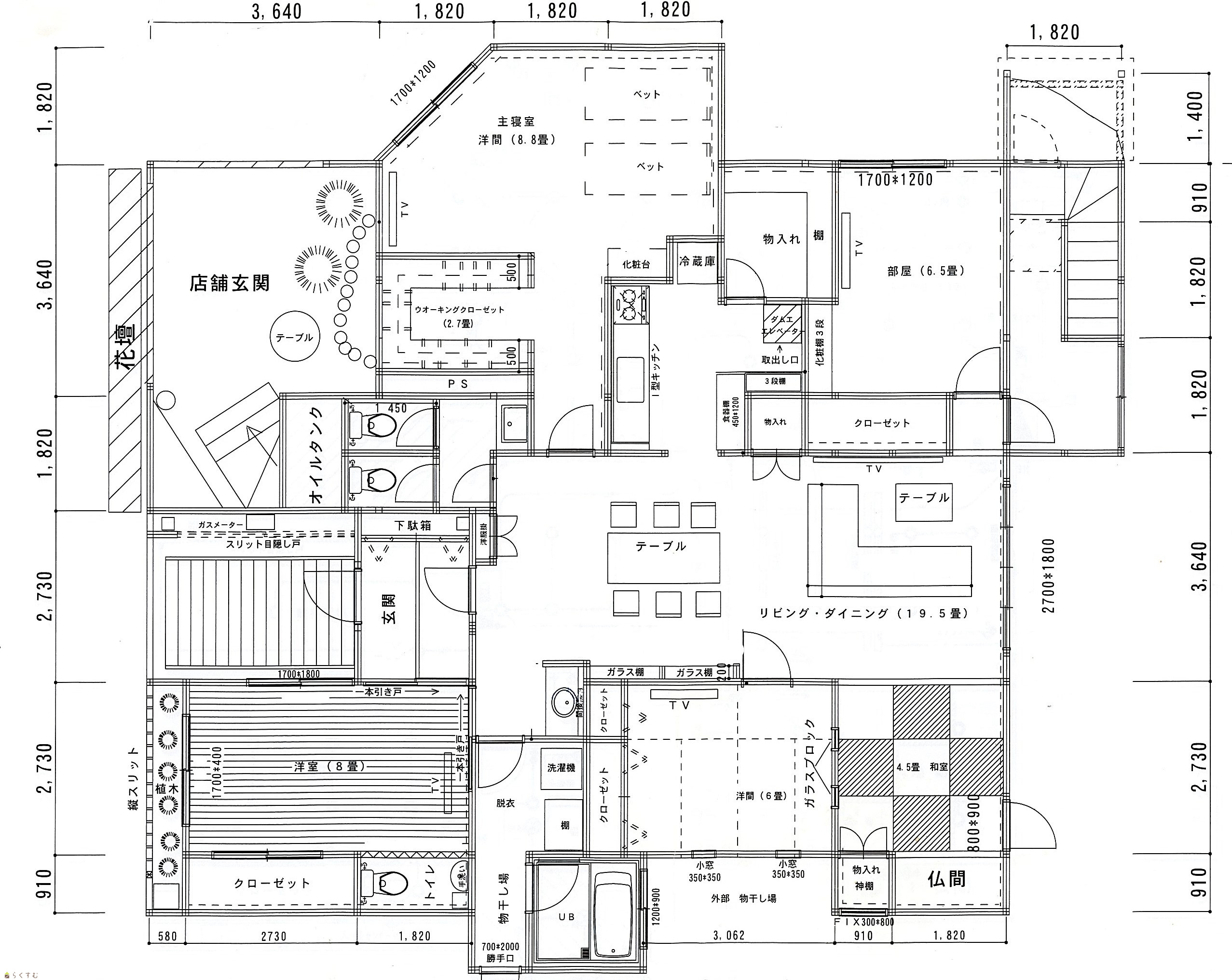
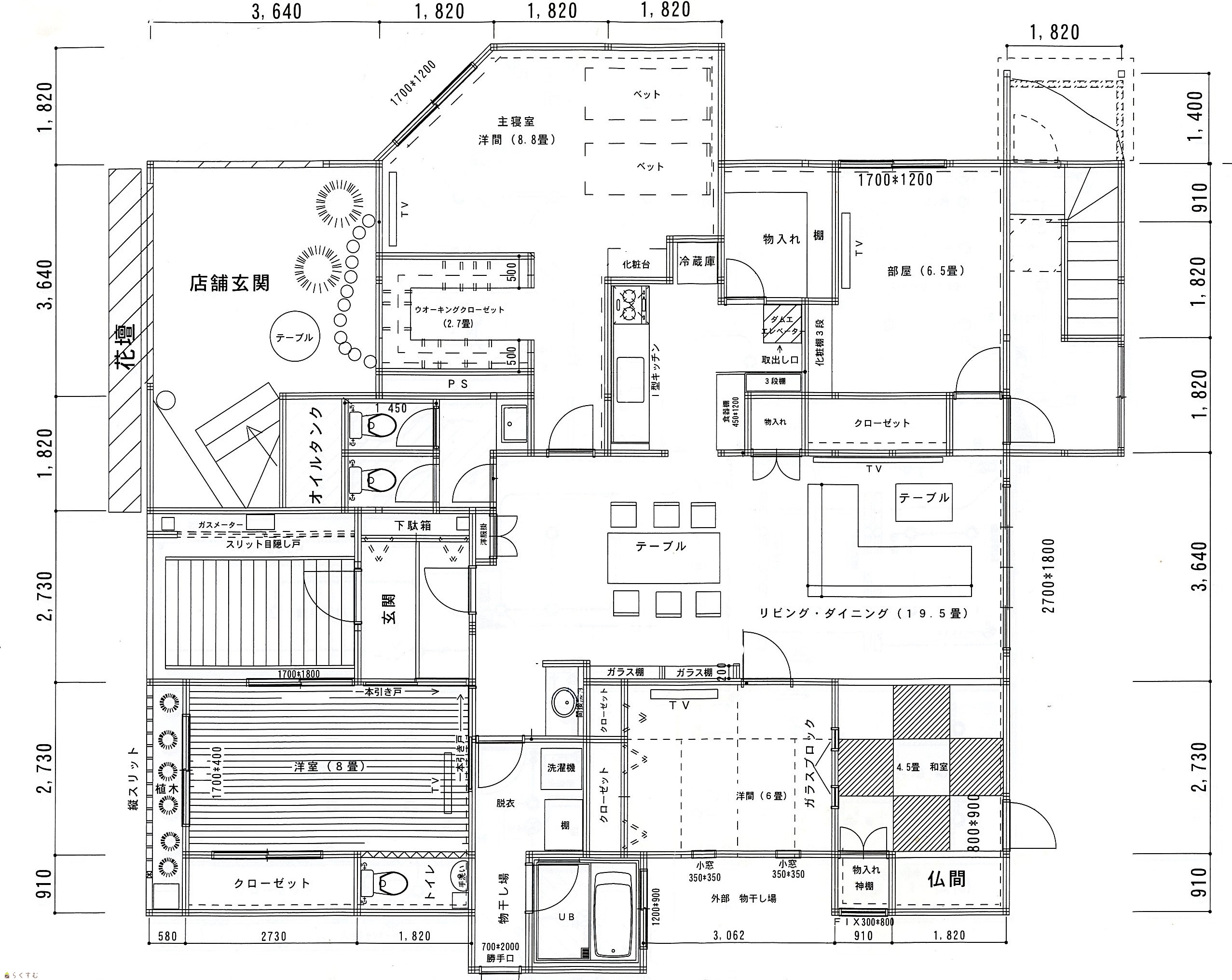
間取り
物件画像
※画像クリックで拡大表示
1Fリビングルーム
物件画像
※画像クリックで拡大表示
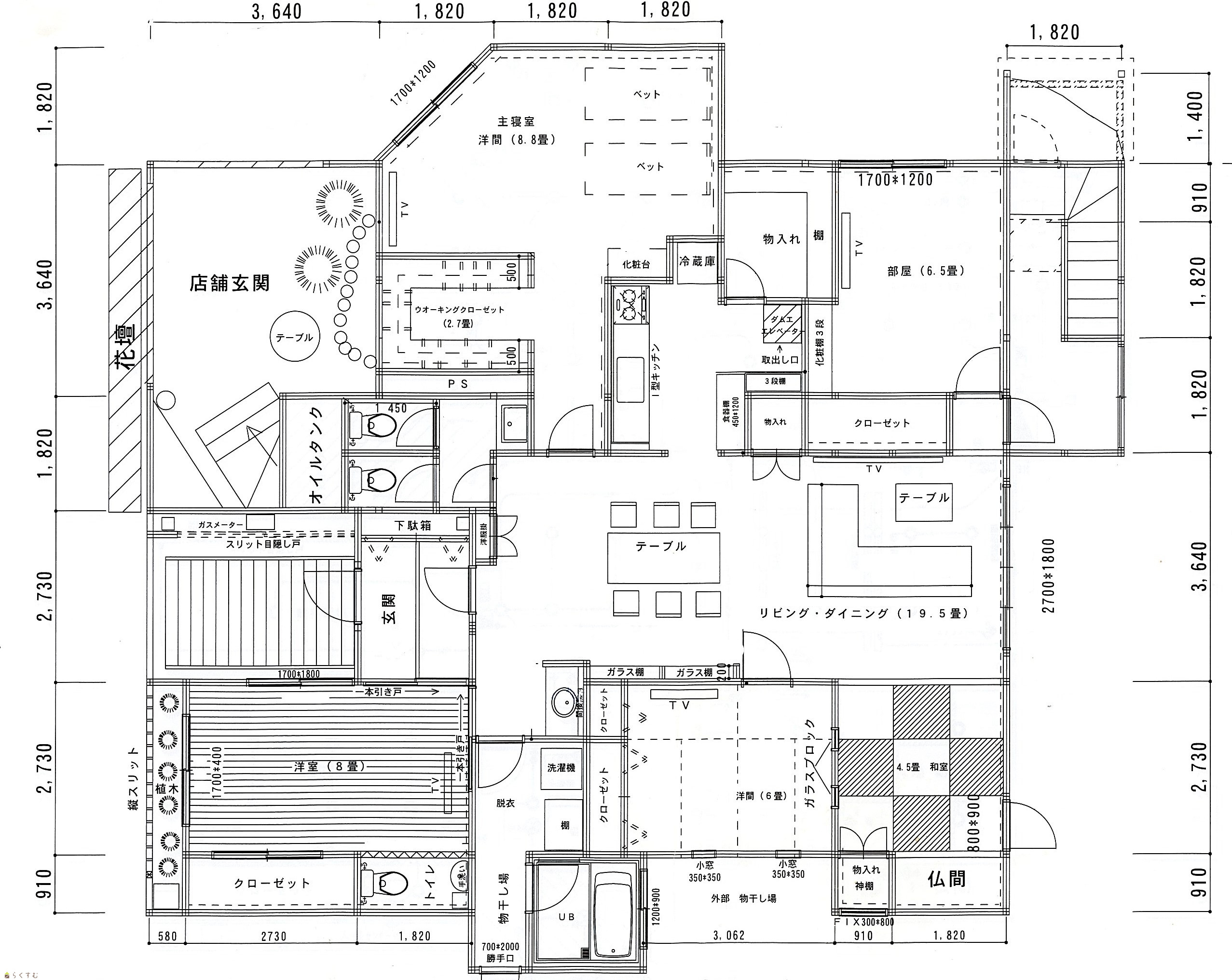
2F 住宅平面図
詳細画像
物件画像
1F レストラン平面図
物件画像
1Fリビングルーム2
物件画像
1Fリビングルーム3
物件画像
1F キッチン
物件画像
建物外観
物件画像
建物外観2
物件画像
2F レストラン 
物件画像
2F レストラン2
物件画像
2F レストラン 暖炉
物件画像
2F レストラン オーブン
物件画像
2F レストラン キッチン
物件画像
2F レストラン店内
物件画像
レストラン エントランス
物件画像
敷地内駐車場
物件画像
館名板
物件画像
レストラン テラス席
物件画像
敷地内 消雪井戸
物件画像
エントランス 内側
物件画像
1F エントランス
物件画像
地図画像


物件概要

物件コード 00039-200234
物件名 小千谷市 1F住宅+2Fレストラン
交通 駅:上越線 小千谷駅から徒歩9分、バス:小千谷車庫前から徒歩3分
物件所在地 新潟県小千谷市東栄1丁目1098番2
物件種別 中古一戸建て
構造 木造 階建 地上2階建
建ぺい率/容積率 60%/200%
建物面積 1階 60.22㎡/ 2階 77.11㎡/ 計 137.33㎡ /41.54坪
土地面積 481.99㎡ /145.8坪
築年月 1986年7月(築39年)
入居(引き渡し)時期 相談
用途地域 第1種中高層住居専用地域 地目 宅地  (現状:宅地)
都市計画 非線引き都市計画区域 学校区 東小千谷小学校(166m)・東小千谷中学校(474m)
形状 間口 19m × 奥行 40m 道路 市道
私道 - その他の制限 -
  • 小千谷市 1F住宅+2Fレストラン
    ふどうさんの相談所 (ライフデザイン合同会社 イオン長岡店)
  • この物件を問い合わせる/無料
  • TEL: 0258-94-4370 0258-94-4370

物件詳細情報

所在階/階数 - 号室 -
販売価格 39,800,000円 方位 -
間取り 5LDK (和室:4.5畳) (洋室:8.8、8、6.5、6)
19.5
専有面積 - バルコニー面積 -
その他面積 77.11㎡ /23.32坪  2階レストラン部分(建物未登記部分があります) 駐車場 -
管理費 - 修繕積立金 -
現況 居住中
仲介手数料 1,379,400円
利用制限 -
設備 日当り良好、閑静な住宅街、LDK15帖以上、駐車3台以上可能、駐車場融雪設備あり、バス1坪以上、トイレ2か所以上、上水道、下水道、事業向け
取引態様 専任
備考 -
取り扱い会社

ふどうさんの相談所 (ライフデザイン合同会社 イオン長岡店)

新潟県長岡市古正寺1-249-1イオン長岡店3F

情報登録日 2026/03/15 次回更新予定日 2026/05/21
取引条件有効期限 2026/04/30
  • 小千谷市 1F住宅+2Fレストラン
    ふどうさんの相談所 (ライフデザイン合同会社 イオン長岡店)
  • この物件を問い合わせる/無料
  • TEL: 0258-94-4370 0258-94-4370

この物件の地図・周辺情報・行政情報

この物件の周辺情報・行政情報を詳しく見る
【周辺情報】
物件の近くにあるコンビニや銀行・学校など、アイコン付のマップで詳しく表示できます!
【行政情報】
水道料や下水道料・ガス料金など、暮らしに関係のある情報を表示しています。

担当取扱い店舗情報

取扱い店舗画像
ふどうさんの相談所 (ライフデザイン合同会社 イオン長岡店)
TEL: 0258-94-4370
所在地: 新潟県長岡市古正寺1-249-1イオン長岡店3F
交通: 長岡駅
営業時間: 10:00~20:00/定休日:年末年始・特別日はお休みいたします
免許番号: 新潟県知事(3)第5090号
所属団体名: 全日本不動産協会 新潟県本部
取引態様: 専任
ホームページ: http://life-dn.com