| 物件コード | 00039-200234 | ||
|---|---|---|---|
| 物件名 | 小千谷市 1F住宅+2Fレストラン | ||
| 交通 | 駅:上越線 小千谷駅から徒歩9分、バス:小千谷車庫前から徒歩3分 | ||
| 物件所在地 | 新潟県小千谷市東栄1丁目1098番2 | ||
| 物件種別 | 中古一戸建て | ||
| 構造 | 木造 | 階建 | 地上2階建 |
| 建ぺい率/容積率 | 60%/200% | ||
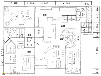
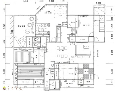
| 建物面積 | 1階 60.22㎡/ 2階 77.11㎡/ 計 137.33㎡ /41.54坪 | ||
| 土地面積 | 481.99㎡ /145.8坪 | ||
| 築年月 | 1986年7月(築39年) | ||
| 入居時期 | 相談 | ||
| 用途地域 | 第1種中高層住居専用地域 | 地目 | 宅地 (現状:宅地) |
| 都市計画 | 非線引き都市計画区域 | 学校区 | 東小千谷小学校(166m)・東小千谷中学校(474m) |
| 形状 | 間口 19m × 奥行 40m | 道路 | 市道 |
| 私道 | - | ||
| 所在階/階数 | - | 号室 | - |
|---|---|---|---|
| 販売価格 | 39,800,000円 | 方位 | - |
| 間取り |
5LDK (和室:4.5畳) (洋室:8.8、8、6.5、6) 19.5 |
||
| 専有面積 | - | バルコニー面積 | - |
| その他面積 | 77.11㎡ /23.32坪 2階レストラン部分(建物未登記部分があります) | 駐車場 | - |
| 管理費 | - | 修繕積立金 | - |
| 現況 | 居住中 | ||
| 仲介手数料 | 1,379,400円 | ||
| 利用制限 | - | ||
| 設備 | 日当り良好、閑静な住宅街、LDK15帖以上、駐車3台以上可能、駐車場融雪設備あり、バス1坪以上、トイレ2か所以上、上水道、下水道、事業向け | ||
| 取引態様 | 専任 | ||
| 備考 | - | ||
| 情報登録日 | 2026/03/15 | 次回更新予定日 | 2026/05/21 |
| 取引条件有効期限 | 2026/04/30 | ||
|
|
|
|
|
| TEL: | 0258-94-4370 |
|---|---|
| 所在地: | 新潟県長岡市古正寺1-249-1イオン長岡店3F |
| 交通: | 長岡駅 |
| 営業時間: | 10:00~20:00/定休日:年末年始・特別日はお休みいたします |
| 免許番号: | 新潟県知事(3)第5090号 |
| 所属団体名: | 全日本不動産協会 新潟県本部 |
| 取引態様: | 専任 |