新潟県長岡市福山町 投資物件・その他 20,000,000円の物件情報

入居者用Wi-Fi有

物件名/所在地 詳細 価格
表面利回り
オーベルジュ福山A
新潟県長岡市福山町
  • 土地面積
    :245.29㎡ /74.2坪
  • 建ぺい率
    :60%
  • 容積率
    :200%
20,000,000
14.04%
(満室想定時)
  • オーベルジュ福山A
    株式会社 ウェルネスホーム
  • この物件を問い合わせる/無料
  • TEL: 0258-29-0003 0258-29-0003

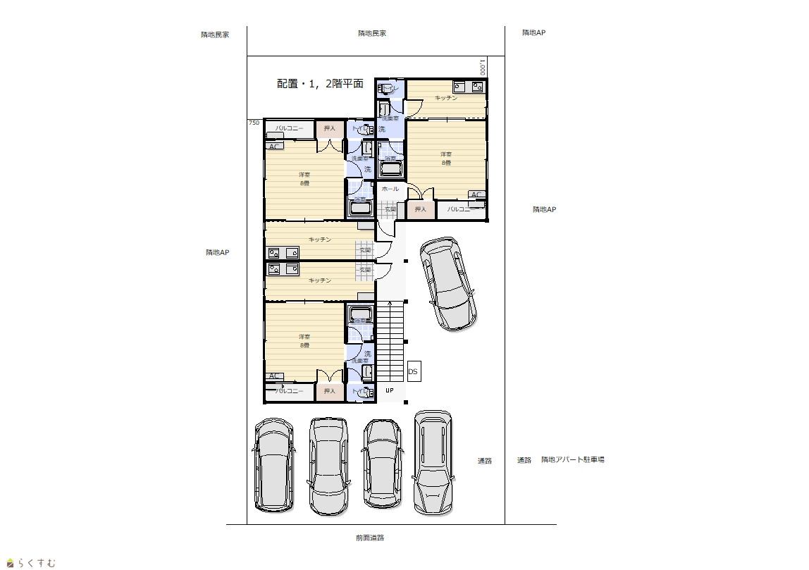
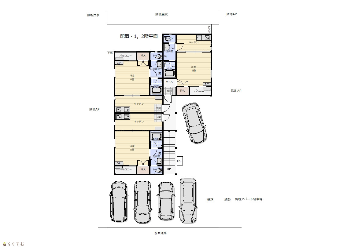
物件画像

外観
間取り
物件画像
※画像クリックで拡大表示
外観
物件画像
※画像クリックで拡大表示
間取り
詳細画像
物件画像
洋室
物件画像
キッチン
物件画像
洗面所
物件画像
バスルーム
物件画像
トイレ
物件画像
印刷用地図


物件概要

物件コード 00031-200168
物件名 オーベルジュ福山A
交通 駅:信越線 宮内駅から徒歩66分、バス:南七日町から徒歩5分
物件所在地 新潟県長岡市福山町
物件種別 投資物件・その他
物件区分 1棟売りマンション・アパート
構造 木造 階建 地上2階建
建ぺい率/容積率 60%/200%
建物面積 1階 89.45㎡/ 2階 94.4㎡/ 計 183.85㎡ /55.61坪
土地面積 245.29㎡ /74.2坪
築年月 1992年4月(築33年)
入居(引き渡し)時期 相談
用途地域 第1種低層住居専用地域 地目 宅地
都市計画 市街化区域 学校区 日越小学校(755m)・西中学校(1,108m)
形状 間口 11.58m × 奥行 21.05m 道路 公道
私道 - その他の制限 建基法22条地域
  • オーベルジュ福山A
    株式会社 ウェルネスホーム
  • この物件を問い合わせる/無料
  • TEL: 0258-29-0003 0258-29-0003

物件詳細情報

所在階/階数 - 号室 -
販売価格 20,000,000円 方位 -
表面利回り(満室想定時) 14.04% 満室想定年収 2,808,000円 (想定月収: 234,000円 )
現行利回り 11.76% 現行年間年収 2,352,000円
住戸数 6
間取り 1K
専有面積 31.81㎡ /9.62坪 ~ 31.81㎡ /9.62坪 バルコニー面積 -
その他面積 - 駐車場 駐車場無料
管理費 - 修繕積立金 -
現況 賃貸中
仲介手数料 726,000円
利用制限 ペット:可
設備 駐車場(近隣含む)、公営水道、都市ガス、下水道、事業向け
取引態様 一般
備考 -
取り扱い会社

株式会社 ウェルネスホーム

新潟県長岡市大山1-8-5

情報登録日 2025/07/07 次回更新予定日 2026/02/20
取引条件有効期限 2025/11/30
  • オーベルジュ福山A
    株式会社 ウェルネスホーム
  • この物件を問い合わせる/無料
  • TEL: 0258-29-0003 0258-29-0003

この物件の地図・周辺情報・行政情報

この物件の周辺情報・行政情報を詳しく見る
【周辺情報】
物件の近くにあるコンビニや銀行・学校など、アイコン付のマップで詳しく表示できます!
【行政情報】
水道料や下水道料・ガス料金など、暮らしに関係のある情報を表示しています。

担当取扱い店舗情報

取扱い店舗画像
株式会社 ウェルネスホーム
TEL: 0258-29-0003
所在地: 新潟県長岡市大山1-8-5
交通:
営業時間: 9:30~18:00/定休日:日曜・祭日 土曜は不定休
免許番号: 新潟県知事(8)3794号
所属団体名: 公益社団法人 全国宅地建物取引業保証協会
取引態様: 一般
ホームページ: http://www.wellnesshome.co.jp/