| 物件コード | 00031-200168 | ||
|---|---|---|---|
| 物件名 | オーベルジュ福山A | ||
| 交通 | 駅:信越線 宮内駅から徒歩66分、バス:南七日町から徒歩5分 | ||
| 物件所在地 | 新潟県長岡市福山町 | ||
| 物件種別 | 投資物件・その他 | ||
| 物件区分 | 1棟売りマンション・アパート | ||
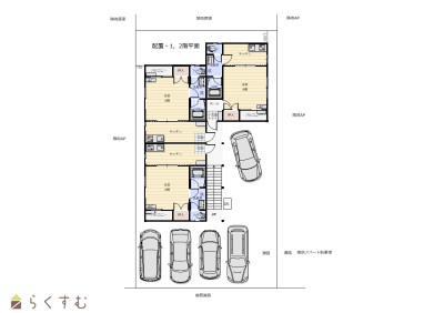
| 構造 | 木造 | 階建 | 地上2階建 |
| 建ぺい率/容積率 | 60%/200% | ||
| 建物面積 | 1階 89.45㎡/ 2階 94.4㎡/ 計 183.85㎡ /55.61坪 | ||
| 土地面積 | 245.29㎡ /74.2坪 | ||
| 築年月 | 1992年4月(築34年) | ||
| 入居時期 | 相談 | ||
| 用途地域 | 第1種低層住居専用地域 | 地目 | 宅地 |
| 都市計画 | 市街化区域 | 学校区 | 日越小学校(755m)・西中学校(1,108m) |
| 形状 | 間口 11.58m × 奥行 21.05m | 道路 | 公道 |
| 私道 | - | ||
| 所在階/階数 | - | 号室 | - |
|---|---|---|---|
| 販売価格 | 15,000,000円 | 方位 | - |
| 表面利回り (満室想定時) |
18.72% | 満室想定年収 | 2,808,000円 (想定月収: 234,000円 ) |
| 現行利回り | 12.88% | 現行年間年収 | 1,932,000円 |
| 住戸数 | 6 | ||
| 間取り | 1K | ||
| 専有面積 | 31.81㎡ /9.62坪 ~ 31.81㎡ /9.62坪 | バルコニー面積 | - |
| その他面積 | - | 駐車場 | 駐車場無料 |
| 管理費 | - | 修繕積立金 | - |
| 現況 | 賃貸中 | ||
| 仲介手数料 | 561,000円 | ||
| 利用制限 | ペット:可 | ||
| 設備 | 駐車場(近隣含む)、公営水道、都市ガス、下水道、事業向け | ||
| 取引態様 | 一般 | ||
| 備考 | 本物件の駐車場は5台です。 | ||
| 情報登録日 | 2026/04/09 | 次回更新予定日 | 2026/05/21 |
| 取引条件有効期限 | 2025/11/30 | ||
|
|
|
|
|
|
| TEL: | 0258-29-0003 |
|---|---|
| 所在地: | 新潟県長岡市大山1-8-5 |
| 交通: | |
| 営業時間: | 9:30~18:00/定休日:日曜・祭日 土曜は不定休 |
| 免許番号: | 新潟県知事(8)3794号 |
| 所属団体名: | 公益社団法人 全国宅地建物取引業保証協会 |
| 取引態様: | 一般 |