新潟県長岡市福住1丁目2番27号 中古一戸建て 7LDK 34,400,000円の物件情報

長岡駅、スーパー、文教施設までのアクセス良好です。閑静な住宅地につき、住環境良好です。雨でも安心「インナーガレージ住宅」

物件名/所在地 詳細 価格
長岡市福住1丁目リノベーション住宅
新潟県長岡市福住1丁目2番27号
  • 土地面積
    :247.93㎡ /74.99坪
  • 建物面積
    :292.08㎡ /88.35坪
  • 間取り
    :7LDK
  • 築年月
    :1996年9月
34,400,000
  • 長岡市福住1丁目リノベーション住宅
    株式会社 エヌ・アール・ケー総合企画
  • この物件を問い合わせる/無料
  • TEL: 0258-41-5336 0258-41-5336

物件画像

外観
間取り
物件画像
※画像クリックで拡大表示
外観
物件画像
※画像クリックで拡大表示
間取り
詳細画像
物件画像
物件概要
物件画像
和室
物件画像
洋室
物件画像
収納
物件画像
玄関ホール
物件画像
玄関
物件画像
バスルーム
物件画像
全面道路含む敷地写真
物件画像
印刷用地図


物件概要

広々敷地74.99坪、住宅88.35坪。間取り7LDK、駐車5台可。長岡駅まで徒歩3分の立地条件。
物件コード 00024-200947
物件名 長岡市福住1丁目リノベーション住宅
交通 駅:信越線 長岡駅から徒歩4分、バス:福住から徒歩5分
物件所在地 新潟県長岡市福住1丁目2番27号
物件種別 中古一戸建て
構造 木造 階建 地上3階建
建ぺい率/容積率 80%/300%
建物面積 1階 99.37㎡/ 2階 99.97㎡/ 3階 92.74㎡/ 計 292.08㎡ /88.35坪
土地面積 247.93㎡ /74.99坪
築年月 1996年9月(築29年)
入居(引き渡し)時期 令和8年1月末以降引渡し予定
用途地域 近隣商業地域 地目 宅地  (現状:宅地)
都市計画 市街化区域 学校区 阪之上小学校(175m)・東北中学校(1,406m)
形状 間口 9.1m × 奥行 27.2m 道路 長岡市道幅員8.3m 前面道路消雪パイプ有
私道 - その他の制限 景観法、準防火地域、盛土規制法
  • 長岡市福住1丁目リノベーション住宅
    株式会社 エヌ・アール・ケー総合企画
  • この物件を問い合わせる/無料
  • TEL: 0258-41-5336 0258-41-5336

物件詳細情報

所在階/階数 - 号室 -
販売価格 34,400,000円 方位
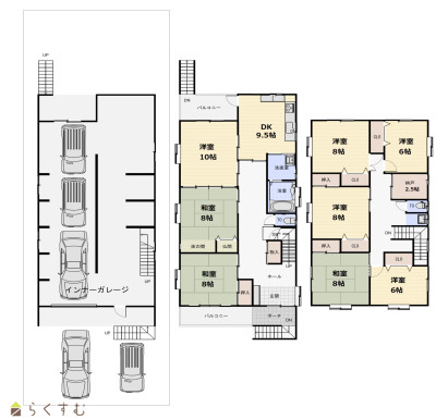
間取り 7LDK (和室:8畳、8畳、8畳) (洋室:8、8、6、6)
LDK19.5帖
販売図面と現況が相違する場合は現況を優先させて頂きます。
専有面積 - バルコニー面積 -
その他面積 - 駐車場 -
管理費 - 修繕積立金 -
現況 空家
仲介手数料 なし
利用制限 -
設備 日当り良好、閑静な住宅街、スーパー近く、LDK15帖以上、駐車3台以上可能、TVインターホン、複層ガラス、デインプルキー、システムキッチン、ガスコンロ設置済み、追いだき機能付き、バス1坪以上、温水洗浄便座、トイレ2か所以上、シャワー付き洗面台、エアコンあり、床暖房、省エネ給湯機、都市ガス、上水道、下水道、全居室収納あり、リノベーション物件
取引態様 売主
備考 おすすめポイント
①外壁、屋根塗装、ガレージシャッター新品入替え
②食器洗浄機付きキッチン、洗面、トイレ新品交換
③各部屋収納付きで整理整頓上手
④雨でも安心「インナーガレージ付き住宅」
⑤駅、スーパー、文教施設のアクセス良好。利便性の高い立地
・購入時には別途諸費用が掛かります
〈住宅ローン返済例〉
金利:1.125%(変動金利)借入期間:40年 ボーナス返済:無 
借入金額: 3,440万円 返済額:89,030円
※当社売主につき、仲介手数料不要です。
・販売図面と現況が相違する場合は現況を優先させて頂きます。
取り扱い会社

株式会社 エヌ・アール・ケー総合企画

新潟県長岡市与板町与板119番地

情報登録日 2025/12/08 次回更新予定日 2025/12/28
取引条件有効期限 2027/05/08
  • 長岡市福住1丁目リノベーション住宅
    株式会社 エヌ・アール・ケー総合企画
  • この物件を問い合わせる/無料
  • TEL: 0258-41-5336 0258-41-5336

この物件の地図・周辺情報・行政情報

この物件の周辺情報・行政情報を詳しく見る
【周辺情報】
物件の近くにあるコンビニや銀行・学校など、アイコン付のマップで詳しく表示できます!
【行政情報】
水道料や下水道料・ガス料金など、暮らしに関係のある情報を表示しています。
ローソン 長岡今朝白一丁目店(コンビニ)まで160m
原信 今朝白店(スーパー)まで360m

※カメラのアイコンがある場合は、マウスをポイントするとその施設の画像がご覧いただけます。


担当取扱い店舗情報

取扱い店舗画像
株式会社 エヌ・アール・ケー総合企画
TEL: 0258-41-5336
所在地: 新潟県長岡市与板町与板119番地
交通:
営業時間: 8:30~17:30/定休日:土日・祝祭日 (電話対応しております)
免許番号: 新潟県知事(5)第4750号
所属団体名: 新潟県宅地建物取引業協会 長岡支部
取引態様: 売主
ホームページ: http://www.nrk-sogo.jp