新潟県燕市吉田西太田字札木276番16 新築一戸建て 3LDK 23,800,000円の物件情報

小学校・商業施設が徒歩圏内◆収納充実♪◆南側リビング◆前面道路に消雪パイプ有

物件名/所在地 詳細 価格
燕市吉田西太田 建売住宅 3号棟
新潟県燕市吉田西太田字札木276番16
  • 土地面積
    :165㎡ /49.91坪
  • 建物面積
    :86.74㎡ /26.23坪
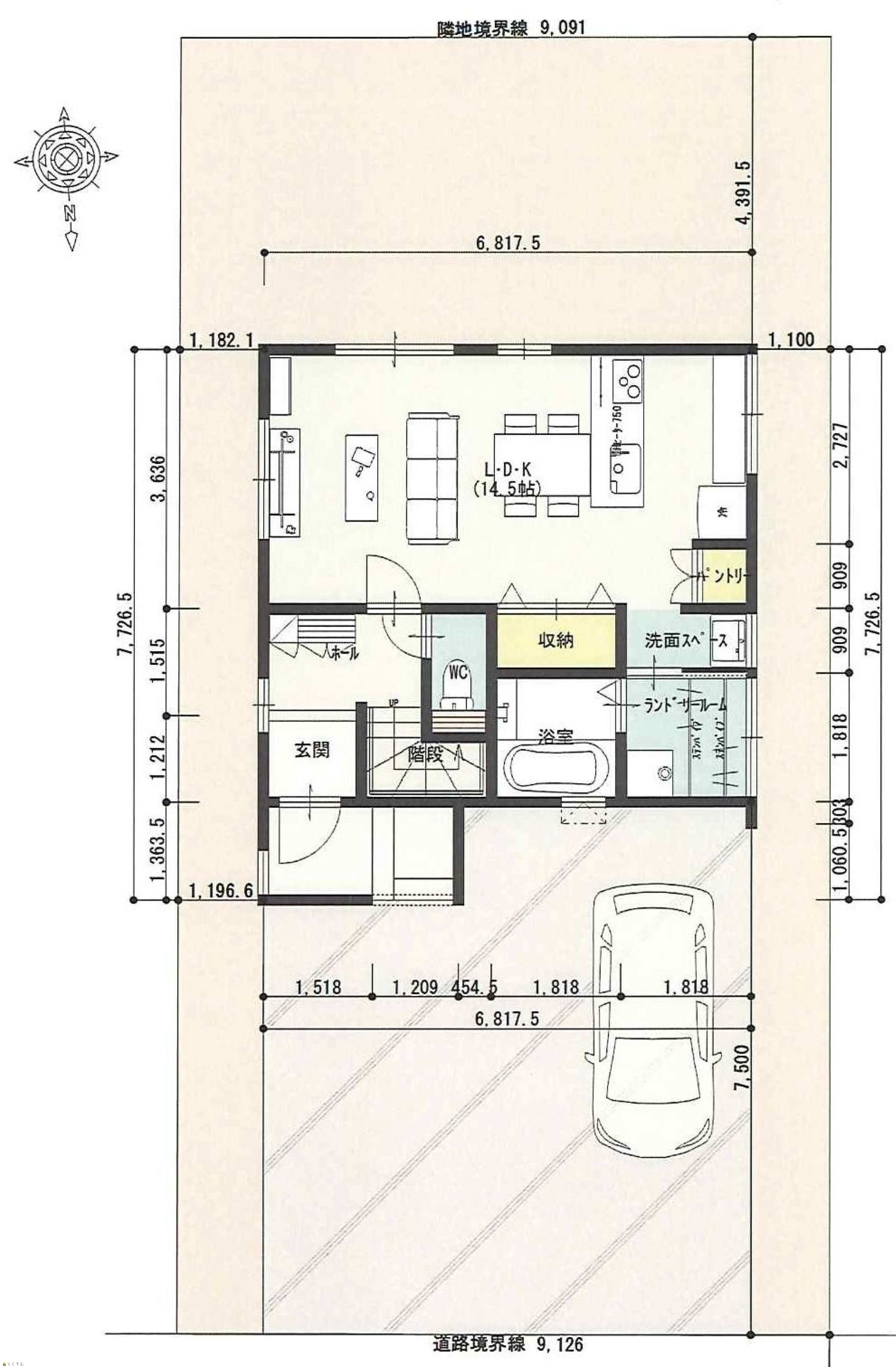
  • 間取り
    :3LDK
  • 築年月
    :2026年6月
23,800,000
  • 燕市吉田西太田 建売住宅 3号棟
    有限会社 一代工務店
  • この物件を問い合わせる/無料
  • TEL: 0258-34-2221 0258-34-2221

物件画像

外観
間取り
物件画像
※画像クリックで拡大表示
※画像はイメージとなり実物と異なる場合があります。
物件画像
※画像クリックで拡大表示
地型付間取り図
詳細画像
物件画像
1階
物件画像
2階
物件画像
前面道路は消雪パイプがありますので、冬も安心です。
物件画像
印刷用地図


物件概要

<令和8年6月完成予定>◆小学校や商業施設が徒歩圏内に充実していて生活に便利な立地♪ ◆前面道路には消雪パイプがありますので、冬も安心です。 ◆白と木目調の外観がつくる、明るくやさしい佇まいの建売住宅。 ◆南側リビングの光あふれる空間に、LDK収納とパントリーを備えた、心地よい暮らし。 ◆南側のお庭スペースは、植物の栽培やお子様の遊び場など、多用途に使えるお庭スペース。
物件コード 00007-200771
物件名 燕市吉田西太田 建売住宅 3号棟
交通 駅:越後線 南吉田駅から徒歩7分、バス:南吉田駅から徒歩7分
物件所在地 新潟県燕市吉田西太田字札木276番16
物件種別 新築一戸建て
構造 木造 階建 地上2階建
建ぺい率/容積率 60%/200%
建物面積 計 86.74㎡ /26.23坪
土地面積 165㎡ /49.91坪
築年月 2026年6月完成予定
入居(引き渡し)時期 相談
用途地域 第1種住居地域 地目 畑  (現状:宅地)
都市計画 非線引き都市計画区域 学校区 吉田南小学校(1,003m)・吉田中学校(3,499m)
形状 - 道路 北側:市道5.0m
私道 - その他の制限 -
  • 燕市吉田西太田 建売住宅 3号棟
    有限会社 一代工務店
  • この物件を問い合わせる/無料
  • TEL: 0258-34-2221 0258-34-2221

物件詳細情報

所在階/階数 - 号室 -
販売価格 23,800,000円 方位
間取り 3LDK (洋室:7、6、6)
LDK14.5
建築確認番号:NK第24長01154号
専有面積 - バルコニー面積 -
その他面積 - 駐車場 -
管理費 - 修繕積立金 -
現況 指定なし
仲介手数料 なし
利用制限 -
設備 整形地、日当り良好、閑静な住宅街、BELS/省エネ基準適合認定建物、フラット35S適合、全室フローリング、駐車場2台以上、南向き、庭あり、TVインターホン、複層ガラス、ディンプルキー、システムキッチン、IHクッキングヒーター、3口コンロ、追いだき機能付き、バス1坪以上、温水洗浄便座、シャワー付き洗面台、エアコン、24時間換気システム、省エネ給湯、高気密高断熱住宅、都市ガス、上水道、下水道、電気、ウォークインクローゼット、全居室収納あり、床下収納、シューズBOX、照明器具付き
取引態様 売主
備考 ※物件掲載内容と現況に相違がある場合は現況を優先と致します。
詳細はお気軽にお問い合わせください。
担当:竹之内
携帯:090-7815-6720
取り扱い会社

有限会社 一代工務店

新潟県長岡市信濃2-5-36

情報登録日 2026/03/08 次回更新予定日 2026/04/05
取引条件有効期限 2026/05/01
  • 燕市吉田西太田 建売住宅 3号棟
    有限会社 一代工務店
  • この物件を問い合わせる/無料
  • TEL: 0258-34-2221 0258-34-2221

この物件の地図・周辺情報・行政情報

この物件の周辺情報・行政情報を詳しく見る
【周辺情報】
物件の近くにあるコンビニや銀行・学校など、アイコン付のマップで詳しく表示できます!
【行政情報】
水道料や下水道料・ガス料金など、暮らしに関係のある情報を表示しています。
セブン-イレブン 下越吉田西太田店(コンビニ)まで720m

※カメラのアイコンがある場合は、マウスをポイントするとその施設の画像がご覧いただけます。


担当取扱い店舗情報

取扱い店舗画像
有限会社 一代工務店
TEL: 0258-34-2221
所在地: 新潟県長岡市信濃2-5-36
交通: 長岡駅
営業時間: 9:00~18:00/定休日:
免許番号: 新潟県知事(12)2196号
所属団体名: 新潟県宅地建物取引業協会 長岡支部
取引態様: 売主
ホームページ: http://www.ichidai-k.co.jp/