新潟県長岡市本町2丁目1番5 中古マンション 3LDK 30,900,000円の物件情報

長岡駅徒歩圏内に総戸数45戸、築浅マンション出ました! 広めの居室、3LDK間取りです。角部屋で2方にバルコニーがあり、長岡花火が良く見える部屋です♪

物件名/所在地 詳細 価格
長岡市本町2丁目 アルファステイツ長岡本町
新潟県長岡市本町2丁目1番5
  • 専有面積
    :72.16㎡ /21.82坪
  • 間取り
    :3LDK
  • 築年月
    :2019年8月
30,900,000
  • 長岡市本町2丁目 アルファステイツ長岡本町
    有限会社 一代工務店
  • この物件を問い合わせる/無料
  • TEL: 0258-34-2221 0258-34-2221

物件画像

外観
間取り
物件画像
※画像クリックで拡大表示
現地外観写真
物件画像
※画像クリックで拡大表示
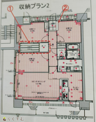
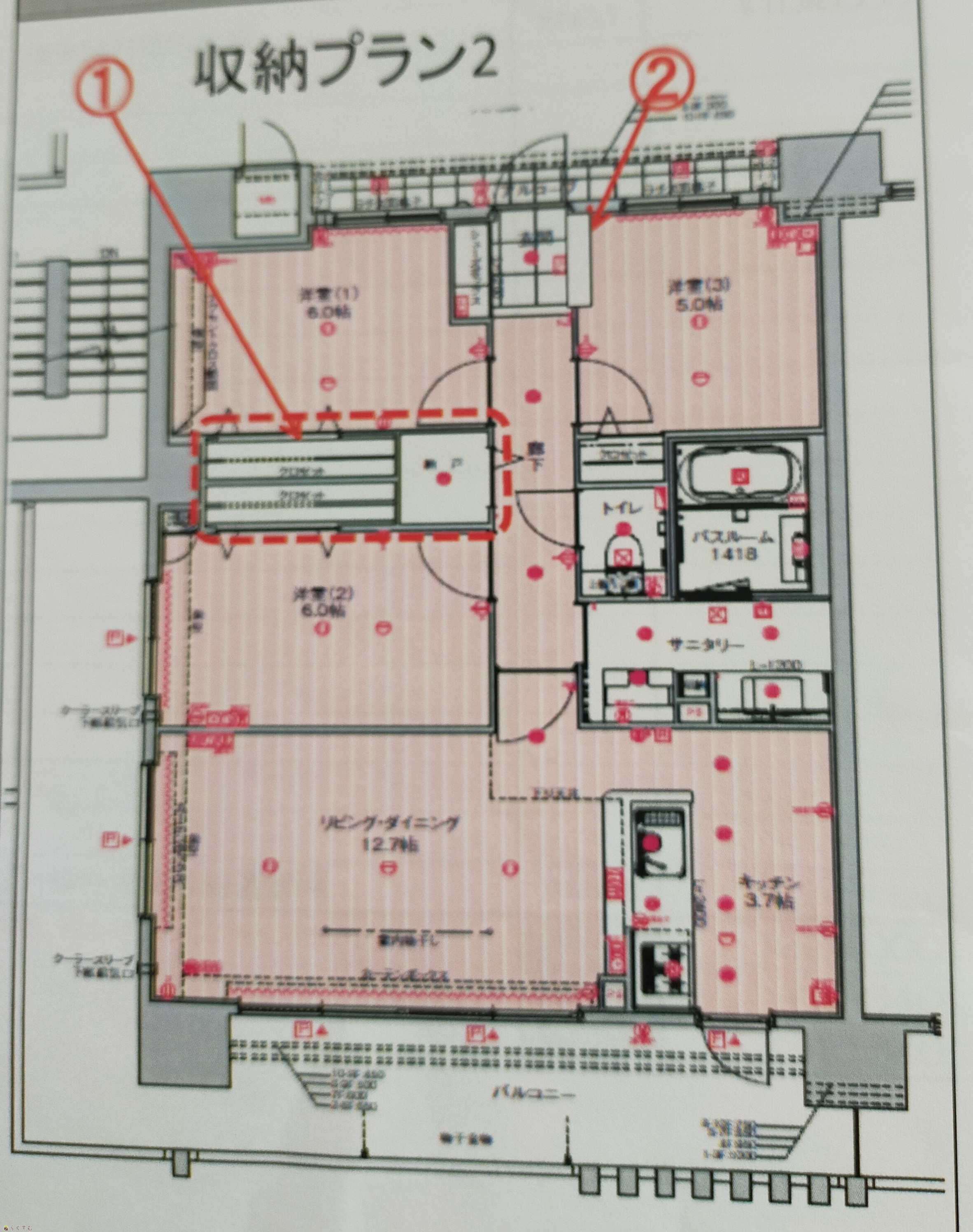
間取り図
詳細画像
物件画像
LDK16.4帖
物件画像
キッチン
物件画像
キッチンシンク
物件画像
キッチンガスコンロ
物件画像
レンジフード
物件画像
マンション玄関入り口
物件画像
玄関外
物件画像
玄関内
物件画像
洗面脱衣
物件画像
ユニットバス
物件画像
トイレ
物件画像
洋室1
物件画像
バルコニー
物件画像
TVモニター付インターホン
物件画像
給湯機
物件画像
給湯機コントローラー
物件画像
浴室乾燥コントローラー
物件画像
前面道路
物件画像
お部屋から見える長岡花火です。特等席で、ぜひ。
物件画像
地図画像


物件概要

LDKと廊下のフローリングはコーティング施工されています。
物件コード 00007-200724
物件名 長岡市本町2丁目 アルファステイツ長岡本町
交通 駅:信越線 長岡駅から徒歩18分、バス:上田町から徒歩3分
物件所在地 新潟県長岡市本町2丁目1番5
物件種別 中古マンション
構造 鉄筋コン 階建 地上10階建
建ぺい率/容積率 80%/300%
建物面積 -
土地面積 -
築年月 2019年8月(築6年)
入居(引き渡し)時期 相談
用途地域 近隣商業地域 地目 宅地
都市計画 市街化区域 学校区 表町小学校(517m)・東中学校(1,119m)
形状 - 道路 北西側:市道 7.8m、南東側:市道 15.1m
私道 - その他の制限 -
  • 長岡市本町2丁目 アルファステイツ長岡本町
    有限会社 一代工務店
  • この物件を問い合わせる/無料
  • TEL: 0258-34-2221 0258-34-2221

物件詳細情報

所在階/階数 3階/10階 号室 -
販売価格 30,900,000円 方位 -
間取り 3LDK (洋室:6、6、5)
LDK16.4
専有面積 72.16㎡ /21.82坪 バルコニー面積 26.16㎡ /7.91坪
その他面積 - 駐車場 -
管理費 5,100円/月 修繕積立金 8,300円/月
現況 居住中
仲介手数料 1,085,700円
災害積立金 300円
/月
本町2丁目町内費 6,000円
/年
利用制限 ペット:相談
設備 10階建て以上、角部屋、2階以上、日当り良好、スーパー近く、最寄駅近く、洗濯機置き場、エレベーター、宅配BOX、LDK15帖以上、全室フローリング、築10年以内、バイク置き場、駐輪場、管理人常駐(日中)、TV付きインターホン、システムキッチン、対面式キッチン、食器洗浄乾燥機、浄水器、3口コンロ、ガスコンロ設置済み、浴室乾燥機、浴室1坪以上、温水洗浄便座、シャワー付き洗面台、エアコン、全室エアコン、都市ガス、公営水道、下水道、バルコニー2面以上、全室収納あり、シューズBOX、CATV、高速ネット対応、ペット相談
取引態様 一般
備考 現在居住中です。内覧ご希望の方はご予約をお願い致します。
●バイク置場使用料:1,000円/月

※物件掲載内容と現況に相違がある場合は現況を優先と致します。
詳細はお気軽にお問い合わせください。
担当:藤崎
携帯:090-2763-5443
取り扱い会社

有限会社 一代工務店

新潟県長岡市信濃2-5-36

情報登録日 2025/10/24 次回更新予定日 2025/11/09
取引条件有効期限 2025/12/01
  • 長岡市本町2丁目 アルファステイツ長岡本町
    有限会社 一代工務店
  • この物件を問い合わせる/無料
  • TEL: 0258-34-2221 0258-34-2221

この物件の地図・周辺情報・行政情報

この物件の周辺情報・行政情報を詳しく見る
【周辺情報】
物件の近くにあるコンビニや銀行・学校など、アイコン付のマップで詳しく表示できます!
【行政情報】
水道料や下水道料・ガス料金など、暮らしに関係のある情報を表示しています。
セブン-イレブン 長岡表町店(コンビニ)まで190m
ウオロク 長岡店(スーパー)まで750m
りそな銀行 長岡支店(銀行)まで290m
長岡信用金庫 本店(銀行)まで420m
(株)大光銀行 千手支店(銀行)まで590m
長岡郵便局(郵便局)まで430m
セブン-イレブン 長岡表町店(コンビニ)まで190m
ウオロク 長岡店(スーパー)まで750m
長岡信用金庫 本店(銀行)まで420m
(株)大光銀行 千手支店(銀行)まで590m
長岡郵便局(郵便局)まで430m

※カメラのアイコンがある場合は、マウスをポイントするとその施設の画像がご覧いただけます。


担当取扱い店舗情報

取扱い店舗画像
有限会社 一代工務店
TEL: 0258-34-2221
所在地: 新潟県長岡市信濃2-5-36
交通: 長岡駅
営業時間: 9:00~18:00/定休日:
免許番号: 新潟県知事(12)2196号
所属団体名: 新潟県宅地建物取引業協会 長岡支部
取引態様: 一般
ホームページ: http://www.ichidai-k.co.jp/