物件掲載企業数:299|賃貸物件:2,912件|売買物件:3,228件|今週の登録物件:348
閲覧中のブラウザ(インターネットエクスプローラー)は非推奨ブラウザです。
物件が正しく表示されなかったり、正しく検索されない場合があります。最新のブラウザ(Google Chrome・Edgeなど)にてご利用お願いいたします。
  

新潟県糸魚川市桂29-1 中古一戸建て 5K 13,000,000円の物件情報

☆アクセス良好!!敷地と建物が広々と開放的な中古物件です☆

物件名/所在地 詳細 価格
糸魚川市桂
新潟県糸魚川市桂29-1
  • 土地面積
    :436.98㎡ /132.18坪
  • 建物面積
    :295.85㎡ /89.49坪
  • 間取り
    :5K
  • 築年月
    :1994年5月
13,000,000
  • 糸魚川市桂
    有限会社田村家具店
  • この物件を問い合わせる/無料
  • TEL: 025-523-2438

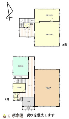
物件画像

外観 間取り
物件画像
※画像クリックで拡大表示
外観
物件画像
※画像クリックで拡大表示
間取り
詳細画像


物件概要

物件コード 00277-200484
物件名 糸魚川市桂
交通 駅:日本海ひすいライン 能生駅から徒歩9分
物件所在地 新潟県糸魚川市桂29-1
物件種別 中古一戸建て
構造 鉄骨 階建 地上2階建
建ぺい率/容積率 70%/199%
建物面積 計 295.85㎡ /89.49坪
土地面積 436.98㎡ /132.18坪
築年月 1994年5月(築31年)
入居(引き渡し)時期 相談
用途地域 用途の指定のない地域 地目 宅地  (現状:宅地)
都市計画 非線引き都市計画区域 学校区 能生小学校(888m)・能生中学校(140m)
形状 間口 18.3m × 奥行 30.1m 道路 南東側約6.5m、西側約7.7m
私道 - その他の制限 -
  • 糸魚川市桂
    有限会社田村家具店
  • この物件を問い合わせる/無料
  • TEL: 025-523-2438

物件詳細情報

所在階/階数 - 号室 -
販売価格 13,000,000円 方位 -
間取り 5K
専有面積 - バルコニー面積 -
その他面積 - 駐車場 -
管理費 - 修繕積立金 -
現況 空家
仲介手数料 495,000円
利用制限 -
設備 角地、日当り良好、駐車3台以上可能、トイレ2か所以上、都市ガス、上水道、下水道、事業向け
取引態様 一般
備考 ・事務所や店舗としての利用に最適です♪
・角地で日当り、風当り良好です♪
・高速道路のインターや役場、商業施設が近いのでアクセスも良好です☆
・土地、建物、設備については現状渡しとなります。

※本体代金に別途諸費用が掛かります。
取り扱い会社

有限会社田村家具店

新潟県上越市稲田4-5-21

情報登録日 2026/01/17 次回更新予定日 2026/04/05
取引条件有効期限 2035/12/31
  • 糸魚川市桂
    有限会社田村家具店
  • この物件を問い合わせる/無料
  • TEL: 025-523-2438

この物件の地図・周辺情報・行政情報

この物件の周辺情報・行政情報を詳しく見る
【周辺情報】
物件の近くにあるコンビニや銀行・学校など、アイコン付のマップで詳しく表示できます!
【行政情報】
水道料や下水道料・ガス料金など、暮らしに関係のある情報を表示しています。

担当取扱い店舗情報

取扱い店舗画像
有限会社田村家具店
TEL: 025-523-2438
所在地: 新潟県上越市稲田4-5-21
交通: 高田駅
営業時間: 午前9:00~午後18:00/定休日:水曜日 第1、第3日曜日
免許番号: 新潟県知事(10)第2792号 この会社の情報を詳しく見る
所属団体名: 公社 新潟県宅地建物取引協会 上越支部
取引態様: 一般