| 物件コード | 00277-200484 | ||
|---|---|---|---|
| 物件名 | 糸魚川市桂 | ||
| 交通 | 駅:日本海ひすいライン 能生駅から徒歩9分 | ||
| 物件所在地 | 新潟県糸魚川市桂29-1 | ||
| 物件種別 | 中古一戸建て | ||
| 構造 | 鉄骨 | 階建 | 地上2階建 |
| 建ぺい率/容積率 | 70%/199% | ||
| 建物面積 | 計 295.85㎡ /89.49坪 | ||
| 土地面積 | 436.98㎡ /132.18坪 | ||
| 築年月 | 1994年5月(築32年) | ||
| 入居時期 | 相談 | ||
| 用途地域 | 用途の指定のない地域 | 地目 | 宅地 (現状:宅地) |
| 都市計画 | 非線引き都市計画区域 | 学校区 | 能生小学校(888m)・能生中学校(140m) |
| 形状 | 間口 18.3m × 奥行 30.1m | 道路 | 南東側約6.5m、西側約7.7m |
| 私道 | - | ||
| 所在階/階数 | - | 号室 | - |
|---|---|---|---|
| 販売価格 | 13,000,000円 | 方位 | - |
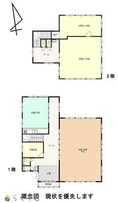
| 間取り | 5K | ||
| 専有面積 | - | バルコニー面積 | - |
| その他面積 | - | 駐車場 | - |
| 管理費 | - | 修繕積立金 | - |
| 現況 | 空家 | ||
| 仲介手数料 | 495,000円 | ||
| 利用制限 | - | ||
| 設備 | 角地、日当り良好、駐車3台以上可能、トイレ2か所以上、都市ガス、上水道、下水道、事業向け | ||
| 取引態様 | 一般 | ||
| 備考 | ・事務所や店舗としての利用に最適です♪ ・角地で日当り、風当り良好です♪ ・高速道路のインターや役場、商業施設が近いのでアクセスも良好です☆ ・土地、建物、設備については現状渡しとなります。 ※本体代金に別途諸費用が掛かります。 |
||
| 情報登録日 | 2026/01/17 | 次回更新予定日 | 2026/05/21 |
| 取引条件有効期限 | 2035/12/31 | ||
|
|
|
|
|
|
| TEL: | 025-523-2438 |
|---|---|
| 所在地: | 新潟県上越市稲田4-5-21 |
| 交通: | 高田駅 |
| 営業時間: | 午前9:00~午後18:00/定休日:水曜日 第1、第3日曜日 |
| 免許番号: | 新潟県知事(10)第2792号 |
| 所属団体名: | 公社 新潟県宅地建物取引協会 上越支部 |
| 取引態様: | 一般 |