物件掲載企業数:297|賃貸物件:3,616件|売買物件:3,313件|今週の登録物件:271
閲覧中のブラウザ(インターネットエクスプローラー)は非推奨ブラウザです。
物件が正しく表示されなかったり、正しく検索されない場合があります。最新のブラウザ(Google Chrome・Edgeなど)にてご利用お願いいたします。
  

新潟県上越市西城町3丁目11-17 中古一戸建て 3DK 12,800,000円の物件情報

由緒ある旧邸も建ち並ぶ、青田川沿いのリフォーム戸建です! 鉄骨造! 日当たりも良好!

物件名/所在地 詳細 価格
上越市西城町3丁目 戸建
新潟県上越市西城町3丁目11-17
  • 土地面積
    :165㎡ /49.91坪
  • 建物面積
    :154.81㎡ /46.83坪
  • 間取り
    :3DK
  • 築年月
    :1980年10月
12,800,000
  • 上越市西城町3丁目 戸建
    越乃エステート株式会社
  • この物件を問い合わせる/無料
  • TEL: 025-520-6623

物件画像

外観 間取り
物件画像
※画像クリックで拡大表示
外観
物件画像
※画像クリックで拡大表示
間取り
詳細画像


物件概要

近隣には保育園・幼稚園・小学校が徒歩圏! ・高田駅へも徒歩11分
物件コード 00250-200073
物件名 上越市西城町3丁目 戸建
交通 駅:妙高はねうまライン 高田駅から徒歩11分、バス:西城町十字路から徒歩4分
物件所在地 新潟県上越市西城町3丁目11-17
物件種別 中古一戸建て
構造 鉄骨 階建 地上3階建
建ぺい率/容積率 50%/80%
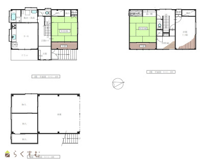
建物面積 1階 52.37㎡/ 2階 52.39㎡/ 3階 50.05㎡/ 計 154.81㎡ /46.83坪
土地面積 165㎡ /49.91坪
築年月 1980年10月(築45年)
入居(引き渡し)時期 随時入居(引き渡し)可
用途地域 第1種低層住居専用地域 地目 宅地  (現状:宅地)
都市計画 市街化区域 学校区 大町小学校(260m)
形状 間口 9.2m × 奥行 18m 道路 上越市道 幅員6.4m 除雪道路
私道 - その他の制限 準防火地域
  • 上越市西城町3丁目 戸建
    越乃エステート株式会社
  • この物件を問い合わせる/無料
  • TEL: 025-520-6623

物件詳細情報

所在階/階数 - 号室 -
販売価格 12,800,000円 方位
間取り 3DK (和室:8畳、8畳) (洋室:7.5)
DK8
2FにDEN(小部屋3帖)有り。
専有面積 - バルコニー面積 -
その他面積 - 駐車場 -
管理費 - 修繕積立金 -
現況 空家
仲介手数料 なし
固定資産税 64,118円
利用制限 -
設備 日当り良好、閑静な住宅街、スーパー近く、新築時図面あり、建物確認・完了検査済証あり、駐車3台以上可能、南向き、TVインターホン、システムキッチン、3口コンロ、追いだき機能付き、バス1坪以上、温水洗浄便座、トイレ2か所以上、シャワー付き洗面台、エアコンあり、都市ガス、上水道、下水道、内装リフォーム済み
取引態様 売主
備考 ・住宅の2階からは妙高山や南葉山も眺望できます。・駐車は車庫2台分(高さ1.6m)及び車庫前に1台分。 ・リフォーム内容「・キッチン新設・トイレ2カ所交換・洗面台新設・内装(床壁天井の一部張替)・照明器具一部新設・TVモニター付きインターホン新設・エアコン1台新設・畳表替え・車庫内結露防止塗装・屋根笠木板金工事」。 消雪用井戸ポンプ有(車庫前&通路用)。
取り扱い会社

越乃エステート株式会社

新潟県上越市春日野1丁目7番4号オフィスYAMADA-B号

情報登録日 2025/12/12 次回更新予定日 2025/12/30
取引条件有効期限 2026/03/12
  • 上越市西城町3丁目 戸建
    越乃エステート株式会社
  • この物件を問い合わせる/無料
  • TEL: 025-520-6623

この物件の地図・周辺情報・行政情報

この物件の周辺情報・行政情報を詳しく見る
【周辺情報】
物件の近くにあるコンビニや銀行・学校など、アイコン付のマップで詳しく表示できます!
【行政情報】
水道料や下水道料・ガス料金など、暮らしに関係のある情報を表示しています。
ナルス 北城店まで550m
(医)知命堂病院まで550m
藤林内科医院まで430m
第四北越銀行 高田営業部まで420m
(株)八十二銀行 ローンプラザ上越まで430m
高田郵便局まで480m
もみじ幼稚園まで220m
カトリック天使幼稚園まで140m
附属小学校まで350m
上越市立高田幼稚園まで650m
セブンイレブン上越北城店まで700m

※カメラのアイコンがある場合は、マウスをポイントするとその施設の画像がご覧いただけます。


担当取扱い店舗情報

取扱い店舗画像
越乃エステート株式会社
TEL: 025-520-6623
所在地: 新潟県上越市春日野1丁目7番4号オフィスYAMADA-B号
交通: 春日山駅より徒歩8分
営業時間: 9:00~17:00/定休日:水・日
免許番号: 新潟県知事(1)第5592号 この会社の情報を詳しく見る
所属団体名: 公益社団法人 全日本不動産協会 新潟県本部
取引態様: 売主
ホームページ: https://koshino-e.com