物件掲載企業数:299|賃貸物件:3,633件|売買物件:3,316件|今週の登録物件:223
閲覧中のブラウザ(インターネットエクスプローラー)は非推奨ブラウザです。
物件が正しく表示されなかったり、正しく検索されない場合があります。最新のブラウザ(Google Chrome・Edgeなど)にてご利用お願いいたします。
  

新潟県長岡市中島3丁目4-4付近 新築一戸建て 3LDK 29,800,000円の物件情報

【ウオロク長岡店・大手大橋近く】オール電化×高気密高断熱住宅 ■前面道路に消雪パイプ有 ■駐車3台可能 ■熱交換換気扇&二重断熱で快適な住まい ■寒冷地用エアコン2台付

物件名/所在地 詳細 価格
( 新築住宅)長岡市中島
新潟県長岡市中島3丁目4-4付近
  • 土地面積
    :133.6㎡ /40.41坪
  • 建物面積
    :87.35㎡ /26.42坪
  • 間取り
    :3LDK
  • 築年月
    :2026年4月
29,800,000
  • ( 新築住宅)長岡市中島
    新潟土地建物販売センター 株式会社
  • この物件を問い合わせる/無料
  • TEL: 0258-89-8245

物件画像

外観 間取り
物件画像
※画像クリックで拡大表示
洗練されたスクエアフォルムが魅力です。駐車は3台可能。
物件画像
※画像クリックで拡大表示
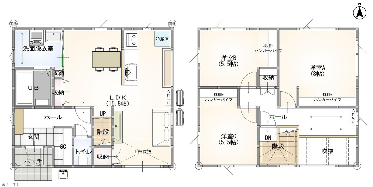
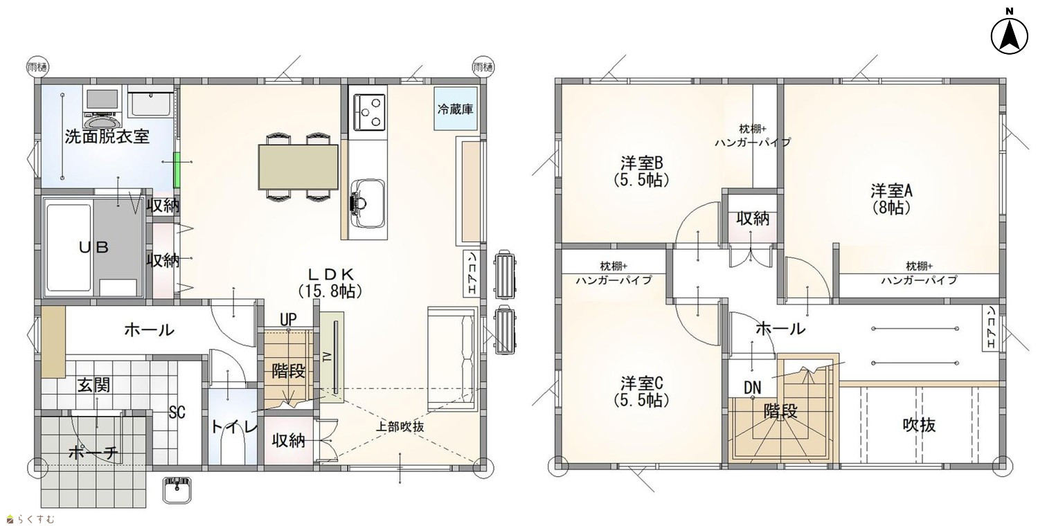
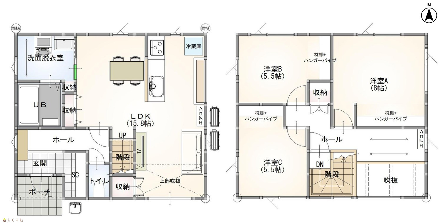
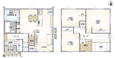
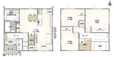
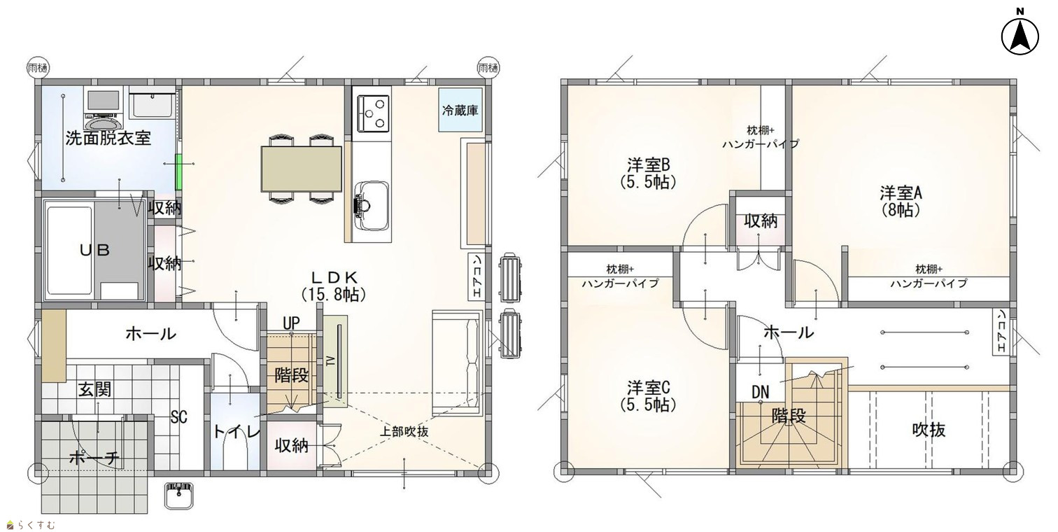
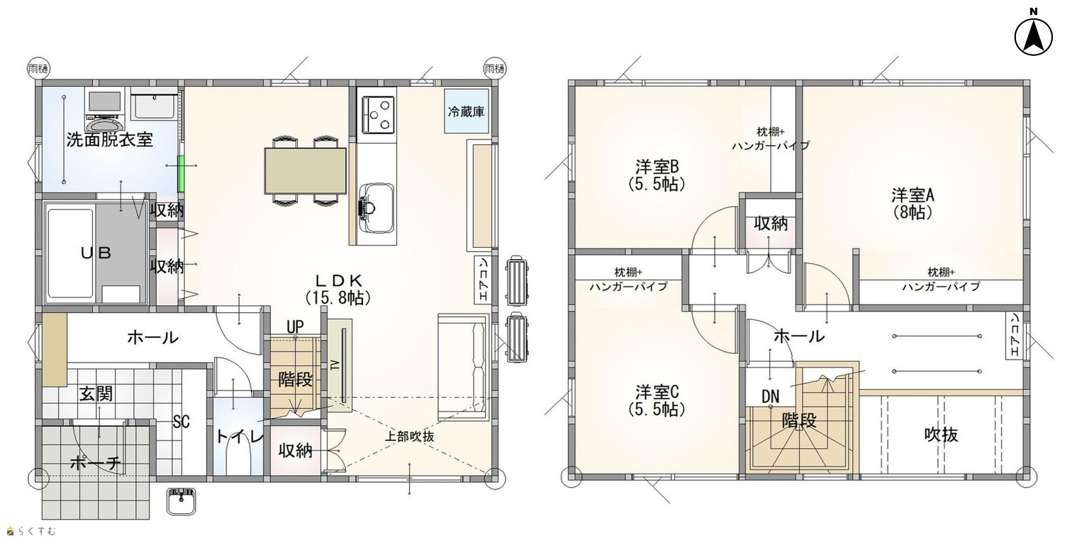
収納充実でスッキリ暮らせる間取り!物干し機付きで家事動線も◎
詳細画像


物件概要

ウオロク長岡店や大手大橋が近く、暮らしやすい立地に収納豊富な3LDK住宅が登場!各階に寒冷地仕様エアコンを完備し、冬も快適に過ごせます♪周辺環境とあわせて、ぜひ現地をご確認ください(^^♪
物件コード 00239-200603
物件名 ( 新築住宅)長岡市中島
交通 駅:上越新幹線 長岡駅から徒歩14分、バス:中島2丁目から徒歩3分
物件所在地 新潟県長岡市中島3丁目4-4付近
物件種別 新築一戸建て
構造 木造 階建 地上2階建
建ぺい率/容積率 60%/200%
建物面積 計 87.35㎡ /26.42坪
土地面積 133.6㎡ /40.41坪
築年月 2026年4月完成予定
入居(引き渡し)時期 相談
用途地域 第1種住居地域 地目 宅地
都市計画 市街化区域 学校区 中島小学校(300m)・東中学校(1,100m)
形状 - 道路 南側3.8m公道
私道 - その他の制限 法22条
  • ( 新築住宅)長岡市中島
    新潟土地建物販売センター 株式会社
  • この物件を問い合わせる/無料
  • TEL: 0258-89-8245

物件詳細情報

所在階/階数 - 号室 -
販売価格 29,800,000円 方位 南東
間取り 3LDK (洋室:8、5.5、5.5)
LDK15.8
専有面積 - バルコニー面積 -
その他面積 - 駐車場 -
管理費 - 修繕積立金 -
現況 空家
仲介手数料 1,049,400円
利用制限 -
設備 整形地、日当り良好、閑静な住宅街、スーパー近く、LDK15畳以上、全室フローリング、天井高2.5m以上、駐車場3台以上、南向き、TVインターホン、複層ガラス、システムキッチン、カウンターキッチン、IHクッキングヒーター、3口コンロ、追いだき機能付き、バス1坪以上、温水洗浄便座、シャワー付き洗面台、エアコン、24時間換気システム、オール電化、省エネ給湯、高気密高断熱住宅、上水道、下水道、電気、全居室収納あり、シューズインクローゼット、シューズBOX、照明器具付き、バリアフリー
取引態様 一般
備考 【教育】
中島小学校 約300m 徒歩約4分
東中学校 約1100m 徒歩約14分

【交通】
JR上越新幹線 長岡駅 徒歩約14分
越後交通バス 中島2丁目 徒歩約3分

-物件情報-
■空気環境を整える24時間熱交換換気扇を搭載
■お部屋の温度を逃がさない北海道仕様の二重断熱
■シューズクローク・リビング収納・ホール収納でお部屋がスッキリ片付きます
■開放的で明るい吹き抜けのあるLDK
■2階ホールにはホスクリーン付き!天候に左右されずお洗濯可能
■中島小学校まで徒歩4分、お子様の登下校も安心の距離
取り扱い会社

新潟土地建物販売センター 株式会社

新潟県長岡市台町1-7-331階

情報登録日 2025/10/22 次回更新予定日 2025/11/13
取引条件有効期限 2027/12/31
  • ( 新築住宅)長岡市中島
    新潟土地建物販売センター 株式会社
  • この物件を問い合わせる/無料
  • TEL: 0258-89-8245

この物件の地図・周辺情報・行政情報

この物件の周辺情報・行政情報を詳しく見る
【周辺情報】
物件の近くにあるコンビニや銀行・学校など、アイコン付のマップで詳しく表示できます!
【行政情報】
水道料や下水道料・ガス料金など、暮らしに関係のある情報を表示しています。
セブン-イレブン 長岡日赤町1丁目店(コンビニ)まで270m
ウオロク 長岡店(スーパー)まで380m

※カメラのアイコンがある場合は、マウスをポイントするとその施設の画像がご覧いただけます。


担当取扱い店舗情報

取扱い店舗画像
新潟土地建物販売センター 株式会社
TEL: 0258-89-8245
所在地: 新潟県長岡市台町1-7-331階
交通: 長岡駅
営業時間: 9:00~18:00/定休日:なし
免許番号: 新潟県知事(3)第5151号 この会社の情報を詳しく見る
所属団体名: 公社 新潟県宅地建物取引協会 新潟支部
取引態様: 一般
ホームページ: https://niigata-tochitate.jp/