| ウオロク長岡店や大手大橋が近く、暮らしやすい立地に収納豊富な3LDK住宅が登場!各階に寒冷地仕様エアコンを完備し、冬も快適に過ごせます♪周辺環境とあわせて、ぜひ現地をご確認ください(^^♪ | |||
| 物件コード | 00239-200603 | ||
|---|---|---|---|
| 物件名 | ( 新築住宅)長岡市中島 | ||
| 交通 | 駅:上越新幹線 長岡駅から徒歩14分、バス:中島2丁目から徒歩3分 | ||
| 物件所在地 | 新潟県長岡市中島3丁目4-4付近 | ||
| 物件種別 | 新築一戸建て | ||
| 構造 | 木造 | 階建 | 地上2階建 |
| 建ぺい率/容積率 | 60%/200% | ||
| 建物面積 | 計 87.35㎡ /26.42坪 | ||
| 土地面積 | 133.6㎡ /40.41坪 | ||
| 築年月 | 2026年4月(築1ヶ月) | ||
| 入居時期 | 相談 | ||
| 用途地域 | 第1種住居地域 | 地目 | 宅地 |
| 都市計画 | 市街化区域 | 学校区 | 中島小学校(300m)・東中学校(1,100m) |
| 形状 | - | 道路 | 南側3.8m公道 |
| 私道 | - | ||
| 所在階/階数 | - | 号室 | - |
|---|---|---|---|
| 販売価格 | 29,800,000円 | 方位 | 南東 |
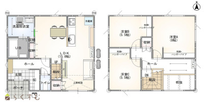
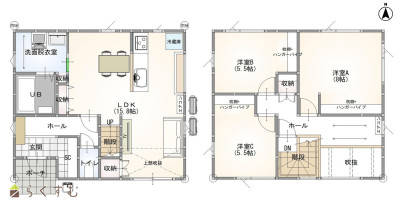
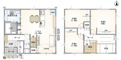
| 間取り |
3LDK (洋室:8、5.5、5.5) LDK15.8 |
||
| 専有面積 | - | バルコニー面積 | - |
| その他面積 | - | 駐車場 | - |
| 管理費 | - | 修繕積立金 | - |
| 現況 | 空家 | ||
| 仲介手数料 | 1,049,400円 | ||
| 利用制限 | - | ||
| 設備 | 整形地、日当り良好、閑静な住宅街、スーパー近く、LDK15畳以上、全室フローリング、天井高2.5m以上、駐車場3台以上、南向き、TVインターホン、複層ガラス、システムキッチン、カウンターキッチン、IHクッキングヒーター、3口コンロ、追いだき機能付き、バス1坪以上、温水洗浄便座、シャワー付き洗面台、エアコン、24時間換気システム、オール電化、省エネ給湯、高気密高断熱住宅、上水道、下水道、電気、全居室収納あり、シューズインクローゼット、シューズBOX、照明器具付き、バリアフリー | ||
| 取引態様 | 一般 | ||
| 備考 | 【教育】 中島小学校 約300m 徒歩約4分 東中学校 約1100m 徒歩約14分 【交通】 JR上越新幹線 長岡駅 徒歩約14分 越後交通バス 中島2丁目 徒歩約3分 -物件情報- ■空気環境を整える24時間熱交換換気扇を搭載 ■お部屋の温度を逃がさない北海道仕様の二重断熱 ■シューズクローク・リビング収納・ホール収納でお部屋がスッキリ片付きます ■開放的で明るい吹き抜けのあるLDK ■2階ホールにはホスクリーン付き!天候に左右されずお洗濯可能 ■中島小学校まで徒歩4分、お子様の登下校も安心の距離 |
||
| 情報登録日 | 2026/05/02 | 次回更新予定日 | 2026/05/21 |
| 取引条件有効期限 | 2027/12/31 | ||
|
|
|
|
|
| TEL: | 0258-89-8245 |
|---|---|
| 所在地: | 新潟県長岡市台町1-7-331階 |
| 交通: | 長岡駅 |
| 営業時間: | 9:00~18:00/定休日:なし |
| 免許番号: | 新潟県知事(3)第5151号 |
| 所属団体名: | 公社 新潟県宅地建物取引協会 新潟支部 |
| 取引態様: | 一般 |