物件掲載企業数:301|賃貸物件:3,175件|売買物件:3,245件|今週の登録物件:72
閲覧中のブラウザ(インターネットエクスプローラー)は非推奨ブラウザです。
物件が正しく表示されなかったり、正しく検索されない場合があります。最新のブラウザ(Google Chrome・Edgeなど)にてご利用お願いいたします。
  

新潟県長岡市下条町1462-2 中古一戸建て 6DK 12,000,000円の物件情報

広い敷地、2世帯同居も可能なゆとりのある間取り、小学校まで225mの閑静な住宅街、価格については応談可能ですので是非ご検討ください。

物件名/所在地 詳細 価格
下条町中古住宅
新潟県長岡市下条町1462-2
  • 土地面積
    :1,119.94㎡ /338.78坪
  • 建物面積
    :279.18㎡ /84.45坪
  • 間取り
    :6DK
  • 築年月
    :1988年4月
12,000,000
  • 下条町中古住宅
    有限会社 しのだ不動産
  • この物件を問い合わせる/無料
  • TEL: 0258-33-6656

物件画像

外観 間取り
物件画像
※画像クリックで拡大表示
外観
物件画像
※画像クリックで拡大表示
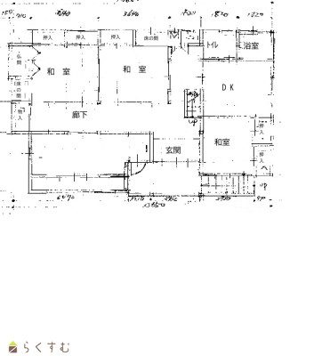
間取り
詳細画像


物件概要

広い敷地、2世帯同居も可能なゆとりのある間取り、小学校まで225mの閑静な住宅街、価格については応談可能ですので是非ご検討ください。
物件コード 00068-200107
物件名 下条町中古住宅
交通 駅:信越線 宮内駅から徒歩25分、バス:NTT前から徒歩3分
物件所在地 新潟県長岡市下条町1462-2
物件種別 中古一戸建て
構造 木造鉄筋コン 階建 地上3階建
建ぺい率/容積率 70%/200%
建物面積 1階 92.31㎡/ 2階 122.28㎡/ 3階 64.59㎡/ 計 279.18㎡ /84.45坪
土地面積 1,119.94㎡ /338.78坪
築年月 1988年4月(築38年)
入居(引き渡し)時期 相談
用途地域 用途の指定のない地域 地目 雑種他  (現状:宅地)
都市計画 市街化調整区域 学校区 上組小学校(227m)・宮内中学校(1,809m)
形状 間口 20m × 奥行 55m 道路 長岡市道
私道 - その他の制限 -
  • 下条町中古住宅
    有限会社 しのだ不動産
  • この物件を問い合わせる/無料
  • TEL: 0258-33-6656

物件詳細情報

所在階/階数 - 号室 -
販売価格 12,000,000円 方位 -
間取り 6DK
専有面積 - バルコニー面積 -
その他面積 - 駐車場 -
管理費 - 修繕積立金 -
現況 -
仲介手数料 462,000円
利用制限 -
設備 -
取引態様 一般
備考 -
取り扱い会社

有限会社 しのだ不動産

新潟県長岡市新町3丁目3番19号

情報登録日 2026/03/16 次回更新予定日 2026/05/21
取引条件有効期限 2026/06/30
  • 下条町中古住宅
    有限会社 しのだ不動産
  • この物件を問い合わせる/無料
  • TEL: 0258-33-6656

この物件の地図・周辺情報・行政情報

この物件の周辺情報・行政情報を詳しく見る
【周辺情報】
物件の近くにあるコンビニや銀行・学校など、アイコン付のマップで詳しく表示できます!
【行政情報】
水道料や下水道料・ガス料金など、暮らしに関係のある情報を表示しています。

担当取扱い店舗情報

取扱い店舗画像
有限会社 しのだ不動産
TEL: 0258-33-6656
所在地: 新潟県長岡市新町3丁目3番19号
交通: 北長岡駅
営業時間: 8:30~18:00/定休日:日曜日、祝祭日
免許番号: 新潟県知事(5)第4667号 この会社の情報を詳しく見る
所属団体名: 新潟県宅地建物取引業協会 長岡支部
取引態様: 一般