| 広い敷地、2世帯同居も可能なゆとりのある間取り、小学校まで225mの閑静な住宅街、価格については応談可能ですので是非ご検討ください。 | |||
| 物件コード | 00068-200107 | ||
|---|---|---|---|
| 物件名 | 下条町中古住宅 | ||
| 交通 | 駅:信越線 宮内駅から徒歩25分、バス:NTT前から徒歩3分 | ||
| 物件所在地 | 新潟県長岡市下条町1462-2 | ||
| 物件種別 | 中古一戸建て | ||
| 構造 | 木造鉄筋コン | 階建 | 地上3階建 |
| 建ぺい率/容積率 | 70%/200% | ||
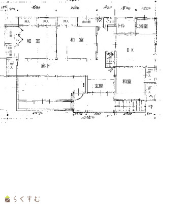
| 建物面積 | 1階 92.31㎡/ 2階 122.28㎡/ 3階 64.59㎡/ 計 279.18㎡ /84.45坪 | ||
| 土地面積 | 1,119.94㎡ /338.78坪 | ||
| 築年月 | 1988年4月(築38年) | ||
| 入居時期 | 相談 | ||
| 用途地域 | 用途の指定のない地域 | 地目 | 雑種他 (現状:宅地) |
| 都市計画 | 市街化調整区域 | 学校区 | 上組小学校(227m)・宮内中学校(1,809m) |
| 形状 | 間口 20m × 奥行 55m | 道路 | 長岡市道 |
| 私道 | - | ||
| 所在階/階数 | - | 号室 | - |
|---|---|---|---|
| 販売価格 | 12,000,000円 | 方位 | - |
| 間取り | 6DK | ||
| 専有面積 | - | バルコニー面積 | - |
| その他面積 | - | 駐車場 | - |
| 管理費 | - | 修繕積立金 | - |
| 現況 | - | ||
| 仲介手数料 | 462,000円 | ||
| 利用制限 | - | ||
| 設備 | - | ||
| 取引態様 | 一般 | ||
| 備考 | - | ||
| 情報登録日 | 2026/03/16 | 次回更新予定日 | 2026/05/21 |
| 取引条件有効期限 | 2026/06/30 | ||
|
|
|
|
| TEL: | 0258-33-6656 |
|---|---|
| 所在地: | 新潟県長岡市新町3丁目3番19号 |
| 交通: | 北長岡駅 |
| 営業時間: | 8:30~18:00/定休日:日曜日、祝祭日 |
| 免許番号: | 新潟県知事(5)第4667号 |
| 所属団体名: | 新潟県宅地建物取引業協会 長岡支部 |
| 取引態様: | 一般 |