物件掲載企業数:299|賃貸物件:2,912件|売買物件:3,228件|今週の登録物件:348
閲覧中のブラウザ(インターネットエクスプローラー)は非推奨ブラウザです。
物件が正しく表示されなかったり、正しく検索されない場合があります。最新のブラウザ(Google Chrome・Edgeなど)にてご利用お願いいたします。
  

新潟県三条市荒町1丁目9-12 中古一戸建て 7DK 2,500,000円の物件情報

車庫付き(軽自動車専用)!上下水道!都市ガス引込有!

物件名/所在地 詳細 価格
◆中古戸建◆三条市荒町一丁目
新潟県三条市荒町1丁目9-12
  • 土地面積
    :199.89㎡ /60.46坪
  • 建物面積
    :152.5㎡ /46.13坪
  • 間取り
    :7DK
  • 築年月
    :1967年8月
2,500,000
  • ◆中古戸建◆三条市荒町一丁目
    株式会社 ユタカ不動産
  • この物件を問い合わせる/無料
  • TEL: 0256-35-5825

物件画像

外観 間取り
物件画像
※画像クリックで拡大表示
外観
物件画像
※画像クリックで拡大表示
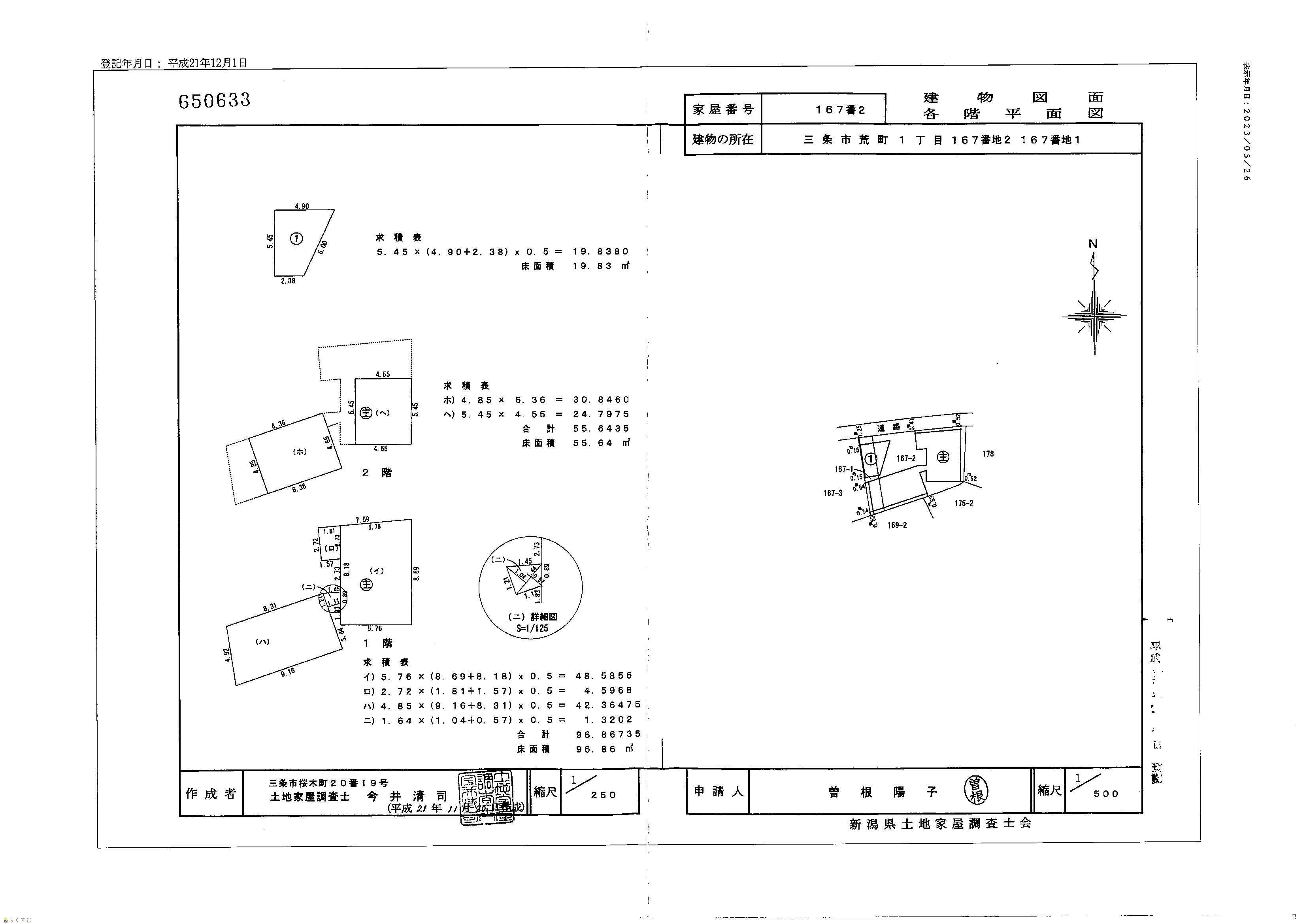
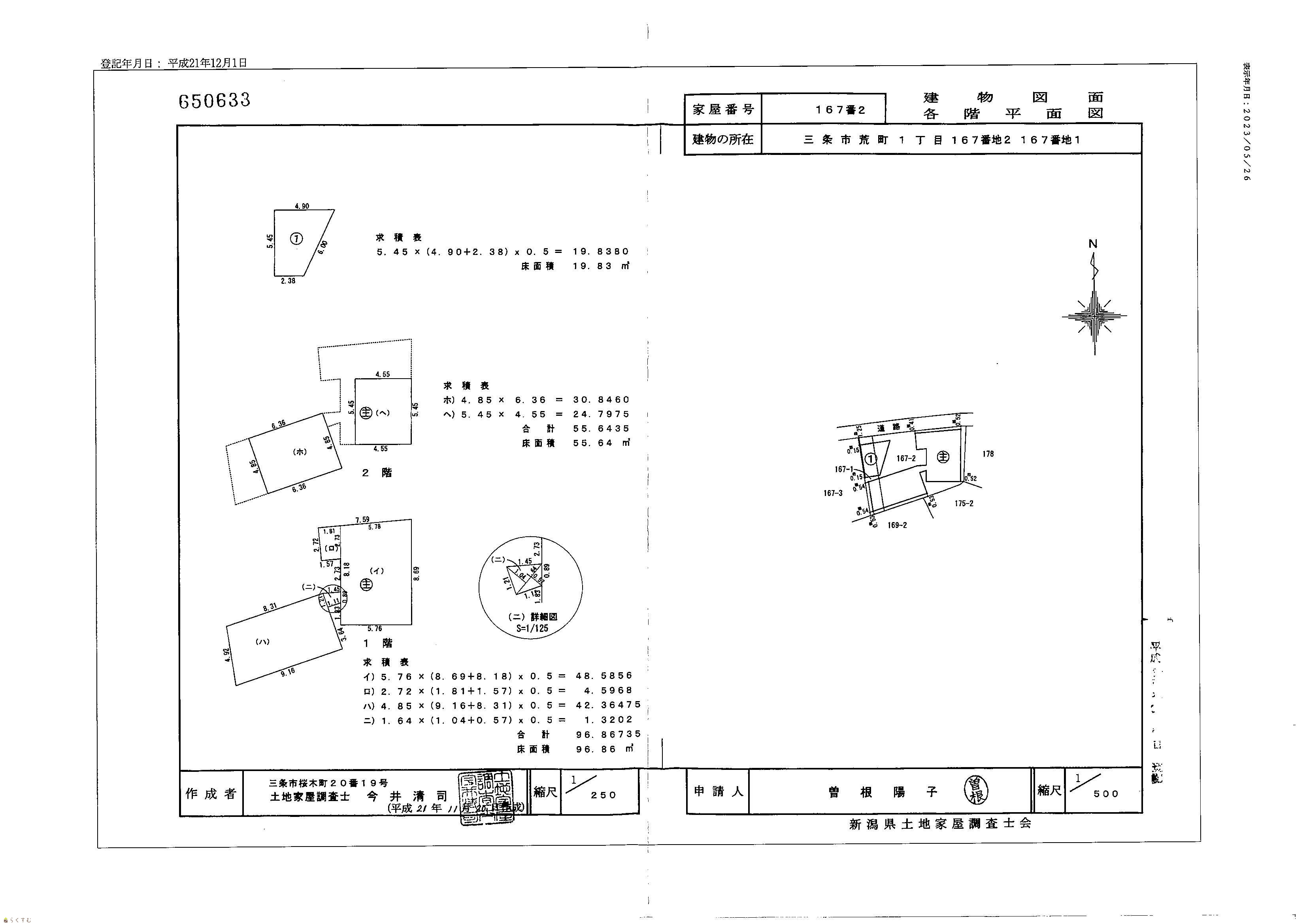
建物図面
詳細画像


物件概要

2026年3月18日300万円→250万円に
物件コード 00052-200199
物件名 ◆中古戸建◆三条市荒町一丁目
交通 駅:弥彦線 北三条駅から徒歩11分、バス:荒町1丁目から徒歩1分
物件所在地 新潟県三条市荒町1丁目9-12
物件種別 中古一戸建て
構造 木造 階建 地上2階建
建ぺい率/容積率 60%/200%
建物面積 1階 96.86㎡/ 2階 55.64㎡/ 計 152.5㎡ /46.13坪
土地面積 199.89㎡ /60.46坪
築年月 1967年8月(築58年)
入居(引き渡し)時期 相談
用途地域 第1種住居地域 地目 宅地  (現状:宅地)
都市計画 非線引き都市計画区域 学校区 裏館小学校(1,087m)・第三中学校(720m)
形状 - 道路 北側:三条市道荒町中通り1号線 幅員2.2m
私道 - その他の制限 再建築の場合、道路中心線より2m以上のセットバックが必要です。
  • ◆中古戸建◆三条市荒町一丁目
    株式会社 ユタカ不動産
  • この物件を問い合わせる/無料
  • TEL: 0256-35-5825

物件詳細情報

所在階/階数 - 号室 -
販売価格 2,500,000円 方位 -
間取り 7DK
専有面積 - バルコニー面積 -
その他面積 19.83㎡ /5.99坪  車庫 駐車場 -
管理費 - 修繕積立金 -
現況 空家
仲介手数料 330,000円
利用制限 -
設備 閑静な住宅街、都市ガス、上水道、下水道
取引態様 専任
備考 準防火地域・特別工業地域・居住誘導区域・都市機能誘導区域
取り扱い会社

株式会社 ユタカ不動産

新潟県三条市旭町1丁目1-19-3ユタカビル

情報登録日 2026/03/18 次回更新予定日 2026/04/05
取引条件有効期限 2024/12/01
  • ◆中古戸建◆三条市荒町一丁目
    株式会社 ユタカ不動産
  • この物件を問い合わせる/無料
  • TEL: 0256-35-5825

この物件の地図・周辺情報・行政情報

この物件の周辺情報・行政情報を詳しく見る
【周辺情報】
物件の近くにあるコンビニや銀行・学校など、アイコン付のマップで詳しく表示できます!
【行政情報】
水道料や下水道料・ガス料金など、暮らしに関係のある情報を表示しています。

担当取扱い店舗情報

取扱い店舗画像
株式会社 ユタカ不動産
TEL: 0256-35-5825
所在地: 新潟県三条市旭町1丁目1-19-3ユタカビル
交通: 東三条駅
営業時間: 9:00~18:00/定休日:火曜・祭日
免許番号: 新潟見知事(9)第3203号 この会社の情報を詳しく見る
所属団体名: 新潟県宅地建物取引協会 三条支部
取引態様: 専任
ホームページ: http://www.yutakafudousan.com