物件掲載企業数:299|賃貸物件:2,911件|売買物件:3,224件|今週の登録物件:320
閲覧中のブラウザ(インターネットエクスプローラー)は非推奨ブラウザです。
物件が正しく表示されなかったり、正しく検索されない場合があります。最新のブラウザ(Google Chrome・Edgeなど)にてご利用お願いいたします。
  

新潟県小千谷市東栄1丁目1098番2 中古一戸建て 5LDK 39,800,000円の物件情報

住宅+レストラン 【価格改定しました】

物件名/所在地 詳細 価格
小千谷市 1F住宅+2Fレストラン
新潟県小千谷市東栄1丁目1098番2
  • 土地面積
    :481.99㎡ /145.8坪
  • 建物面積
    :137.33㎡ /41.54坪
  • 間取り
    :5LDK
  • 築年月
    :1986年7月
39,800,000
  • 小千谷市 1F住宅+2Fレストラン
    ふどうさんの相談所 (ライフデザイン合同会社 イオン長岡店)
  • この物件を問い合わせる/無料
  • TEL: 0258-94-4370

物件画像

外観 間取り
物件画像
※画像クリックで拡大表示
1Fリビングルーム
物件画像
※画像クリックで拡大表示
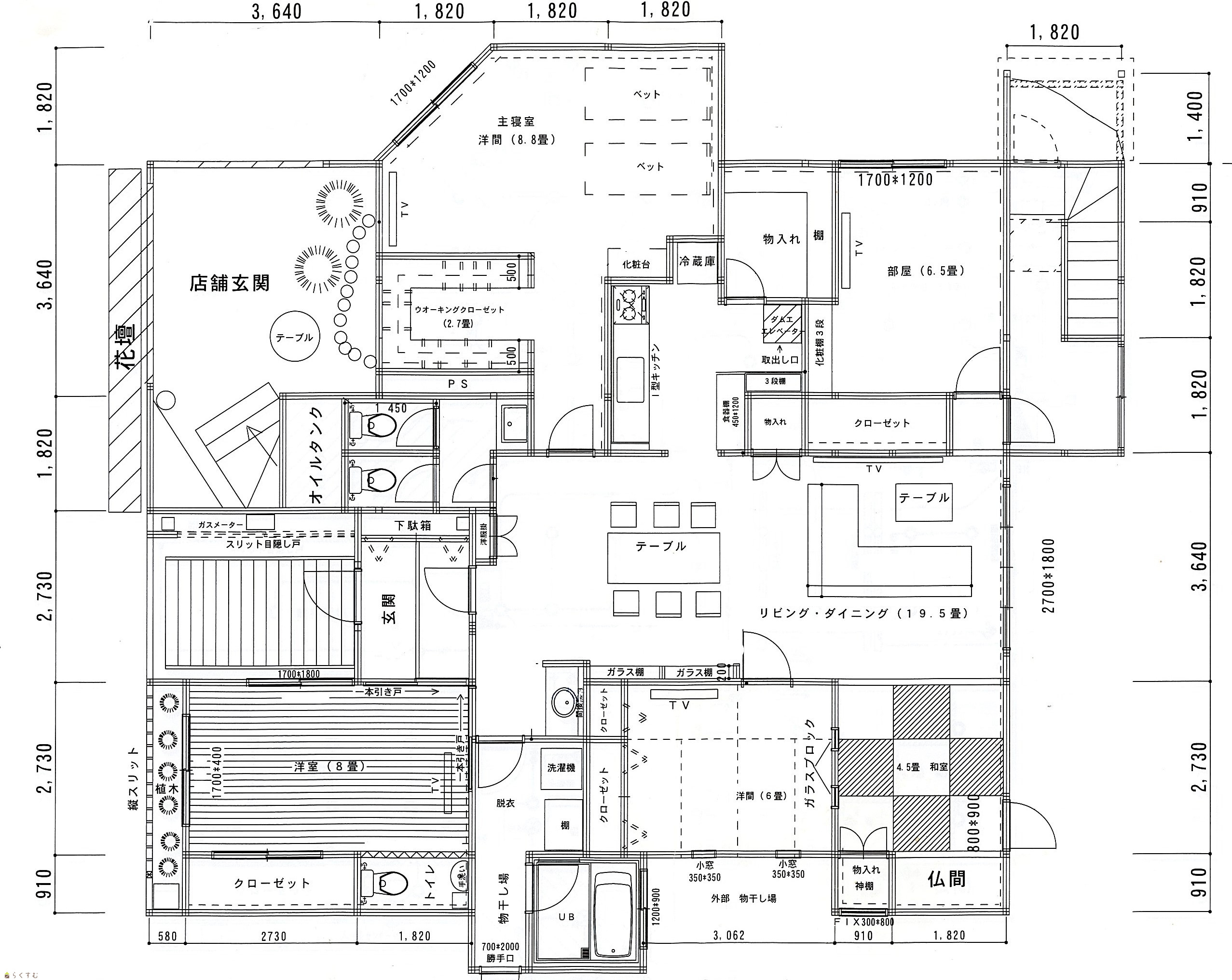
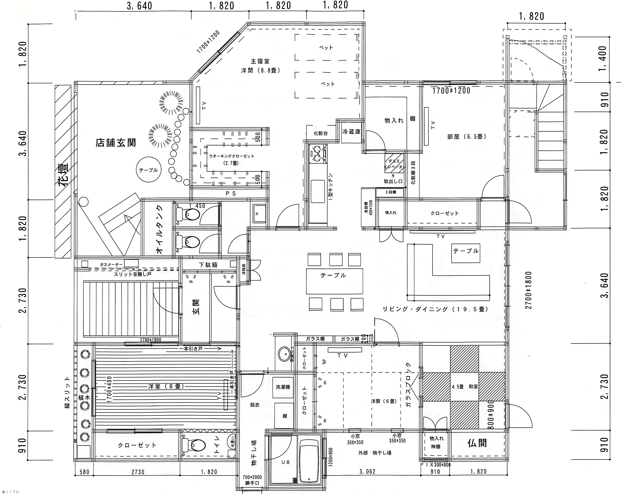
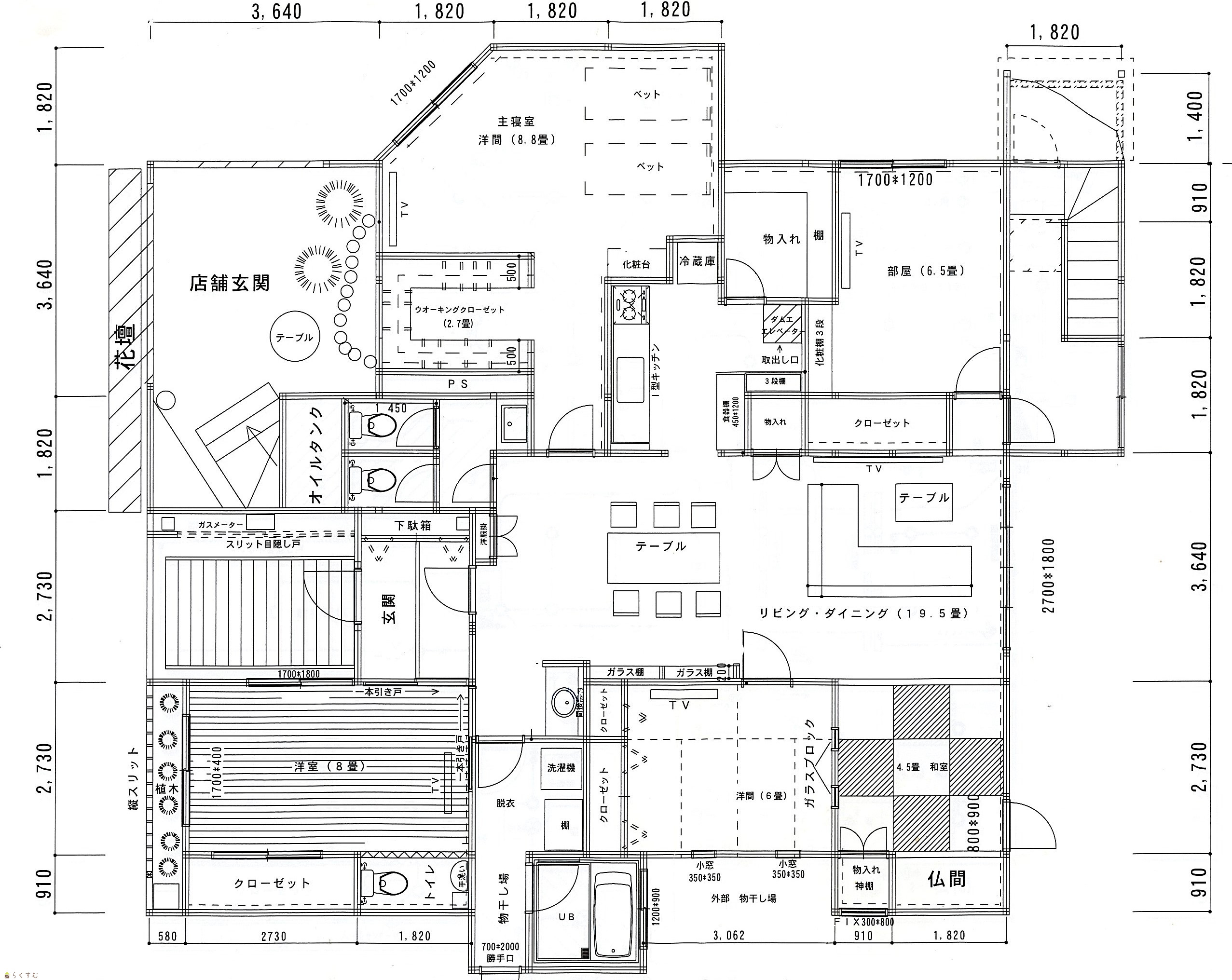
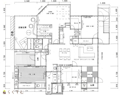
2F 住宅平面図
詳細画像


物件概要

物件コード 00039-200234
物件名 小千谷市 1F住宅+2Fレストラン
交通 駅:上越線 小千谷駅から徒歩9分、バス:小千谷車庫前から徒歩3分
物件所在地 新潟県小千谷市東栄1丁目1098番2
物件種別 中古一戸建て
構造 木造 階建 地上2階建
建ぺい率/容積率 60%/200%
建物面積 1階 60.22㎡/ 2階 77.11㎡/ 計 137.33㎡ /41.54坪
土地面積 481.99㎡ /145.8坪
築年月 1986年7月(築39年)
入居(引き渡し)時期 相談
用途地域 第1種中高層住居専用地域 地目 宅地  (現状:宅地)
都市計画 非線引き都市計画区域 学校区 東小千谷小学校(166m)・東小千谷中学校(474m)
形状 間口 19m × 奥行 40m 道路 市道
私道 - その他の制限 -
  • 小千谷市 1F住宅+2Fレストラン
    ふどうさんの相談所 (ライフデザイン合同会社 イオン長岡店)
  • この物件を問い合わせる/無料
  • TEL: 0258-94-4370

物件詳細情報

所在階/階数 - 号室 -
販売価格 39,800,000円 方位 -
間取り 5LDK (和室:4.5畳) (洋室:8.8、8、6.5、6)
19.5
専有面積 - バルコニー面積 -
その他面積 77.11㎡ /23.32坪  2階レストラン部分(建物未登記部分があります) 駐車場 -
管理費 - 修繕積立金 -
現況 居住中
仲介手数料 1,379,400円
利用制限 -
設備 日当り良好、閑静な住宅街、LDK15帖以上、駐車3台以上可能、駐車場融雪設備あり、バス1坪以上、トイレ2か所以上、上水道、下水道、事業向け
取引態様 専任
備考 -
取り扱い会社

ふどうさんの相談所 (ライフデザイン合同会社 イオン長岡店)

新潟県長岡市古正寺1-249-1イオン長岡店3F

情報登録日 2026/03/15 次回更新予定日 2026/04/06
取引条件有効期限 2026/04/30
  • 小千谷市 1F住宅+2Fレストラン
    ふどうさんの相談所 (ライフデザイン合同会社 イオン長岡店)
  • この物件を問い合わせる/無料
  • TEL: 0258-94-4370

この物件の地図・周辺情報・行政情報

この物件の周辺情報・行政情報を詳しく見る
【周辺情報】
物件の近くにあるコンビニや銀行・学校など、アイコン付のマップで詳しく表示できます!
【行政情報】
水道料や下水道料・ガス料金など、暮らしに関係のある情報を表示しています。

担当取扱い店舗情報

取扱い店舗画像
ふどうさんの相談所 (ライフデザイン合同会社 イオン長岡店)
TEL: 0258-94-4370
所在地: 新潟県長岡市古正寺1-249-1イオン長岡店3F
交通: 長岡駅
営業時間: 10:00~20:00/定休日:年末年始・特別日はお休みいたします
免許番号: 新潟県知事(3)第5090号 この会社の情報を詳しく見る
所属団体名: 全日本不動産協会 新潟県本部
取引態様: 専任
ホームページ: http://life-dn.com