物件掲載企業数:299|賃貸物件:2,911件|売買物件:3,225件|今週の登録物件:353
閲覧中のブラウザ(インターネットエクスプローラー)は非推奨ブラウザです。
物件が正しく表示されなかったり、正しく検索されない場合があります。最新のブラウザ(Google Chrome・Edgeなど)にてご利用お願いいたします。
  

新潟県長岡市関原町1丁目2322-3 売土地・分譲地 700,000円の物件情報

宅地内、無料井戸水有り、畑使用向きです。

物件名/所在地 詳細 価格
関原町1丁目売地
新潟県長岡市関原町1丁目2322-3
  • 土地面積
    :113㎡ /34.18坪
  • 坪単価
    :20,479円/坪
  • 建ぺい率
    :70%
  • 容積率
    :200%
700,000
  • 関原町1丁目売地
    青旺不動産 株式会社
  • この物件を問い合わせる/無料
  • TEL: 0258-47-8113

物件画像

外観 間取り
物件画像
※画像クリックで拡大表示
南東側
物件画像
※画像クリックで拡大表示
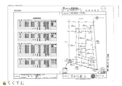
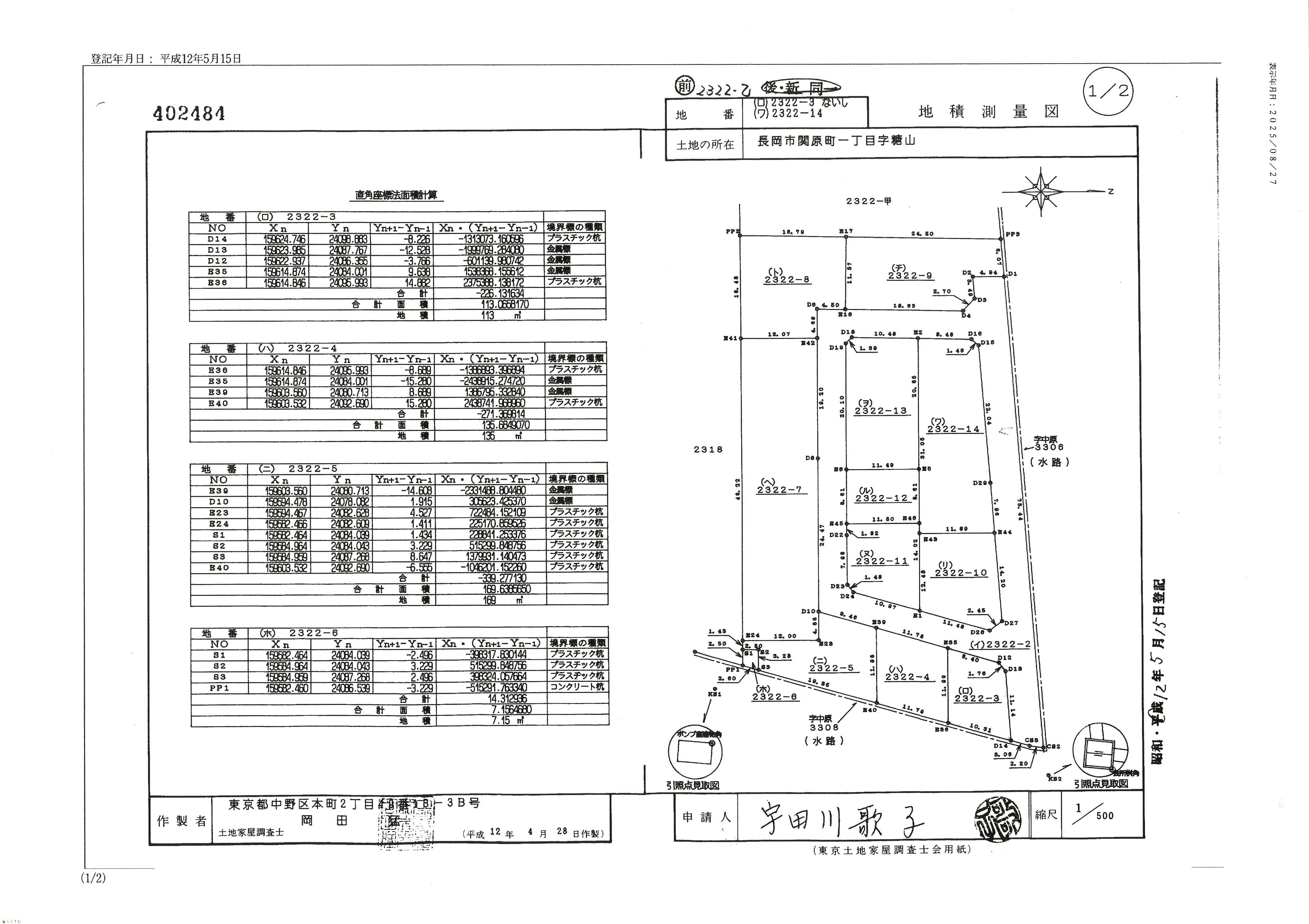
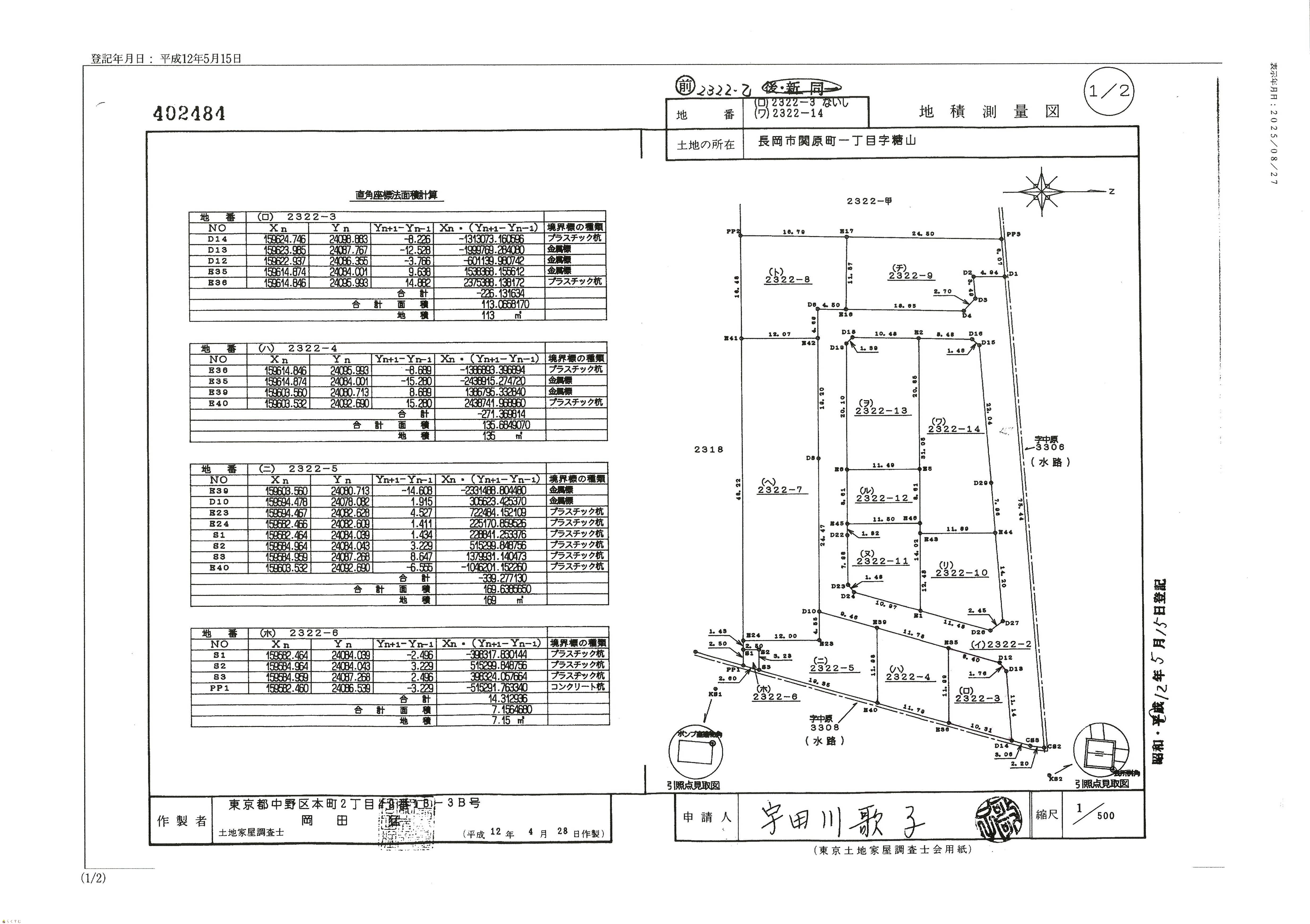
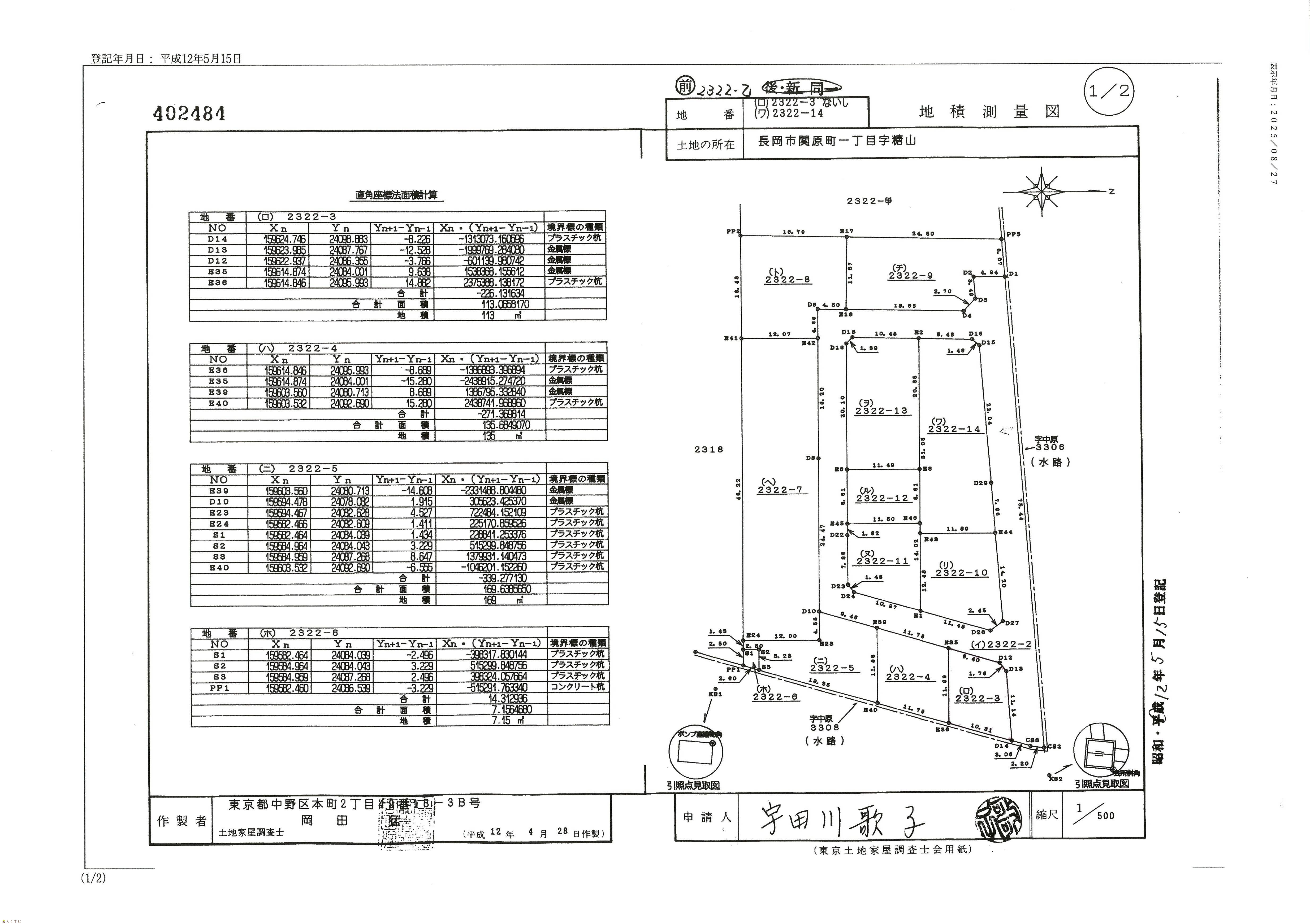
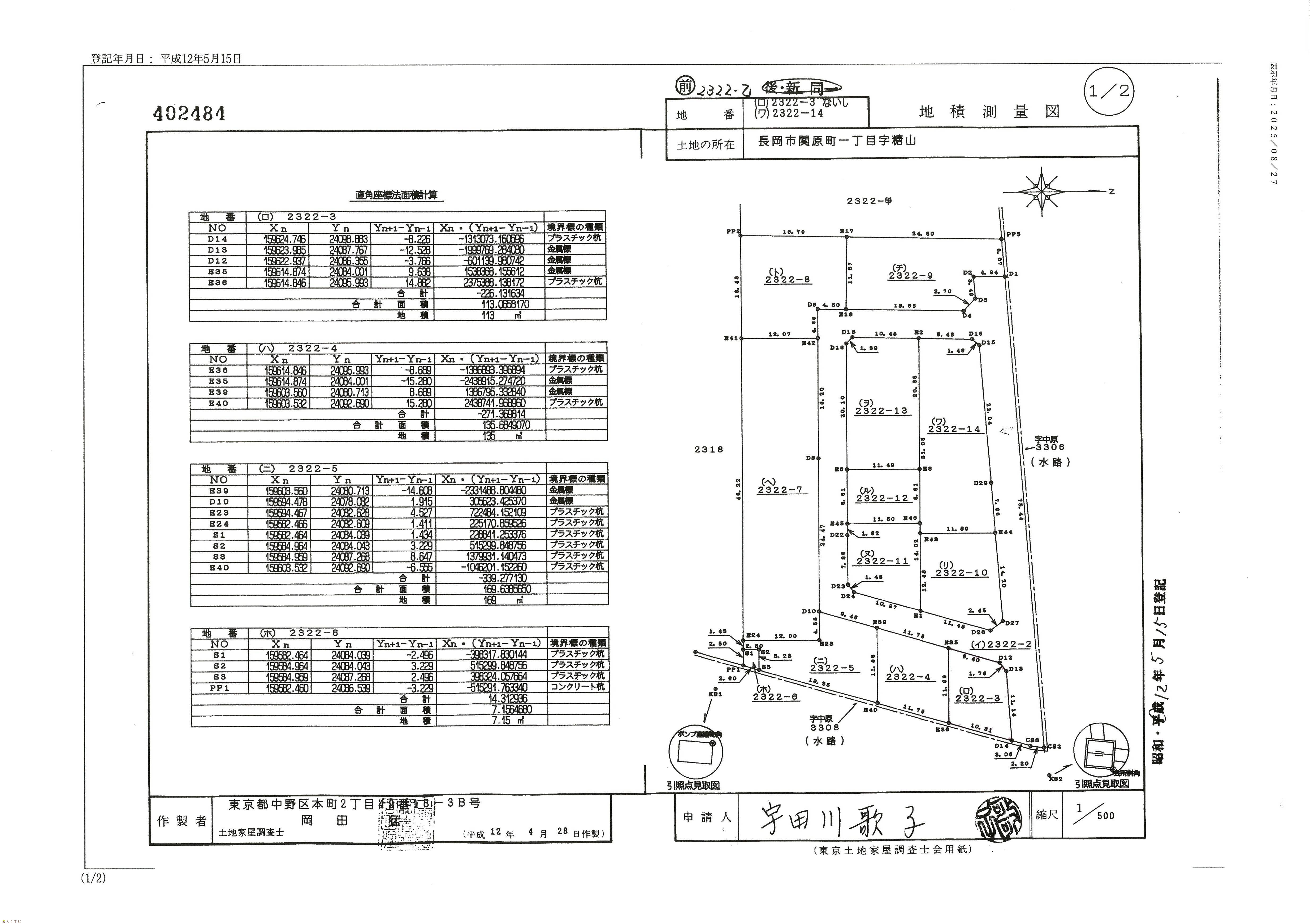
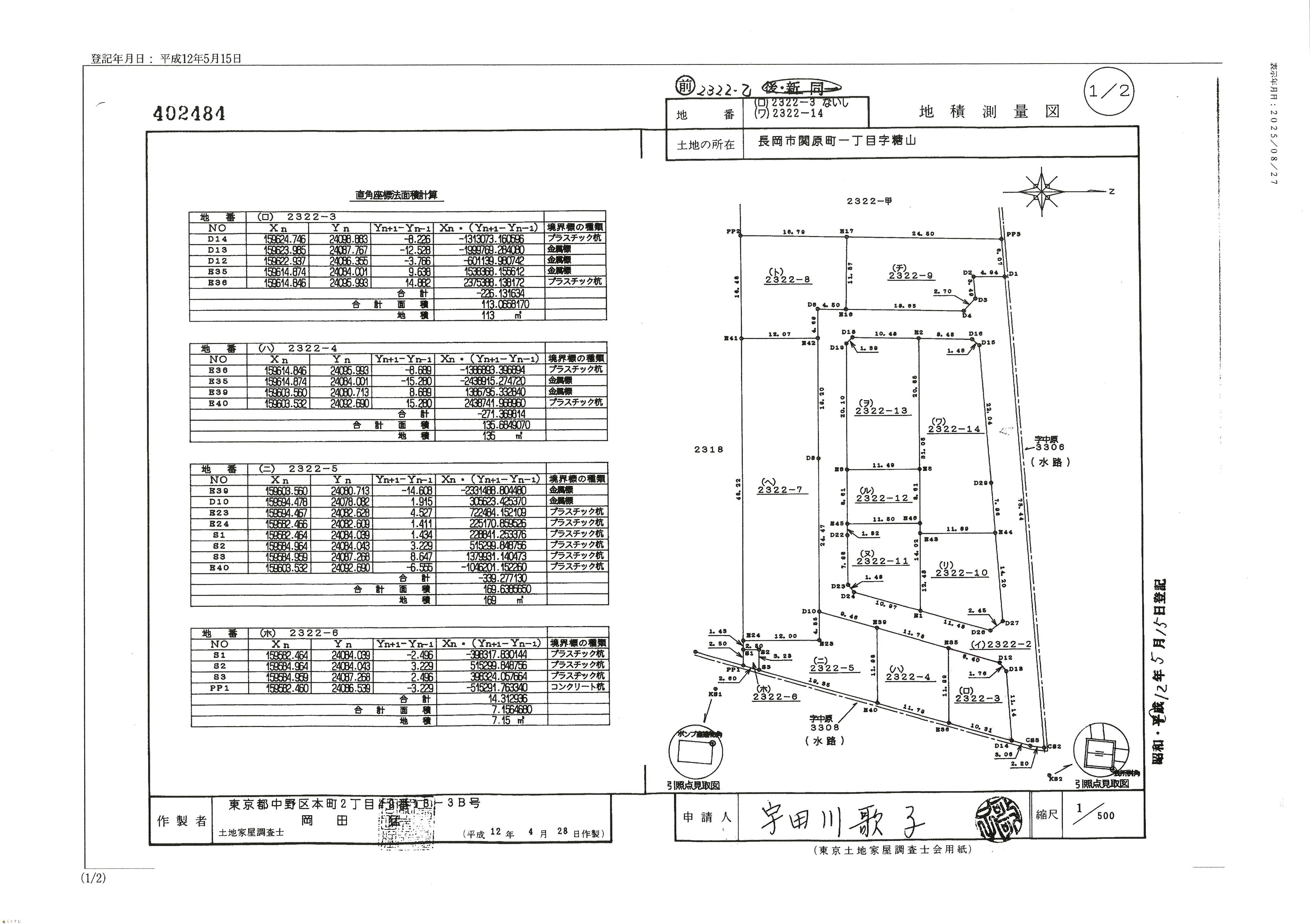
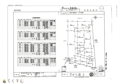
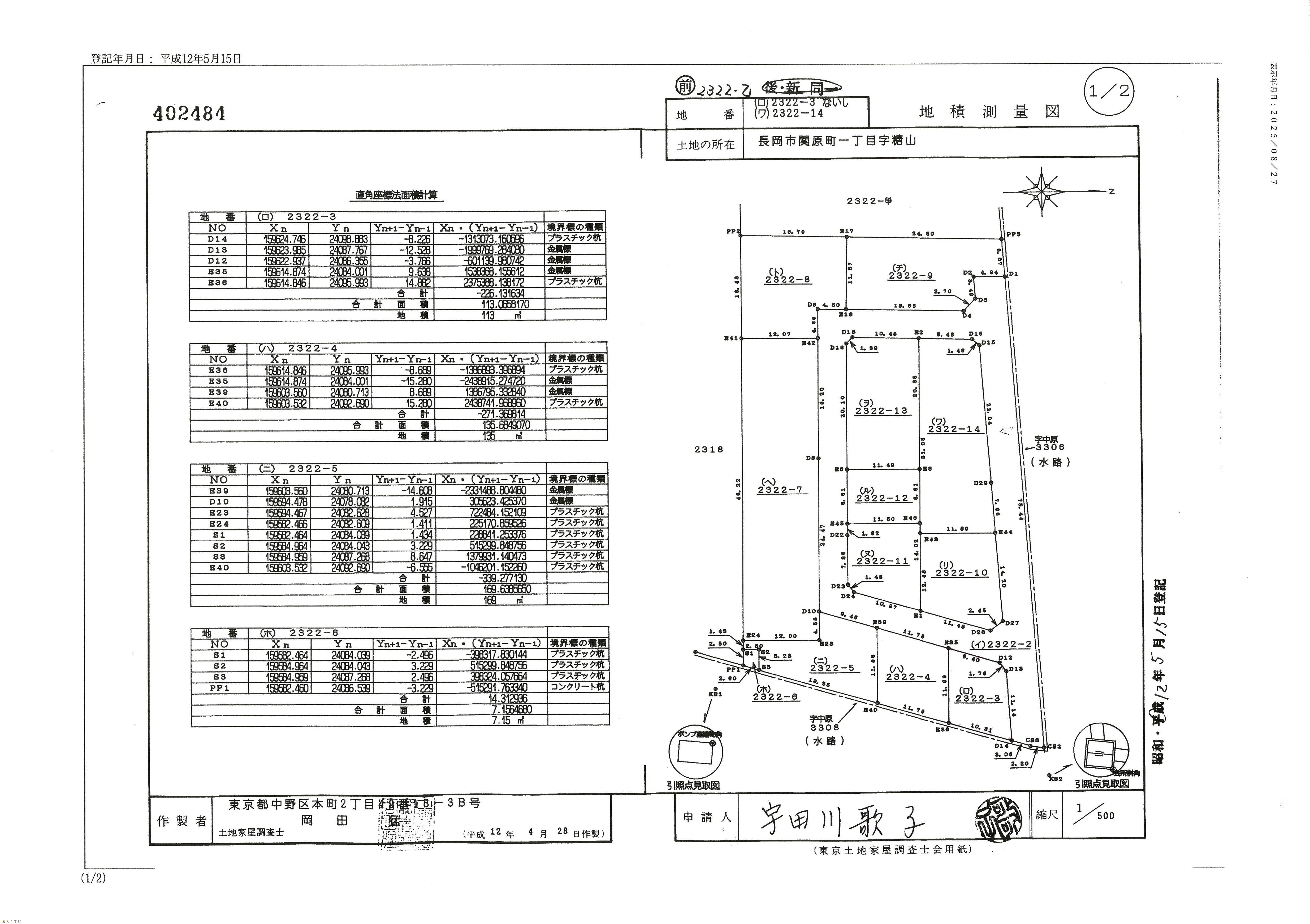
測量図
詳細画像


物件概要

物件コード 00032-200118
物件名 関原町1丁目売地
交通 駅:信越線 来迎寺駅から徒歩82分、バス:県立歴史博物館から徒歩11分
物件所在地 新潟県長岡市関原町1丁目2322-3
物件種別 売土地・分譲地
物件区分 売土地
構造 - 階建 -
建ぺい率/容積率 70%/200%
建物面積 -
土地面積 113㎡ /34.18坪
築年月 -
入居(引き渡し)時期 随時入居(引き渡し)可
用途地域 用途の指定のない地域 地目 山林  (現状:畑)
都市計画 市街化調整区域 学校区 関原小学校(1,607m)・関原中学校(905m)
形状 間口 11.14m × 奥行 10.32m 道路 -
私道 - その他の制限 -
  • 関原町1丁目売地
    青旺不動産 株式会社
  • この物件を問い合わせる/無料
  • TEL: 0258-47-8113

物件詳細情報

所在階/階数 - 号室 -
販売価格 700,000円 方位 -
間取り -
専有面積 - バルコニー面積 -
その他面積 - 駐車場 -
管理費 - 修繕積立金 -
現況 更地
仲介手数料 330,000円
利用制限 -
設備 角地、整形地、所有権
取引態様 一般
備考 -
取り扱い会社

青旺不動産 株式会社

新潟県長岡市関原町1-5335

情報登録日 2025/08/27 次回更新予定日 2026/04/05
取引条件有効期限 2025/11/27
  • 関原町1丁目売地
    青旺不動産 株式会社
  • この物件を問い合わせる/無料
  • TEL: 0258-47-8113

この物件の地図・周辺情報・行政情報

この物件の周辺情報・行政情報を詳しく見る
【周辺情報】
物件の近くにあるコンビニや銀行・学校など、アイコン付のマップで詳しく表示できます!
【行政情報】
水道料や下水道料・ガス料金など、暮らしに関係のある情報を表示しています。

担当取扱い店舗情報

取扱い店舗画像
青旺不動産 株式会社
TEL: 0258-47-8113
所在地: 新潟県長岡市関原町1-5335
交通:
営業時間: 9:00~18:00/定休日:日曜・祭日
免許番号: 新潟県知事(4)4890号 この会社の情報を詳しく見る
所属団体名: 公益社団法人 全日本不動産協会
取引態様: 一般
ホームページ: http://www.seiou-re.co.jp