| 物件コード | 00032-200118 | ||
|---|---|---|---|
| 物件名 | 関原町1丁目売地 | ||
| 交通 | 駅:信越線 来迎寺駅から徒歩82分、バス:県立歴史博物館から徒歩11分 | ||
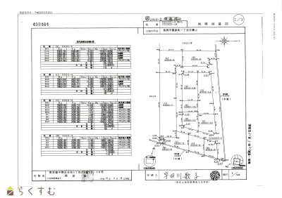
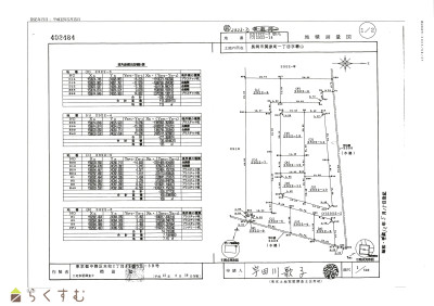
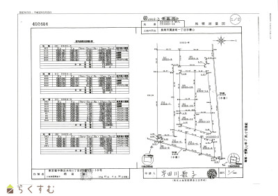
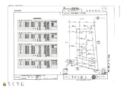
| 物件所在地 | 新潟県長岡市関原町1丁目2322-3 | ||
| 物件種別 | 売土地・分譲地 | ||
| 物件区分 | 売土地 | ||
| 構造 | - | 階建 | - |
| 建ぺい率/容積率 | 70%/200% | ||
| 建物面積 | - | ||
| 土地面積 | 113㎡ /34.18坪 | ||
| 築年月 | - | ||
| 入居時期 | 随時入居(引き渡し)可 | ||
| 用途地域 | 用途の指定のない地域 | 地目 | 山林 (現状:畑) |
| 都市計画 | 市街化調整区域 | 学校区 | 関原小学校(1,607m)・関原中学校(905m) |
| 形状 | 間口 11.14m × 奥行 10.32m | 道路 | - |
| 私道 | - | ||
| 所在階/階数 | - | 号室 | - |
|---|---|---|---|
| 販売価格 | 700,000円 | 方位 | - |
| 間取り | - | ||
| 専有面積 | - | バルコニー面積 | - |
| その他面積 | - | 駐車場 | - |
| 管理費 | - | 修繕積立金 | - |
| 現況 | 更地 | ||
| 仲介手数料 | 330,000円 | ||
| 利用制限 | - | ||
| 設備 | 角地、整形地、所有権 | ||
| 取引態様 | 一般 | ||
| 備考 | - | ||
| 情報登録日 | 2026/03/27 | 次回更新予定日 | 2026/05/21 |
| 取引条件有効期限 | 2026/07/25 | ||
|
|
|
|
| TEL: | 0258-47-8113 |
|---|---|
| 所在地: | 新潟県長岡市関原町1-5335 |
| 交通: | |
| 営業時間: | 9:00~18:00/定休日:日曜・祭日 |
| 免許番号: | 新潟県知事(4)4890号 |
| 所属団体名: | 公益社団法人 全日本不動産協会 |
| 取引態様: | 一般 |