物件掲載企業数:299|賃貸物件:2,911件|売買物件:3,228件|今週の登録物件:348
閲覧中のブラウザ(インターネットエクスプローラー)は非推奨ブラウザです。
物件が正しく表示されなかったり、正しく検索されない場合があります。最新のブラウザ(Google Chrome・Edgeなど)にてご利用お願いいたします。
  

新潟県長岡市宝2丁目2-30、2-31 中古一戸建て 4DK 26,000,000円の物件情報

土地173坪、建物57坪の物件。付属建物(小屋)あり。

物件名/所在地 詳細 価格
宝2丁目 売家
新潟県長岡市宝2丁目2-30、2-31
  • 土地面積
    :574㎡ /173.63坪
  • 建物面積
    :189.25㎡ /57.24坪
  • 間取り
    :4DK
  • 築年月
    :1977年7月
26,000,000
  • 宝2丁目 売家
    越路建設 株式会社
  • この物件を問い合わせる/無料
  • TEL: 0258-34-3433

物件画像

外観 間取り
物件画像
※画像クリックで拡大表示
外観写真
物件画像
※画像クリックで拡大表示
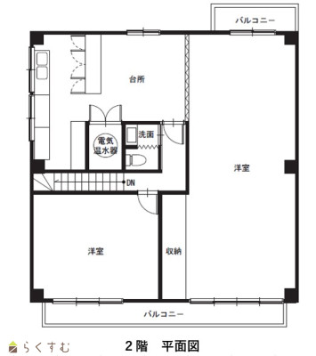
1階平面図
詳細画像


物件概要

ひらせい北長岡店まで徒歩13分。長岡信用金庫宝支店まで徒歩3分。
物件コード 00023-200127
物件名 宝2丁目 売家
交通 駅:信越線 北長岡駅から徒歩32分、バス:宝1丁目から徒歩2分
物件所在地 新潟県長岡市宝2丁目2-30、2-31
物件種別 中古一戸建て
構造 鉄筋コン 階建 地上2階建
建ぺい率/容積率 60%/200%
建物面積 1階 92.22㎡/ 2階 97.03㎡/ 計 189.25㎡ /57.24坪
土地面積 574㎡ /173.63坪
築年月 1977年7月(築48年)
入居(引き渡し)時期 相談
用途地域 準工業地域 地目 宅地  (現状:宅地)
都市計画 市街化区域 学校区 黒条小学校(1,833m)・堤岡中学校(1,820m)
形状 間口 21.13m × 奥行 27.27m 道路 前面道路 長岡市道 東幹線69号
私道 - その他の制限 大規模集客施設制限地区
  • 宝2丁目 売家
    越路建設 株式会社
  • この物件を問い合わせる/無料
  • TEL: 0258-34-3433

物件詳細情報

所在階/階数 - 号室 -
販売価格 26,000,000円 方位
間取り 4DK (和室:6畳、9.5畳) (洋室:10、24)
専有面積 - バルコニー面積 -
その他面積 - 駐車場 -
管理費 - 修繕積立金 -
現況 空家
仲介手数料 924,000円
利用制限 -
設備 日当り良好、駐車3台以上可能、追いだき機能付き、バス1坪以上、温水洗浄便座、トイレ2か所以上、エアコンあり、都市ガス、上水道、下水道、2世帯向き、別荘、田舎暮らし、事業向け
取引態様 専属専任
備考 ●給水引き込みあり(Φ20mm)●都市ガス引き込みあり(Φ30mm)●下水引き込みあり(公共桝設置)●敷地内電柱あり●前面道路幅員18m●裏に小屋あります●隣の敷地も含みます
取り扱い会社

越路建設 株式会社

新潟県長岡市新町1-3-30

情報登録日 2024/10/24 次回更新予定日 2026/04/05
取引条件有効期限 2024/06/30
  • 宝2丁目 売家
    越路建設 株式会社
  • この物件を問い合わせる/無料
  • TEL: 0258-34-3433

この物件の地図・周辺情報・行政情報

この物件の周辺情報・行政情報を詳しく見る
【周辺情報】
物件の近くにあるコンビニや銀行・学校など、アイコン付のマップで詳しく表示できます!
【行政情報】
水道料や下水道料・ガス料金など、暮らしに関係のある情報を表示しています。

担当取扱い店舗情報

取扱い店舗画像
越路建設 株式会社
TEL: 0258-34-3433
所在地: 新潟県長岡市新町1-3-30
交通: 新町1丁目バス停徒歩1分(ファミリーマート向かい)
営業時間: 8:30~17:30/定休日:土曜・日曜・祭日
免許番号: 新潟県知事(6)4072号 この会社の情報を詳しく見る
所属団体名: 新潟県宅地建物取引業協会 長岡支部
取引態様: 専属専任
ホームページ: http://www.koshiken.com/