| ひらせい北長岡店まで徒歩13分。長岡信用金庫宝支店まで徒歩3分。 | |||
| 物件コード | 00023-200127 | ||
|---|---|---|---|
| 物件名 | 宝2丁目 売家 | ||
| 交通 | 駅:信越線 北長岡駅から徒歩32分、バス:宝1丁目から徒歩2分 | ||
| 物件所在地 | 新潟県長岡市宝2丁目2-30、2-31 | ||
| 物件種別 | 中古一戸建て | ||
| 構造 | 鉄筋コン | 階建 | 地上2階建 |
| 建ぺい率/容積率 | 60%/200% | ||
| 建物面積 | 1階 92.22㎡/ 2階 97.03㎡/ 計 189.25㎡ /57.24坪 | ||
| 土地面積 | 574㎡ /173.63坪 | ||
| 築年月 | 1977年7月(築48年) | ||
| 入居時期 | 相談 | ||
| 用途地域 | 準工業地域 | 地目 | 宅地 (現状:宅地) |
| 都市計画 | 市街化区域 | 学校区 | 黒条小学校(1,833m)・堤岡中学校(1,820m) |
| 形状 | 間口 21.13m × 奥行 27.27m | 道路 | 前面道路 長岡市道 東幹線69号 |
| 私道 | - | ||
| 所在階/階数 | - | 号室 | - |
|---|---|---|---|
| 販売価格 | 26,000,000円 | 方位 | 東 |
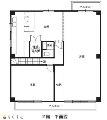
| 間取り | 4DK (和室:6畳、9.5畳) (洋室:10、24) | ||
| 専有面積 | - | バルコニー面積 | - |
| その他面積 | - | 駐車場 | - |
| 管理費 | - | 修繕積立金 | - |
| 現況 | 空家 | ||
| 仲介手数料 | 924,000円 | ||
| 利用制限 | - | ||
| 設備 | 日当り良好、駐車3台以上可能、追いだき機能付き、バス1坪以上、温水洗浄便座、トイレ2か所以上、エアコンあり、都市ガス、上水道、下水道、2世帯向き、別荘、田舎暮らし、事業向け | ||
| 取引態様 | 専属専任 | ||
| 備考 | ●給水引き込みあり(Φ20mm)●都市ガス引き込みあり(Φ30mm)●下水引き込みあり(公共桝設置)●敷地内電柱あり●前面道路幅員18m●裏に小屋あります●隣の敷地も含みます | ||
| 情報登録日 | 2024/10/24 | 次回更新予定日 | 2026/04/05 |
| 取引条件有効期限 | 2024/06/30 | ||
|
|
|
|
| TEL: | 0258-34-3433 |
|---|---|
| 所在地: | 新潟県長岡市新町1-3-30 |
| 交通: | 新町1丁目バス停徒歩1分(ファミリーマート向かい) |
| 営業時間: | 8:30~17:30/定休日:土曜・日曜・祭日 |
| 免許番号: | 新潟県知事(6)4072号 |
| 所属団体名: | 新潟県宅地建物取引業協会 長岡支部 |
| 取引態様: | 専属専任 |