物件掲載企業数:300|賃貸物件:3,179件|売買物件:3,224件|今週の登録物件:645
閲覧中のブラウザ(インターネットエクスプローラー)は非推奨ブラウザです。
物件が正しく表示されなかったり、正しく検索されない場合があります。最新のブラウザ(Google Chrome・Edgeなど)にてご利用お願いいたします。
  

新潟県長岡市関原南1丁目4411番 中古一戸建て 5LDK 17,800,000円の物件情報

大幅リフォーム実施!◆5LDK◆商業施設・学校徒歩圏内◆ビルトインガレージ2台分

物件名/所在地 詳細 価格
長岡市関原南1丁目 中古住宅
新潟県長岡市関原南1丁目4411番
  • 土地面積
    :317㎡ /95.89坪
  • 建物面積
    :168.8㎡ /51.06坪
  • 間取り
    :5LDK
  • 築年月
    :1991年3月
17,800,000
  • 長岡市関原南1丁目 中古住宅
    有限会社 一代工務店
  • この物件を問い合わせる/無料
  • TEL: 0258-34-2221

物件画像

外観 間取り
物件画像
※画像クリックで拡大表示
外観
物件画像
※画像クリックで拡大表示
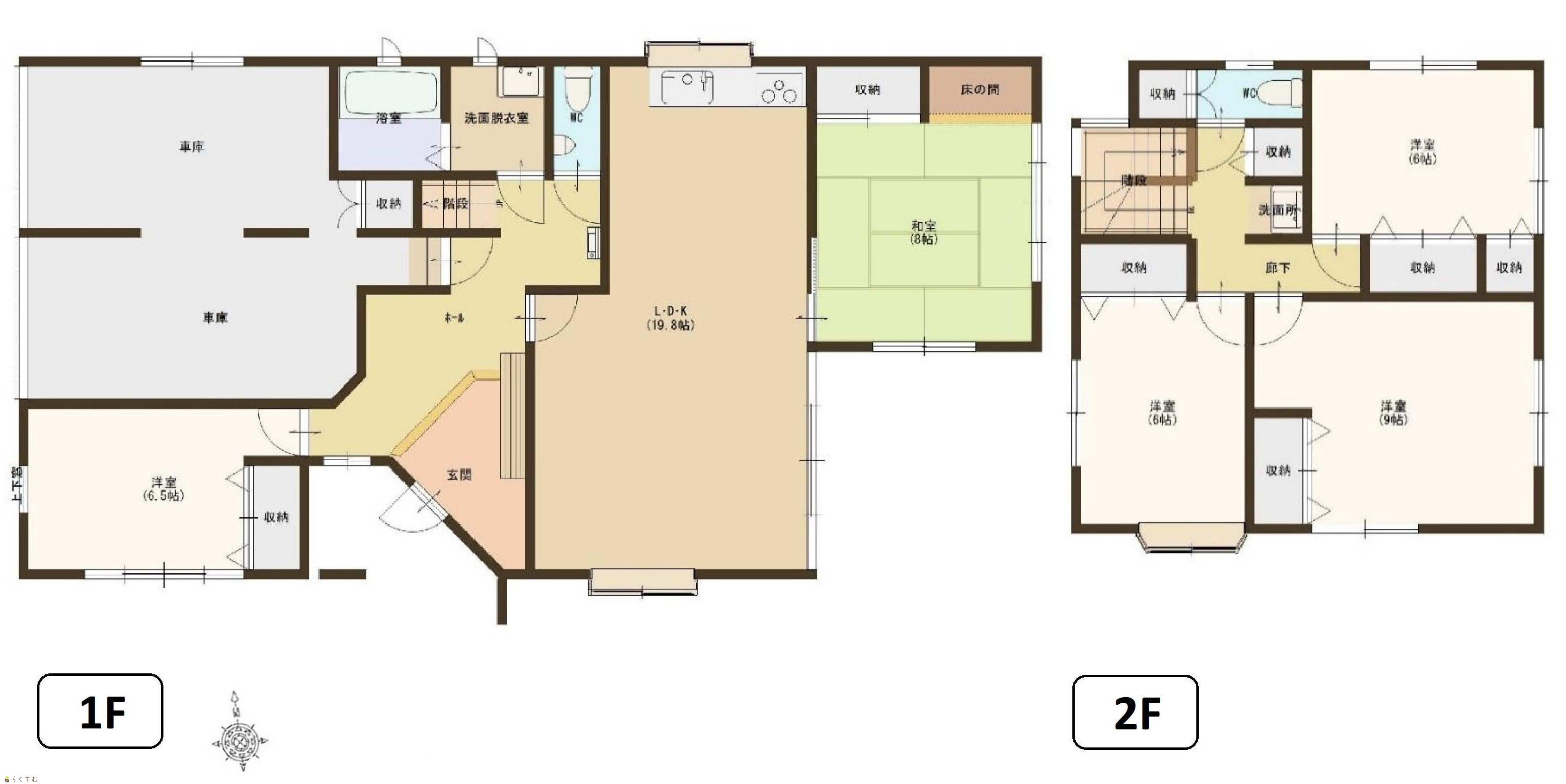
間取り
詳細画像
動画


物件概要

<令和8年4月リフォーム完了>関原小学校・関原中学校エリア ●西向きの95坪敷地 ●広い前面道路には消雪パイプが設置されています ●敷地内に消雪井戸設置 ●ビルトインガレージ2台分 ●1階2LDK、2階3部屋の5LDKで、全体的に余裕のある間取! ●平成3年に新築された住宅ですが、今回当社にて大幅リフォーム実施しています。
物件コード 00007-200782
物件名 長岡市関原南1丁目 中古住宅
交通 駅:信越線 来迎寺駅から徒歩95分、バス:関原1丁目から徒歩7分
物件所在地 新潟県長岡市関原南1丁目4411番
物件種別 中古一戸建て
構造 木造 階建 地上2階建
建ぺい率/容積率 50%/80%
建物面積 計 168.8㎡ /51.06坪
土地面積 317㎡ /95.89坪
築年月 1991年3月(築35年)
入居(引き渡し)時期 随時入居(引き渡し)可
用途地域 第1種低層住居専用地域 地目 宅地
都市計画 市街化区域 学校区 関原小学校(610m)・関原中学校(292m)
形状 - 道路 西側:市道8.0m
私道 - その他の制限 -
  • 長岡市関原南1丁目 中古住宅
    有限会社 一代工務店
  • この物件を問い合わせる/無料
  • TEL: 0258-34-2221

物件詳細情報

所在階/階数 - 号室 -
販売価格 17,800,000円 方位 南西
間取り 5LDK (和室:8畳) (洋室:9、6.5、6、6)
LDK19.8
専有面積 - バルコニー面積 -
その他面積 - 駐車場 -
管理費 - 修繕積立金 -
現況 空家
仲介手数料 なし
利用制限 -
設備 高台に立地、日当り良好、閑静な住宅街、スーパー近く、LDK15帖以上、駐車2台可能、南向き、TVインターホン、複層ガラス、デインプルキー、システムキッチン、IHクッキングヒーター、3口コンロ、追いだき機能付き、バス1坪以上、温水洗浄便座、トイレ2か所以上、シャワー付き洗面台、エアコンあり、省エネ給湯機、都市ガス、上水道、下水道、全居室収納あり、床下収納、シューズBOX、内装リフォーム済み、外装リフォーム済み、即引き渡し可能
取引態様 売主
備考 ・建物面積の内、車庫面積約30.33㎡
・第一種高度地区
・外壁後退:1m
・高さ制限:10m
・22条指定区域

※物件掲載内容と現況に相違がある場合は現況を優先と致します。
詳細はお気軽にお問い合わせください。
担当:藤崎
携帯:090-2763-5443
取り扱い会社

有限会社 一代工務店

新潟県長岡市信濃2-5-36

情報登録日 2026/04/18 次回更新予定日 2026/05/04
取引条件有効期限 2026/06/01
  • 長岡市関原南1丁目 中古住宅
    有限会社 一代工務店
  • この物件を問い合わせる/無料
  • TEL: 0258-34-2221

この物件の地図・周辺情報・行政情報

この物件の周辺情報・行政情報を詳しく見る
【周辺情報】
物件の近くにあるコンビニや銀行・学校など、アイコン付のマップで詳しく表示できます!
【行政情報】
水道料や下水道料・ガス料金など、暮らしに関係のある情報を表示しています。
ローソン 長岡関原店(コンビニ)まで560m
セブン-イレブン 長岡関原南店(コンビニ)まで620m
原信 関原店(スーパー)まで360m
ウエルシア長岡関原店 (調剤薬局)(ドラッグストア)まで460m
大光銀行 関原支店(銀行)まで440m
長岡西郵便局(郵便局)まで400m

※カメラのアイコンがある場合は、マウスをポイントするとその施設の画像がご覧いただけます。


担当取扱い店舗情報

取扱い店舗画像
有限会社 一代工務店
TEL: 0258-34-2221
所在地: 新潟県長岡市信濃2-5-36
交通: 長岡駅
営業時間: 9:00~18:00/定休日:
免許番号: 新潟県知事(12)2196号 この会社の情報を詳しく見る
所属団体名: 新潟県宅地建物取引業協会 長岡支部
取引態様: 売主
ホームページ: http://www.ichidai-k.co.jp/