長岡市新町2-2-20 事務所 7万円の物件情報

駐車場2台ついてます

物件名
所在地
面積
間取り
所在階
築年数
方位
賃料
管理費等
共益費
敷金
保証金
礼金
種別
構造
新町2丁目『西山事務所』 駐車場2台付き(屋根付き)
長岡市新町2-2-20
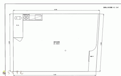
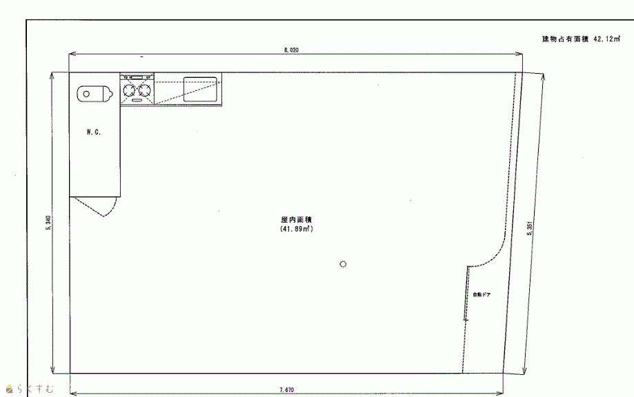
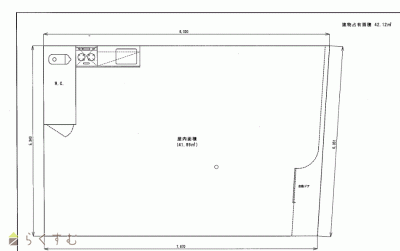
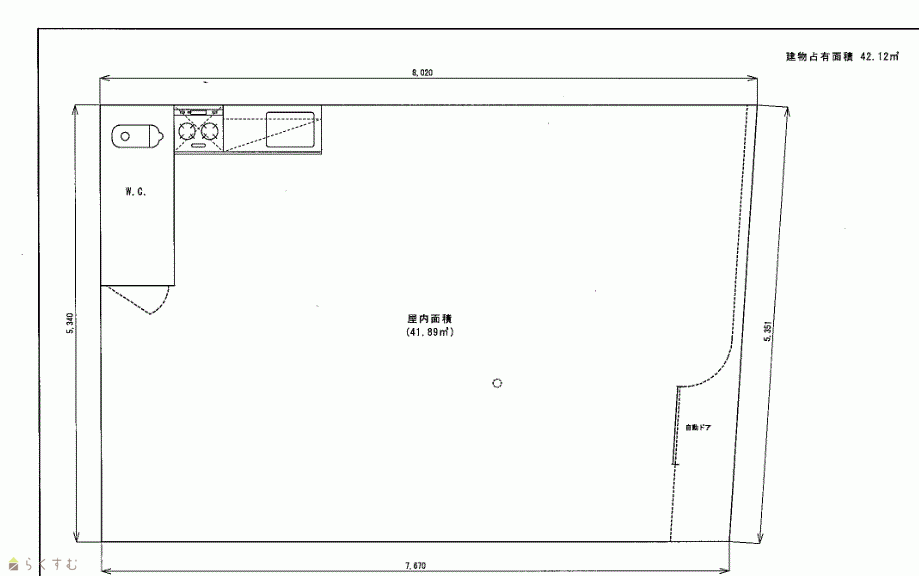
41.89㎡
(12.67坪)
-
-
不詳
-
7万円
なし
なし
3ヶ月
なし
なし
事務所
木造
  • 新町2丁目『西山事務所』 駐車場2台付き(屋根付き)
    ㈱スタッフサイトウ不動産部
  • この物件を問い合わせる/無料
  • TEL: 0258-24-0623 0258-24-0623

物件画像

外観
間取り
物件画像
※画像クリックで拡大表示
外観
物件画像
※画像クリックで拡大表示
間取り
詳細画像
物件画像
内装
物件画像
内装
物件画像
内装
物件画像
設備
物件画像
トイレ
物件画像
印刷用地図


物件概要

物件コード 00011-100035
物件名 新町2丁目『西山事務所』 駐車場2台付き(屋根付き)
交通 駅:信越線 北長岡駅から徒歩13分、バス:新町1丁目から徒歩3分
所在地 長岡市新町2-2-20
物件種別 事務所
総戸数 -
構造 木造 階建 地上1階建
所在階/階数 - 号室 -
面積 41.89㎡ /12.67坪 方位 -
間取り -
賃料 7万円/月
管理費 -
礼金 -
敷金 3ヶ月
ほか初期費用 - その他諸費用 -
更新料 - 火災(家財)保険 加入の事
共益費 - 町内費 -
駐車場 - バイク料金 -
鍵交換費 - 清掃料 -
更新事務手数料 -
保証区分 連帯保証人+緊急連絡先
保証会社 区分:指定なし
-
連帯保証人 区分:要
-
仲介手数料 77,000円
築年月 不詳
利用制限 -
学校区 新町小学校(139m)・北中学校(1,244m)
設備 1階、スケルトン、給湯、駐車場あり
入居時期 即入居可
取引態様 仲介
備考 アーケードの雪下ろしは入居者負担となります
手数料負担割合/配分割合 貸主:-%   借主:100% / 元付:50%   客付:50%  
取り扱い会社

㈱スタッフサイトウ不動産部

新潟県長岡市蔵王2丁目4番17号

情報登録日 2025/11/19 次回更新予定日 2026/04/05
  • 新町2丁目『西山事務所』 駐車場2台付き(屋根付き)
    ㈱スタッフサイトウ不動産部
  • この物件を問い合わせる/無料
  • TEL: 0258-24-0623 0258-24-0623

この物件の地図・周辺情報・行政情報

この物件の周辺情報・行政情報を詳しく見る
【周辺情報】
物件の近くにあるコンビニや銀行・学校など、アイコン付のマップで詳しく表示できます!
【行政情報】
水道料や下水道料・ガス料金など、暮らしに関係のある情報を表示しています。

担当取扱い店舗情報

取扱い店舗画像
㈱スタッフサイトウ不動産部
TEL: 0258-24-0623
所在地: 新潟県長岡市蔵王2丁目4番17号
交通: JR北長岡駅
営業時間: 8:30~17:30/定休日:第2・4土曜・日曜・祭日
免許番号: 新潟県知事(2)第5364号
所属団体名: 新潟県宅地建物取引業協会 長岡支部
取引態様: 仲介
ホームページ: http://hokuetsu-fudousan.com