| 物件コード | 00011-100035 | ||
|---|---|---|---|
| 物件名 | 新町2丁目『西山事務所』 駐車場2台付き(屋根付き) | ||
| 交通 | 駅:信越線 北長岡駅から徒歩13分、バス:新町1丁目から徒歩3分 | ||
| 所在地 | 長岡市新町2-2-20 | ||
| 物件種別 | 事務所 | ||
| 総戸数 | - | ||
| 構造 | 木造 | 階建 | 地上1階建 |
| 所在階/階数 | - | 号室 | - |
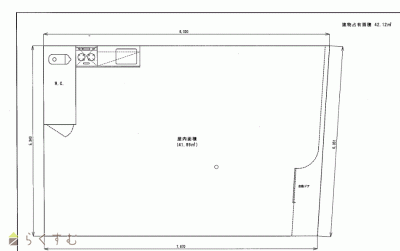
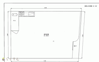
| 面積 | 41.89㎡ (12.67坪) | 方位 | - |
| 間取り |
|
||
| 賃料 | 7万円/月
|
管理費 | - |
| 礼金 | -
|
敷金 | 3ヶ月
|
| ほか初期費用 | - | その他諸費用 | - |
| 更新料 | - | 火災(家財)保険 | 加入の事 |
| 共益費 | - | 町内費 | - |
| 駐車場 | - | バイク料金 | - |
| 鍵交換費 | - | 清掃料 | - |
| 更新事務手数料 | - | ||
| 保証区分 |
連帯保証人+緊急連絡先 |
||
| 保証会社 |
区分:指定なし - |
||
| 連帯保証人 |
区分:要 - |
||
| 仲介手数料 |
77,000円
|
||
| 築年月 | 不詳 | ||
| 利用制限 | - | ||
| 学校区 | 新町小学校(139m)・北中学校(1,244m) | ||
| 設備 | 1階、スケルトン、給湯、駐車場あり | ||
| 入居時期 | 即入居可 | ||
| 取引態様 | 仲介 | ||
| 備考 | アーケードの雪下ろしは入居者負担となります | ||
| 手数料負担割合/配分割合 | 貸主:-% 借主:100% / 元付:50% 客付:50% | ||
| 情報登録日 | 2025/11/19 | 次回更新予定日 | 2026/04/05 |
|
|
|
|
|
|
| TEL: | 0258-24-0623 |
|---|---|
| 所在地: | 新潟県長岡市蔵王2丁目4番17号 |
| 交通: | JR北長岡駅 |
| 営業時間: | 8:30~17:30/定休日:第2・4土曜・日曜・祭日 |
| 免許番号: | 新潟県知事(2)第5364号 |
| 所属団体名: | 新潟県宅地建物取引業協会 長岡支部 |
| 取引態様: | 仲介 |