物件掲載企業数:300|賃貸物件:3,212件|売買物件:3,229件|今週の登録物件:708
閲覧中のブラウザ(インターネットエクスプローラー)は非推奨ブラウザです。
物件が正しく表示されなかったり、正しく検索されない場合があります。最新のブラウザ(Google Chrome・Edgeなど)にてご利用お願いいたします。
  

新潟県柏崎市桜木町19番49-2 アパート 3LDK 7.5万円の物件情報

物件名
所在地
面積
間取り
所在階
築年数
方位
賃料
管理費等
共益費
敷金
保証金
礼金
種別
構造
桜木町賃貸住宅 B棟
新潟県柏崎市桜木町19番49-2
67.28㎡
(20.35坪)
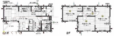
3LDK
1階
8年
7.5万円
なし
なし
1ヶ月
なし
なし
アパート・マンション・一戸建て
木造
  • 桜木町賃貸住宅 B棟
    株式会社オフィス・シナダ
  • この物件を問い合わせる/無料
  • TEL: 0257-41-5077

物件画像

外観 間取り
物件画像
※画像クリックで拡大表示
外観
物件画像
※画像クリックで拡大表示
間取り
詳細画像


物件概要

物件コード 00178-100072
物件名 桜木町賃貸住宅 B棟
交通 駅:越後線 東柏崎駅から徒歩14分、バス:桜木町から徒歩2分
所在地 新潟県柏崎市桜木町19番49-2
物件種別 アパート・マンション・一戸建て
総戸数 -
構造 木造 階建 地上2階建
所在階/階数 1階/2階 号室 -
面積 67.28㎡ /20.35坪 方位
間取り 3LDK (洋室:7.5、5.5、5.2)
LDK13.5
賃料 7.5万円/月
管理費 -
礼金 -
敷金 1ヶ月
ほか初期費用 - その他諸費用 -
更新料 - 火災(家財)保険 19,000円(2年更新)
共益費 - 町内費 別途借主負担
駐車場 敷地内2台込み バイク料金 -
鍵交換費 - 清掃料 -
更新事務手数料 -
保証区分 連帯保証人のみ
保証会社 区分:指定なし
-
連帯保証人 区分:要
-
仲介手数料 82,500円
築年月 2017年12月(築8年)
利用制限 -
学校区 柏崎小学校(1,544m)・第一中学校(1,326m)
設備 築10年以内、駐車場2台無料、南向き、ダブルロックキー、システムキッチン、バストイレ別、追いだき機能付き、温水洗浄便座、洗面所独立、エアコン、都市ガス、TVモニター付きインターホン、即入居可、保証会社利用可能
入居時期 令和8年6月初旬
取引態様 仲介
備考 -
手数料負担割合/配分割合 貸主:-%   借主:-% / 元付:-%   客付:-%  
取り扱い会社

株式会社オフィス・シナダ

新潟県柏崎市西港町4番19号

情報登録日 2026/04/24 次回更新予定日 2026/05/08
  • 桜木町賃貸住宅 B棟
    株式会社オフィス・シナダ
  • この物件を問い合わせる/無料
  • TEL: 0257-41-5077

この物件の地図・周辺情報・行政情報

この物件の周辺情報・行政情報を詳しく見る
【周辺情報】
物件の近くにあるコンビニや銀行・学校など、アイコン付のマップで詳しく表示できます!
【行政情報】
水道料や下水道料・ガス料金など、暮らしに関係のある情報を表示しています。

担当取扱い店舗情報

取扱い店舗画像
株式会社オフィス・シナダ
TEL: 0257-41-5077
所在地: 新潟県柏崎市西港町4番19号
交通: 柏崎駅
営業時間: 10:00~18:00土日は10:00~17:00/定休日:水曜日・祝日
免許番号: 新潟県知事(2)第5342号 この会社の情報を詳しく見る
所属団体名: 公社 宅地建物取引協会 柏崎支部
取引態様: 仲介
ホームページ: http://www.officeshinada.co.jp/