| 物件コード | 00178-100072 | ||
|---|---|---|---|
| 物件名 | 桜木町賃貸住宅 B棟 | ||
| 交通 | 駅:越後線 東柏崎駅から徒歩14分、バス:桜木町から徒歩2分 | ||
| 所在地 | 新潟県柏崎市桜木町19番49-2 | ||
| 物件種別 | アパート・マンション・一戸建て | ||
| 総戸数 | - | ||
| 構造 | 木造 | 階建 | 地上2階建 |
| 所在階/階数 | 1階/2階 | 号室 | - |
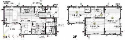
| 面積 | 67.28㎡ (20.35坪) | 方位 | 南 |
| 間取り | 3LDK (洋室:7.5、5.5、5.2)
LDK13.5 |
||
| 賃料 | 7.5万円/月
|
管理費 | - |
| 礼金 | -
|
敷金 | 1ヶ月
|
| ほか初期費用 | - | その他諸費用 | - |
| 更新料 | - | 火災(家財)保険 | 19,000円(2年更新) |
| 共益費 | - | 町内費 | 別途借主負担 |
| 駐車場 | 敷地内2台込み | バイク料金 | - |
| 鍵交換費 | - | 清掃料 | - |
| 更新事務手数料 | - | ||
| 保証区分 |
連帯保証人のみ |
||
| 保証会社 |
区分:指定なし - |
||
| 連帯保証人 |
区分:要 - |
||
| 仲介手数料 |
82,500円
|
||
| 築年月 | 2017年12月(築8年) | ||
| 利用制限 | - | ||
| 学校区 | 柏崎小学校(1,544m)・第一中学校(1,326m) | ||
| 設備 | 築10年以内、駐車場2台無料、南向き、ダブルロックキー、システムキッチン、バストイレ別、追いだき機能付き、温水洗浄便座、洗面所独立、エアコン、都市ガス、TVモニター付きインターホン、即入居可、保証会社利用可能 | ||
| 入居時期 | 令和8年6月初旬 | ||
| 取引態様 | 仲介 | ||
| 備考 | - | ||
| 手数料負担割合/配分割合 | 貸主:-% 借主:-% / 元付:-% 客付:-% | ||
| 情報登録日 | 2026/04/24 | 次回更新予定日 | 2026/05/08 |
|
|
|
|
| TEL: | 0257-41-5077 |
|---|---|
| 所在地: | 新潟県柏崎市西港町4番19号 |
| 交通: | 柏崎駅 |
| 営業時間: | 10:00~18:00土日は10:00~17:00/定休日:水曜日・祝日 |
| 免許番号: | 新潟県知事(2)第5342号 |
| 所属団体名: | 公社 宅地建物取引協会 柏崎支部 |
| 取引態様: | 仲介 |