物件掲載企業数:299|賃貸物件:2,910件|売買物件:3,215件|今週の登録物件:319
閲覧中のブラウザ(インターネットエクスプローラー)は非推奨ブラウザです。
物件が正しく表示されなかったり、正しく検索されない場合があります。最新のブラウザ(Google Chrome・Edgeなど)にてご利用お願いいたします。
  

新潟県長岡市槇山町2343 アパート 2LDK 7.5万円の物件情報

【3/30以降内見可能予定】ミサワホーム施工築浅2LDK☆1階角部屋・駐車場2台・エアコン1台・インターネット無料。

物件名
所在地
面積
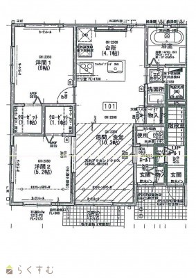
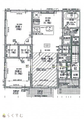
間取り
所在階
築年数
方位
賃料
管理費等
共益費
敷金
保証金
礼金
種別
構造
ヴィラ槇山
101号室
新潟県長岡市槇山町2343
57.55㎡
(17.4坪)
2LDK
1階
6年
指定なし
7.5万円
なし
あり
1ヶ月
なし
1ヶ月
アパート・マンション・一戸建て
木造
  • ヴィラ槇山
    有限会社 グリーン土地
  • この物件を問い合わせる/無料
  • TEL: 0258-32-1222

物件画像

外観 間取り
物件画像
※画像クリックで拡大表示
外観
物件画像
※画像クリックで拡大表示
間取り
詳細画像
360度画像
リビング
※下のリンクをクリックすると、上の画像が切り替わります。

インターネットエクスプローラーでは360°画像は閲覧できません。それ以外のブラウザでご覧下さい。



物件概要

掲載の360度画像は同タイプ・別室の画像です。現況が優先します。
物件コード 00071-100483
物件名 ヴィラ槇山
交通 駅:上越新幹線 長岡駅から徒歩68分、バス:巻島から徒歩3分
所在地 新潟県長岡市槇山町2343
物件種別 アパート・マンション・一戸建て
総戸数 -
構造 木造 階建 地上2階建
所在階/階数 1階/2階 号室 101号室
面積 57.55㎡ /17.4坪 方位 指定なし
間取り 2LDK (洋室:6、5.2)
LDK14.5
賃料 7.5万円/月
管理費 -
礼金 1ヶ月
敷金 1ヶ月
ほか初期費用 - その他諸費用 -
更新料 - 火災(家財)保険 -
共益費 4,500円
町内費 -
駐車場 2台付 バイク料金 -
鍵交換費 - 清掃料 -
保険料 900円
更新事務手数料 -
保証区分 保証会社+緊急連絡先
保証会社 区分:加入要
保証会社名:その他 (ミサワホーム賃貸サポート)
【初回保証料】月額支払総額の50%、【月額保証料】月額支払総額の1%
家賃保証金 40,200円
連帯保証人 区分:不要
-
仲介手数料 82,500円
築年月 2020年2月(築6年)
利用制限 ペット:不可、楽器:不可、事務所利用:不可
学校区 上川西小学校(1,028m)・江陽中学校(284m)
設備 閑静な住宅街、外部専用物置、タイヤ置き場、敷地内ゴミ置き場、LDK12畳以上、築10年以内、駐車3台以上可、駐輪場あり、駐車場2台無料、角住居、防犯カメラ、テンキー、システムキッチン、対面キッチン、2口コンロ、バストイレ別、追いだき機能付き、温水洗浄便座、洗面所独立、シャワー付き洗面台、エアコン、都市ガス、公営水道、バルコニー、全居室フローリング、洗濯機置場 室内、脱衣所、玄関収納、トランクルーム、クロゼット、クロゼット2ヵ所、シューズBOX、TVモニター付きインターホン、インターネット無料、各居室照明、保証会社要加入、新築・築浅物件
入居時期 4月下旬予定
取引態様 仲介
備考 1年未満の解約の場合は賃料1ヶ月分の短期解約違約金が発生します。
手数料負担割合/配分割合 貸主:-%   借主:100% / 元付:50%   客付:50%  
取り扱い会社

有限会社 グリーン土地

新潟県長岡市本町3-1-9 アーバンヒルズ長岡1F

情報登録日 2026/02/03 次回更新予定日 2026/04/07
  • ヴィラ槇山
    有限会社 グリーン土地
  • この物件を問い合わせる/無料
  • TEL: 0258-32-1222

この物件の地図・周辺情報・行政情報

この物件の周辺情報・行政情報を詳しく見る
【周辺情報】
物件の近くにあるコンビニや銀行・学校など、アイコン付のマップで詳しく表示できます!
【行政情報】
水道料や下水道料・ガス料金など、暮らしに関係のある情報を表示しています。
セブン-イレブン 長岡堤町店(コンビニ)まで660m
ローソン 長岡渡場町店(コンビニ)まで750m

※カメラのアイコンがある場合は、マウスをポイントするとその施設の画像がご覧いただけます。


担当取扱い店舗情報

取扱い店舗画像
有限会社 グリーン土地
TEL: 0258-32-1222
所在地: 新潟県長岡市本町3-1-9 アーバンヒルズ長岡1F
交通: 長岡駅
営業時間: 9:00~17:00/定休日:日・祝・祭日
免許番号: 新潟県知事(10)3038号 この会社の情報を詳しく見る
所属団体名: 新潟県宅地建物取引協会 長岡支部
取引態様: 仲介
ホームページ: https://www.greentoti.com