| 掲載の360度画像は同タイプ・別室の画像です。現況が優先します。 | |||
| 物件コード | 00071-100483 | ||
|---|---|---|---|
| 物件名 | ヴィラ槇山 | ||
| 交通 | 駅:上越新幹線 長岡駅から徒歩68分、バス:巻島から徒歩3分 | ||
| 所在地 | 新潟県長岡市槇山町2343 | ||
| 物件種別 | アパート・マンション・一戸建て | ||
| 総戸数 | - | ||
| 構造 | 木造 | 階建 | 地上2階建 |
| 所在階/階数 | 1階/2階 | 号室 | 101号室 |
| 面積 | 57.55㎡ (17.4坪) | 方位 | 指定なし |
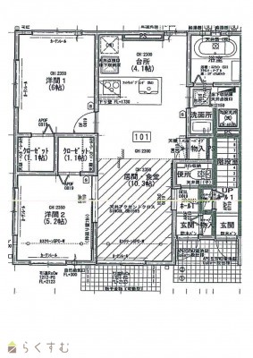
| 間取り | 2LDK (洋室:6、5.2)
LDK14.5 |
||
| 賃料 | 7.5万円/月
|
管理費 | - |
| 礼金 | 1ヶ月
|
敷金 | 1ヶ月
|
| ほか初期費用 | - | その他諸費用 | - |
| 更新料 | - | 火災(家財)保険 | - |
| 共益費 |
4,500円
|
町内費 | - |
| 駐車場 | 2台付 | バイク料金 | - |
| 鍵交換費 | - | 清掃料 | - |
| 保険料 |
900円
|
||
| 更新事務手数料 | - | ||
| 保証区分 |
保証会社+緊急連絡先 |
||
| 保証会社 |
区分:加入要 保証会社名:その他 (ミサワホーム賃貸サポート) 【初回保証料】月額支払総額の50%、【月額保証料】月額支払総額の1% |
||
| 家賃保証金 |
40,200円
|
||
| 連帯保証人 |
区分:不要 - |
||
| 仲介手数料 |
82,500円
|
||
| 築年月 | 2020年2月(築6年) | ||
| 利用制限 | ペット:不可、楽器:不可、事務所利用:不可 | ||
| 学校区 | 上川西小学校(1,028m)・江陽中学校(284m) | ||
| 設備 | 閑静な住宅街、外部専用物置、タイヤ置き場、敷地内ゴミ置き場、LDK12畳以上、築10年以内、駐車3台以上可、駐輪場あり、駐車場2台無料、角住居、防犯カメラ、テンキー、システムキッチン、対面キッチン、2口コンロ、バストイレ別、追いだき機能付き、温水洗浄便座、洗面所独立、シャワー付き洗面台、エアコン、都市ガス、公営水道、バルコニー、全居室フローリング、洗濯機置場 室内、脱衣所、玄関収納、トランクルーム、クロゼット、クロゼット2ヵ所、シューズBOX、TVモニター付きインターホン、インターネット無料、各居室照明、保証会社要加入、新築・築浅物件 | ||
| 入居時期 | 4月下旬予定 | ||
| 取引態様 | 仲介 | ||
| 備考 | 1年未満の解約の場合は賃料1ヶ月分の短期解約違約金が発生します。 | ||
| 手数料負担割合/配分割合 | 貸主:-% 借主:100% / 元付:50% 客付:50% | ||
| 情報登録日 | 2026/02/03 | 次回更新予定日 | 2026/04/07 |
|
|
|
|
|
|
| TEL: | 0258-32-1222 |
|---|---|
| 所在地: | 新潟県長岡市本町3-1-9 アーバンヒルズ長岡1F |
| 交通: | 長岡駅 |
| 営業時間: | 9:00~17:00/定休日:日・祝・祭日 |
| 免許番号: | 新潟県知事(10)3038号 |
| 所属団体名: | 新潟県宅地建物取引協会 長岡支部 |
| 取引態様: | 仲介 |