売買長岡市上除町A 新築戸建住宅 詳細

外観
外観イメージ アルミカーポート付! ※植栽はイメージです。
間取り
全体 間取り図
その他の画像
【★完成前ご契約特典】 家具セット&カーテン プレゼント!
内観イメージ(LDK) ※家具・小物などはイメージです。
外観イメージ(南東側)
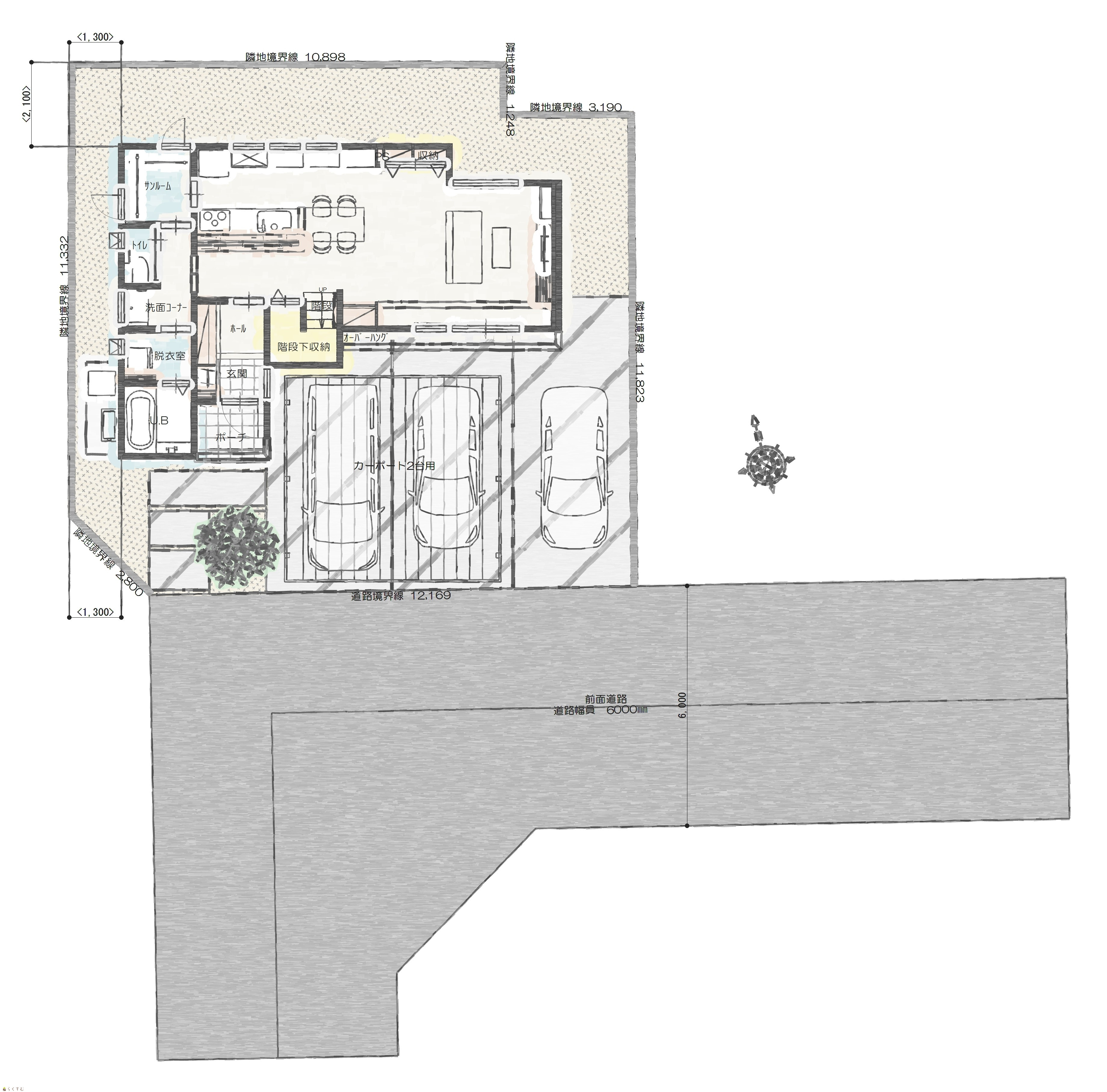
建物配置図
内観イメージ(リビング)①
内観イメージ(リビング)②
内観イメージ(窓際ベンチ)
内観イメージ(ダイニング・キッチン)
内観イメージ(キッチン側から見るLDK)
1階 間取り図
2階 間取り図
【省令準耐火構造の住まい】耐火性能が高く、火災に強い仕様
【長期保証】 構造・雨漏り 初期保証20年・最長60年保証
【安心の長期保証】 設備保証10年 ※修理対象設備のみ
■地盤改良済み。地盤保証20年で万が一の事故の時も安心
■不同沈下が起きにくい面で支える頑強構造【ベタ基礎】
■災害時の拠点となる消防署・警察署と同レベルの耐震等級3
■第三者機関 JIOの瑕疵担保保険加入済み
地図画像
物件詳細へ戻る
Copyright (C) 株式会社 コモンライフ・コーポレーション. All Rights Reserved.
不動産検索サイト「らくすむ」及び関連サイトに記載の不動産情報は、会員規約に則り、情報提供会社様の責任のもとに発信されております。
不動産の賃借、購入に関しては賃借者、購入者ご自身が情報を確認され、会社企業様から説明を受けられたうえで判断をお願いいたします。
不動産検索サイト「らくすむ」及び関連サイトに記載の不動産情報、写真、デザイン、コンテンツなどの無断転載・転用・複製など禁止します。